Только на Циан
3 800 000 ₽
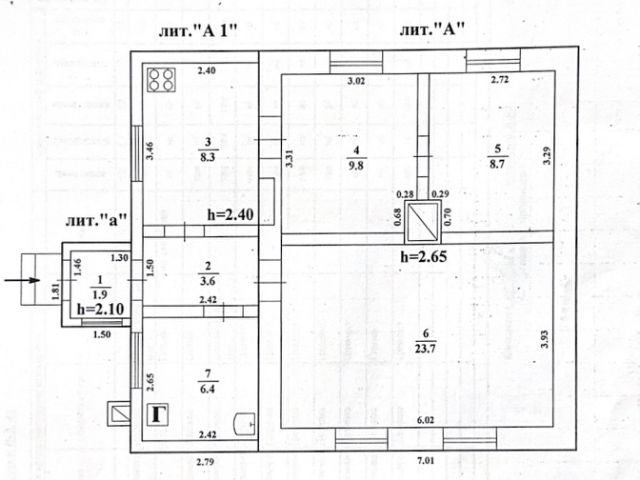
Продается дом в с. Шелковичное, Сакского района.
Дом расположен на земельном участке площадью 12,5 сот.
На участке имеется летняя кухня и сарай.
Расстояние до города 10 минут езды на машине, маршрутные автобусы по расписанию.
Дополнительно оплачивается комиссия покупателем 2.5%, но не менее 70 000 рублей.
Домик не большой, но участок позволяет сделать реконструкцию. Участок огорожен.
Обстановка в доме остается новым хозяевам.
При звонке сообщите, пожалуйста, номер объекта 1885, чтобы мы могли предоставить вам интересующую информацию оперативно.










































































