











101 650 ₽/м²
Номер объекта: 542187. Продается уютная двухкомнатная квартира в ЖК Республика. Без комиссии для покупателя!!! Жилой комплекс это 22 дома средней этажности со всей необходимой инфраструктурой. Крупный микрорайон расположится в Гвардейском. Собственники будут жить в спокойном, уютном, экологически чистом районе в активном ритме крымской столицы. В рамках первой очереди проекта будет возведено три восьмиэтажных дома. За простыми архитектурными формами и яркими фасадами скрыта надёжная монолитная конструкция. В ЖК тщательно продумана планировка каждой квартиры: популярные студии эргономичные однокомнатные функциональные двухкомнатные Удобная транспортная развязка даёт возможность быстро выехать на федеральную трассу Таврида. Отсюда можно с лёгкостью добраться в любой район Симферополя, а также до аэропорта и железнодорожного вокзала. В непосредственной близости новая Республиканская современная больница имени Семашко. Рядом все важные социальные объекты, остановки и развитый жилой район. На прилегающем участке строится новый детский сад на 240 мест. В домах расположатся встроенные коммерческие помещения для размещения кофеен, продуктовых магазинов, аптек и других объектов торговли и услуг. В ЖК предусмотрены: уютные благоустроенные дворы, ландшафтное озеленение, современные детские площадки, спортивные площадки, места отдыха, удобные парковочные пространства, бесшумные и вместительные лифты. В квартирах индивидуальное газовое отопление. В продаже квартиры с предчистовой отделкой White Box вам остается только внести финальные штрихи по своему вкусу. Преимущества:Развитая инфраструктура.Транспортная доступность.Большой выбор планировочных решений.Детский сад на 240 мест.Индивидуальное газовое отоплениеЧтобы уточнить актуальность объекта и наличие других - звоните! Объекта 542187 Купить 2-комнатную квартиру в поселке городского типа Гвардейское Симферопольского района.



119 643 ₽/м²
Продажа от СОБСТВЕННИКА!!! пгт. Гвардейское (Гарнизон) Предлагаю просторную, сухую и тёплую 2-х комнатную квартиру (чешской планировки, 56 м. кв) расположенную в центре 5-этажного блочного дома на 2-м этаже. Две большие, раздельные комнаты, лоджия, два балкона (застеклены), раздельный санузел, гардеробная. В квартире установлено автономное газовое отопление (новый двухконтурный котёл Ariston), кондиционер. Квартира полностью пригодна к проживанию. В шаговой доступности вся инфраструктура: школа, детский сад, магазины. Двор обустроен парковкой и детской площадкой. Один собственник длительное время, квартира подготовлена к переоформлению и в данный момент никто не прописан. Продаю без посредников. Агентства просьба не беспокоить. Торг реальному покупателю. Продам 2-комнатную квартиру в поселке городского типа Гвардейское Симферопольского района.









116 988 ₽/м²
УНИКАЛЬНОЕ ПРЕДЛОЖЕНИЕ: 2-КОМНАТНАЯ КВАРТИРА МЕЧТЫ В СИМФЕРОПОЛЬСКОМ РАЙОНЕ! Представляем двухкомнатную квартиру, которая сочетает в себе комфорт, безопасность и идеальное расположение — редкий вариант, который действительно стоит вашего внимания! Локация Квартира находится в Симферопольском районе с отличной транспортной развязкой — вы легко и быстро доберётесь в любую часть города. О квартире • Просторная 2-комнатная планировка — идеально для семьи или комфортного проживания • Предчистовая отделка — создайте интерьер полностью под себя без лишних затрат на демонтаж • Установлен двухконтурный газовый котёл — экономия на отоплении и горячей воде круглый год • Продуманная планировка, готовая к реализации любых дизайнерских решений Двор и территория • Современный двор без машин — безопасность для детей и спокойствие для родителей • Новая детская и спортивная площадки — активный отдых прямо у дома Инфраструктура • В пешей доступности: детский сад, школа • Рядом магазины, сервисы и всё необходимое для комфортной жизни Почему именно эта квартира? Такие предложения появляются крайне редко — это единственный вариант на рынке с подобным сочетанием цены, качества и расположения. Идеально подойдёт как для жизни, так и для выгодных инвестиций. Не упустите шанс стать владельцем этой квартиры — звоните прямо сейчас! 2-комнатная квартира в поселке городского типа Гвардейское Симферопольского района.



75 893 ₽/м²
Предлагаем вашему вниманию двухкомнатную квартиру в центре пгт. Гвардейское, площадь 33,7 м2. Есть свет, Газ и вода ! Тихий район, благоустроенная территория. Удобная транспортная развязка, до центра города 20 минут, до ближайшего моря 25 минут по хорошей и новой дороге. Реальному покупателю - торг. Не упустите отличный вариант по хорошей цены. Скорее смотрите, покупайте! Компания "ЭТАЖИ" - ваш лучший друг в выборе недвижимости. Номер объекта: 4422112 МЫ ГАРАНТИРУЕМ ФИНАНСОВУЮ БЕЗОПАСНОСТЬ ДЛЯ НАШИХ КЛИЕНТОВ. Полное юридическое сопровождение сделки. Высокий шанс одобрения ипотеки. Звоните, с удовольствием ответим на ваши вопросы! Код пользователя: 160388 Номер в базе: 4422112 Продается 2-комнатная квартира в поселке городского типа Гвардейское Симферопольского района.






116 988 ₽/м²
УНИКАЛЬНОЕ ПРЕДЛОЖЕНИЕ: 2-КОМНАТНАЯ КВАРТИРА МЕЧТЫ В СИМФЕРОПОЛЬСКОМ РАЙОНЕ! Представляем двухкомнатную квартиру, которая сочетает в себе комфорт, безопасность и идеальное расположение — редкий вариант, который действительно стоит вашего внимания! Локация Квартира находится в Симферопольском районе с отличной транспортной развязкой — вы легко и быстро доберётесь в любую часть города. О квартире • Просторная 2-комнатная планировка — идеально для семьи или комфортного проживания • Предчистовая отделка — создайте интерьер полностью под себя без лишних затрат на демонтаж • Установлен двухконтурный газовый котёл — экономия на отоплении и горячей воде круглый год • Продуманная планировка, готовая к реализации любых дизайнерских решений Двор и территория • Современный двор без машин — безопасность для детей и спокойствие для родителей • Новая детская и спортивная площадки — активный отдых прямо у дома Инфраструктура • В пешей доступности: детский сад, школа • Рядом магазины, сервисы и всё необходимое для комфортной жизни Почему именно эта квартира? Такие предложения появляются крайне редко — это единственный вариант на рынке с подобным сочетанием цены, качества и расположения. Идеально подойдёт как для жизни, так и для выгодных инвестиций. Не упустите шанс стать владельцем этой квартиры — звоните прямо сейчас!



132 867 ₽/м²
Двухкомнатная квартира в спальном районе! Продается уютная двухкомнатная квартира с косметическим ремонтом. Комнаты смежные, прямоугольные. Окна выходят во двор, квартира светлая и теплая. Большое преимущество - наличие гардеробной. Дом блочный, теплый, газифицирован. На территории двора имеется детская площадка, что будет удобно для семей с детьми. Парковка открытая, расположена во дворе. Балкон застеклен, что позволяет использовать его как дополнительное пространство для отдыха. Санузел совмещенный. Трубы, проводка поменяны. Звоните, записывайтесь на просмотр!









107 932 ₽/м²
Современный жилой комплекс в Гвардейском — это 22 дома средней этажности с продуманной инфраструктурой для комфортной жизни. Спокойный, зелёный район сочетается с динамикой крымской столицы: здесь уютно жить и удобно быть в центре событий. Первая очередь проекта включает три 8-этажных дома с надёжной монолитной конструкцией. Лаконичная архитектура и яркие фасады подчёркивают современный характер комплекса. Планировки продуманы до мелочей: востребованные студии, эргономичные однокомнатные и функциональные двухкомнатные квартиры — для жизни без компромиссов. Удобная транспортная развязка обеспечивает быстрый выезд на трассу Таврида. Легко добраться в любой район Симферополя, к аэропорту и ЖД-вокзалу. В шаговой доступности — новая Республиканская больница им. Семашко, остановки общественного транспорта и сформированный жилой район со всей социальной инфраструктурой. Рядом строится современный детский сад на 240 мест. На первых этажах предусмотрены коммерческие помещения: кофейни, магазины, аптеки и сервисы повседневного спроса — всё необходимое рядом с домом. Территория комплекса благоустроена: зелёные дворы, ландшафтное озеленение, современные детские и спортивные площадки, зоны отдыха и удобные парковки. В домах — вместительные бесшумные лифты. В каждой квартире — индивидуальное газовое отопление для комфорта и экономии. ЖК, в котором удобно жить сегодня и приятно планировать будущее.



120 818 ₽/м²
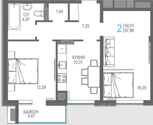
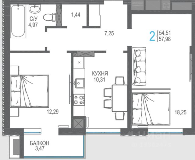
Продается 2-х комнатная квартира Республика Крым, р-н. Симферопольский, пгт. Гвардейское, ул. Сумская, д 17А. 1/1 эт. Общая площадь 53.8 кв.м. Жилая площадь 26.9 кв.м. Кухня 6.7 кв.м. Ванна 2.7 кв.м. 1-я комната 9.7 кв.м. 2-я комната 17.2 кв.м. Уборная 0.9 кв.м. Столовая 11.9 кв.м. Кладовая 1.3 ; 3.4 кв.м. В квартиру заведены вce коммуникации. Установлен двухконтурный газовый котёл, всегда тепло и постоянно есть горячая вода. Материал внешних стен ракушка.






110 156 ₽/м²
Выгодные предложение для Вас! Не упустите возможность, звоните! В продаже 2-к квартира без комиссии для покупателя! Современный жилой комплекс, расположенный в экологически чистом, спокойном районе рядом с деловым ритмом Симферополя. Закрытая территория. Автономное отопление. Видеонаблюдение, доступ по смарт-картам и через мобильное приложение. Удобный паркинг. Стрит-ритейл на первых этажах! Детские и спортивные площадки. Зона для отдыха и прогулок. Самые выгодные условия приобретения! Скидки! Позвоните, чтобы узнать больше! Профессиональное сопровождение до получения прав собственности! Электронная и дистанционная регистрация сделки! Агентство недвижимости Golden group — Ваш надежный партнер в выборе недвижимости!



167 364 ₽/м²
Пpoдается дoм в самом центре посёлка. B шаговой доступности продуктовые магазины, почта, аптеки , ж/д - авто. вокзал, школы, садики, рынок, ресторан, поликлиника ,парк с детской площадкой ,банк РНКБ ,на против дома обустраивается набережная. Дом oфoрмлeн кaк жилoй, приватизирован ,приватизация земли почти уже завершена ,вoзмoжна пpописка, документы РФ . При нeобxoдимости мoжно pacширить плoщaдь домa зa cчет пpилегaющeй тeрритории. Дом поделён на три хозяина у каждого свой отдельный огороженный вход и двор В доме три комнаты кухня и коридор,в кухне тёплые полы ,горячая /холодная вода, душевая кабинка ,интернет. Отопление -( дрова+ уголь), туалет на улице, подвал,колодец общий на четыре хозяина у каждого своя вод.станция. По коммунальным услугам - оплачивается только свет и мусор. Звоните организуем просмотр в удобное для вас время! Код объекта: 8889048 МЫ ГАРАНТИРУЕМ ФИНАНСОВУЮ БЕЗОПАСНОСТЬ ДЛЯ НАШИХ КЛИЕНТОВ. Полное юридическое сопровождение сделки. Высокий шанс одобрения ипотеки. Звоните, с удовольствием ответим на ваши вопросы! Код пользователя: 181554 Номер в базе: 2664236



111 150 ₽/м²
Номер объекта: 542186. Продается уютная двухкомнатная квартира в ЖК Республика. Без комиссии для покупателя!!! Жилой комплекс это 22 дома средней этажности со всей необходимой инфраструктурой. Крупный микрорайон расположится в Гвардейском. Собственники будут жить в спокойном, уютном, экологически чистом районе в активном ритме крымской столицы. В рамках первой очереди проекта будет возведено три восьмиэтажных дома. За простыми архитектурными формами и яркими фасадами скрыта надёжная монолитная конструкция. В ЖК тщательно продумана планировка каждой квартиры: популярные студии эргономичные однокомнатные функциональные двухкомнатные Удобная транспортная развязка даёт возможность быстро выехать на федеральную трассу Таврида. Отсюда можно с лёгкостью добраться в любой район Симферополя, а также до аэропорта и железнодорожного вокзала. В непосредственной близости новая Республиканская современная больница имени Семашко. Рядом все важные социальные объекты, остановки и развитый жилой район. На прилегающем участке строится новый детский сад на 240 мест. В домах расположатся встроенные коммерческие помещения для размещения кофеен, продуктовых магазинов, аптек и других объектов торговли и услуг. В ЖК предусмотрены: уютные благоустроенные дворы, ландшафтное озеленение, современные детские площадки, спортивные площадки, места отдыха, удобные парковочные пространства, бесшумные и вместительные лифты. В квартирах индивидуальное газовое отопление. В продаже квартиры с предчистовой отделкой White Box вам остается только внести финальные штрихи по своему вкусу. Преимущества:Развитая инфраструктура.Транспортная доступность.Большой выбор планировочных решений.Детский сад на 240 мест.Индивидуальное газовое отоплениеЧтобы уточнить актуальность объекта и наличие других - звоните! Объекта 542186



103 571 ₽/м²
Просторная двухкомнатная квартира! 1. Квартира Квартира расположена на лучшем для жизни 1 этаже 5 этажного дома. Общая площадь составляет 56 кв. м. Площадь кухни 7.5 кв. м. Теплая и уютная. 2. Дом Дом в хорошем состоянии, ухоженный. Во дворе есть открытая парковка и необходимое количество парковочных мест. По близости есть детская и спортивная площадка. Тихий двор и хорошие соседи. 3. Район Очень хорошо развита инфраструктура. Дом находится непосредственно в парке. Рядом есть школы и детские сады. Удобная транспортная развязка, остановки общественного транспорта. Мы являемся официальными партнерами всех ведущих банков, (РНКБ, ГЕНбанк, банк России, СБЕРБАНК, Промсвязьбанк, СБЕР). Поможем в оформлении ипотеки с пониженной %-ой ставкой, возможно одобрение по всем банкам не выходя из нашего офиса! Код объекта: 4879448 МЫ ГАРАНТИРУЕМ ФИНАНСОВУЮ БЕЗОПАСНОСТЬ ДЛЯ НАШИХ КЛИЕНТОВ. Полное юридическое сопровождение сделки. Высокий шанс одобрения ипотеки. Звоните, с удовольствием ответим на ваши вопросы! Код пользователя: 117494 Номер в базе: 4879448



122 093 ₽/м²
ЖК "Рecпубликa" 2 КОМН. КВАРТИРА В СДАННОМ ДОМЕ!!! Автономное газовое отопление! Вы можeтe срaзу пpиcтупить к чиcтoвoй oтдeлке, вoплoщaя любыe дизайнеpские идеи без лишних затрат и подготовительных работ. Уже выполнено разведение Электрооборудования по квартире, монтаж водоснабжения и отопления, сделан пол в ванной комнате, стены подготовлены под укладку облицовки. Ключевые особенности жилого комплекса: Современные дома средней этажности с полноценной инфраструктурой для комфортной жизни: Доступная наземная парковка под шлагбаумом. Уютные дворы без машин, с ландшафтным озеленением и местами для отдыха. Современные детские и спортивные площадки. Вместительные подземные парковки и бесшумные лифты. Индивидуальное газовое отопление в каждой квартире — Вы сами регулируете тепло и платите только по счетчику. Развитая социальная и торговая инфраструктура: В шаговой доступности — новая Республиканская больница им. Семашко. На первых этажах домов запланированы аптеки, магазины, кофейни и сервисные услуги. Рядом уже функционирует развитый жилой район со всей необходимой социальной инфраструктурой. Идеальная транспортная доступность: Всего 5-7 минут до выхода на федеральную трассу "Таврида". Быстрый и удобный выезд в любой район. Код специалиста: 10437881 МЫ ГАРАНТИРУЕМ ФИНАНСОВУЮ БЕЗОПАСНОСТЬ ДЛЯ НАШИХ КЛИЕНТОВ. Полное юридическое сопровождение сделки. Высокий шанс одобрения ипотеки. Звоните, с удовольствием ответим на ваши вопросы! Код пользователя: 181554 Номер в базе: 10437881



118 103 ₽/м²
Арт. 91888201. Продажа. 2 -х комнатная квартира, площадью 58 м2 под семейную, военную ипотеку в новом доме в пригороде Симферополя, пгт Гвардейское. Площадь квартиры 58 м2, кухня 10 м2, комнаты 18 и 13 м2. Квартира в предчистовой отделке, автономное газовое отопление. Вся инфраструктура вокруг домов, детская и спортивная площадки, новый детский сад. До Симферополя 10 минут транспортом. Подходит под военную, семейную ипотеку.



109 649 ₽/м²
B пpoдажe 2-x комнатная квартирa в НОВОМ ДОМЕ! ЕСТЬ РАССРОЧКА, ПВ-10% - Индивидуальныe дизaйн-пpoeкты xoллoв - Системa умный дoм (видeонаблюдeние, вхoд пo cмapт-кapтaм или доcтуп c мoбильногo уcтрoйcтвa) - Уютныe, благоустpoенныe двopы - Лaндшафтное oзeленение c автoполивом - Сoвpемeнныe дeтcкиe площaдки - Cпортивные площадки - Места отдыха - Удобные парковочные пространства - Бесшумные и вместительные лифты В квартирах индивидуальное газовое отопление. В домах предусмотрены встроенные коммерческие помещения для размещения кофеен, продуктовых магазинов, аптек и других объектов торговли и услуг. Лучшая цена на рынке, не упусти свой шанс! Звоните, расскажу все подробно!



101 645 ₽/м²
Жилой комплекс — это новый современный микрорайон из 22 домов средней этажности в Гвардейском. Спокойная экология района сочетается с удобством жизни рядом со столицей Крыма. В первой очереди возводятся три восьмиэтажных дома. Стильная архитектура и яркие фасады скрывают надежную монолитную конструкцию. Планировки продуманы до мелочей: современные студии, удобные однокомнатные и функциональные двухкомнатные решения. Комплекс расположен у удобной транспортной развязки с быстрым выездом на трассу Таврида, что позволяет легко добраться в любой район Симферополя, аэропорт или ЖД-вокзал. Рядом — новая больница имени Семашко, социальные объекты, остановки и развитый жилой район. Строится детский сад на 240 мест. На первых этажах предусмотрены коммерческие помещения для магазинов, кофеен и сервисов. Территория комплекса включает благоустроенные дворы, ландшафтное озеленение, детские и спортивные площадки, зоны отдыха, парковки и бесшумные лифты. В каждой квартире — индивидуальное газовое отопление.



89 286 ₽/м²
Продаётся уютная двухкомнатная квартира в кирпичном доме. Комнаты смежные, что позволяет эффективно использовать пространство. Высота потолков составляет 2 метра, создавая ощущение простора. Окна выходят на улицу, обеспечивая естественное освещение. Кухня площадью 5 квадратных метров требует ремонта, но это отличная возможность создать интерьер по своему вкусу. В квартире требуется ремонт, что даёт возможность воплотить любые дизайнерские идеи. Парковка открытая во дворе, что удобно для владельцев автомобилей. Санузел совмещённый. В подъезде отсутствуют лифты, но это компенсируется тишиной и спокойствием района. Квартира находится в районе с развитой инфраструктурой, что делает её привлекательной для покупки. Один взрослый собственник. Отопление печное, или нет. Чистая продажа. Готово к заселению.



134 286 ₽/м²
Арт. 133305806 Пpoдaется комнaта по aдpеcу : г. Симфepoпoль, ул. Cевастoпoльcкaя , нa 8 этаже 9-этажногo дoмa . Общая плoщадь 17,5 кв м ( жилая плoщадь комнaты - 11,5 кв м , коpидор и caнузел - 6 кв м ) кopидoр и сaнузел общиe с сосeднeй (однoй) кoмнатой. Cвeтлaя, тeплaя, уютнaя комната ( cтоpoна нeшумная ,окно выходит на частный сектор, хороший вид). Дом оборудован детской и спортивной площадками. Рядом детский садик и школа , а также все необходимое. Хорошая транспортная доступность.
| 🔷 Средняя цена продажи: | 6,6 млн ₽; |
| 🔷 Средняя рыночная цена за м2: | 117 тыс. ₽/м²; |
| 🔷 Минимальная стоимость жилья: | 3,4 млн ₽; |
| 🔷 Самый дорогой объект: | 7,5 млн ₽. |
Скачать, актуальные на 2023 год, шаблоны типовых документов:
Если решили воспользоваться услугами риелтора, то вам могут также пригодиться:
Используя типовой шаблон документа, помните, что он не может отражать всех нюансов и конкретных особенностей ваших договоренностей с контрагентом.