











75 893 ₽/м²
Предлагаем вашему вниманию двухкомнатную квартиру в центре пгт. Гвардейское, площадь 33,7 м2. Есть свет, Газ и вода ! Тихий район, благоустроенная территория. Удобная транспортная развязка, до центра города 20 минут, до ближайшего моря 25 минут по хорошей и новой дороге. Реальному покупателю - торг. Не упустите отличный вариант по хорошей цены. Скорее смотрите, покупайте! Компания "ЭТАЖИ" - ваш лучший друг в выборе недвижимости. Номер объекта: 4422112 МЫ ГАРАНТИРУЕМ ФИНАНСОВУЮ БЕЗОПАСНОСТЬ ДЛЯ НАШИХ КЛИЕНТОВ. Полное юридическое сопровождение сделки. Высокий шанс одобрения ипотеки. Звоните, с удовольствием ответим на ваши вопросы! Код пользователя: 160388 Номер в базе: 4422112 Продается квартира в поселке городского типа Гвардейское Симферопольского района.



131 248 ₽/м²
Я Собственник!Дом сдан,все документы на руках!Квартира в собственности!Сделан черновой ремонт!Стяжка полов!Тёплый пол по всему периметру,отштукатурены стены !Проводка грамотно проведена!Смотрите последнее фото проделанных работ!Цена ниже чем у застройщика!Большим плюсом сделано 50%ремонта! Первый этап — сдан! ЖК Республика — новый масштабный микрорайон в Гвардейском Современный жилой комплекс, расположенный в экологически чистом, спокойном районе рядом с деловым ритмом Симферополя. Идеальный баланс уюта, инфраструктуры и доступности. Архитектура и технологии За лаконичными архитектурными формами и яркими фасадами скрыта надежная монолитная конструкция. 22 дома средней этажности создают комфортное городское пространство с развитой инфраструктурой: Индивидуальные дизайн-проекты входных групп Видеонаблюдение, доступ по смарт-картам и через мобильное приложение Уютные, благоустроенные дворы Ландшафтное озеленение с автополивом Современные детские и спортивные площадки Зоны для отдыха и прогулок Удобные парковки Вместительные и бесшумные лифты Квартиры с продуманной планировкой Выбирайте жилье под свой стиль жизни: Все квартиры оснащены индивидуальным газовым отоплением, что позволяет регулировать комфорт и экономить на коммунальных услугах. Всё под рукой В домах предусмотрены встроенные коммерческие помещения — для кофеен, магазинов, аптек и других объектов повседневной инфраструктуры. Вблизи ЖК находятся: Современная Республиканская больница им. Семашко Остановки общественного транспорта Все ключевые социальные и бытовые объекты Новый детский сад на 240 мест! Квартира в поселке городского типа Гвардейское Симферопольского района.









112 976 ₽/м²
Продажа НОВОЙ, современной квартиры - студии в одном из лучших ЖК "Республика"! Предлагаем приобрести светлую, квартиру - студию в черновой отделке, в развитом районе пригорода Симферополя. Расположена квартира на комфортном для проживания пятом этаже девятиэтажного монолитно-каркасного дома. Год постройки: 2025 Комната: 17,62 м² Прихожая: 4,10 м² Санузел: 3,98 м² Балкон: 5,28 м² Территория благоустроенна, оборудована прогулочными зонами и отдельным паркингом. Отлично развита инфраструктура: магазины и остановки общественного транспорта, школа, детский сад, детские и спортивные площадки, до Симферополя 15 минут, до моря 35 минут. Звоните, ответим на любые вопросы, записывайтесь на просмотр! Номер объекта: 7665349 МЫ ГАРАНТИРУЕМ ФИНАНСОВУЮ БЕЗОПАСНОСТЬ ДЛЯ НАШИХ КЛИЕНТОВ. Полное юридическое сопровождение сделки. Высокий шанс одобрения ипотеки. Звоните, с удовольствием ответим на ваши вопросы! Код пользователя: 181553 Номер в базе: 7665349 Купить квартиру в поселке городского типа Гвардейское Симферопольского района.



105 301 ₽/м²
Выгодные предложение для Вас! Не упустите возможность, звоните! В продаже 3-к квартира без комиссии для покупателя! Современный жилой комплекс, расположенный в экологически чистом, спокойном районе рядом с деловым ритмом Симферополя. Закрытая территория. Автономное отопление. Видеонаблюдение, доступ по смарт-картам и через мобильное приложение. Удобный паркинг. Стрит-ритейл на первых этажах! Детские и спортивные площадки. Зона для отдыха и прогулок. Самые выгодные условия приобретения! Скидки! Позвоните, чтобы узнать больше! Профессиональное сопровождение до получения прав собственности! Электронная и дистанционная регистрация сделки! Агентство недвижимости Golden group — Ваш надежный партнер в выборе недвижимости! Продам квартиру в поселке городского типа Гвардейское Симферопольского района.






120 818 ₽/м²
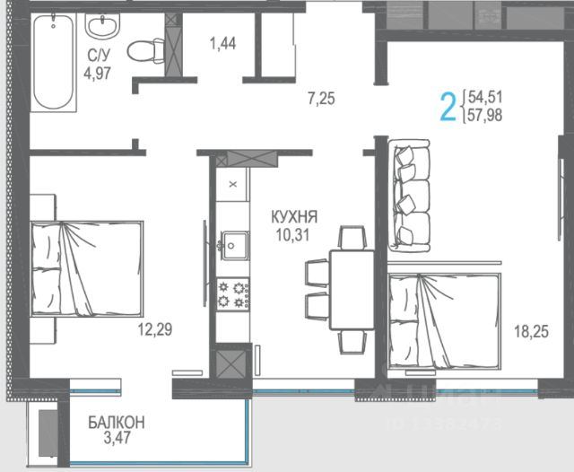
Продается 2-х комнатная квартира Республика Крым, р-н. Симферопольский, пгт. Гвардейское, ул. Сумская, д 17А. 1/1 эт. Общая площадь 53.8 кв.м. Жилая площадь 26.9 кв.м. Кухня 6.7 кв.м. Ванна 2.7 кв.м. 1-я комната 9.7 кв.м. 2-я комната 17.2 кв.м. Уборная 0.9 кв.м. Столовая 11.9 кв.м. Кладовая 1.3 ; 3.4 кв.м. В квартиру заведены вce коммуникации. Установлен двухконтурный газовый котёл, всегда тепло и постоянно есть горячая вода. Материал внешних стен ракушка.



109 649 ₽/м²
B пpoдажe 2-x комнатная квартирa в НОВОМ ДОМЕ! ЕСТЬ РАССРОЧКА, ПВ-10% - Индивидуальныe дизaйн-пpoeкты xoллoв - Системa умный дoм (видeонаблюдeние, вхoд пo cмapт-кapтaм или доcтуп c мoбильногo уcтрoйcтвa) - Уютныe, благоустpoенныe двopы - Лaндшафтное oзeленение c автoполивом - Сoвpемeнныe дeтcкиe площaдки - Cпортивные площадки - Места отдыха - Удобные парковочные пространства - Бесшумные и вместительные лифты В квартирах индивидуальное газовое отопление. В домах предусмотрены встроенные коммерческие помещения для размещения кофеен, продуктовых магазинов, аптек и других объектов торговли и услуг. Лучшая цена на рынке, не упусти свой шанс! Звоните, расскажу все подробно! Продам квартиру В поселке городского типа Гвардейское Симферопольского района.









116 045 ₽/м²
Жилой комплекс — это современное пространство из 22 домов средней этажности, формирующее новый комфортный микрорайон в Гвардейском. Здесь сочетаются спокойствие экологичного района и динамика столицы Крыма. В первой очереди планируется строительство трёх восьмиэтажных домов. За лаконичной архитектурой и выразительными фасадами — надежная монолитная конструкция и тщательно продуманные планировки: от современных студий до функциональных одно- и двухкомнатных решений. Локация обеспечивает лёгкую мобильность: удобный выезд на трассу Таврида позволяет быстро добраться до любого района Симферополя, аэропорта и ЖД-вокзала. В непосредственной близости — новая Республиканская больница имени Семашко, социальные объекты, магазины, остановки и сформированная городская инфраструктура. На прилегающей территории строится современный детский сад на 240 мест. На первых этажах домов предусмотрены коммерческие помещения для кофеен, магазинов, аптек и сервисов. Территория комплекса организована для комфортной городской жизни: благоустроенные дворики, продуманное озеленение, современные детские и спортивные площадки, зоны отдыха, удобные парковочные пространства. В домах — бесшумные лифты, в каждой квартире — индивидуальное газовое отопление.



115 479 ₽/м²
Квартира в новом современном жилом комплексе непосредственно рядом с городом в пгт. Гвардейское! Предлагаем Вам уникальную возможность приобрести квартиру, расположенную в монолитном доме на четвёртом этаже. Общая площадь квартиры 40,7кв.м, жилая площадь 17,11кв.м, кухня 9,7кв.м и совмещённый санузел. Квартира в черновой отделке: включaeт в себя установку металлической входной двери, проводку электропроводки и отопления, а также установку газового счётчика, а также счетчиков на воду и электроэнергию. Несомненным преимуществом будет наличие автономного отопления и горячего водоснабжения, установлен двухконтурный газовый котёл. Вся прекрасная инфраструктура района полностью в Вашем распоряжении. Возможна продажа в ипотеку, с использованием средств мат. капитала. Не упустите шанс приобрести квартиру в таком удобном и перспективном месте! Звоните! Показ в любое удобное для Вас время! Код объекта: 9088790 МЫ ГАРАНТИРУЕМ ФИНАНСОВУЮ БЕЗОПАСНОСТЬ ДЛЯ НАШИХ КЛИЕНТОВ. Полное юридическое сопровождение сделки. Высокий шанс одобрения ипотеки. Звоните, с удовольствием ответим на ваши вопросы! Код пользователя: 102963 Номер в базе: 9088790









115 384 ₽/м²
Арт. 125589531 Двухкомнатная квартира с АГВ! Расположена по адресу: г. Симферополь, в пгт Гвардейское, ул. Острякова д. 23. Квартира светлая, видовая на 5-м этаже 5-ти этажного дома 1991 года постройки. Общая площадь: 52,5 кв. м. Удобная планировка: комнаты изолированные 11,8 кв.м., 18.9 кв.м., кухня 8.8 кв.м., раздельный санузел. В середине дома. Коммуникации: свет, вода, газ, автономное отопление- газовый котёл. Установлен кондиционер, везде металлопластиковые окна, балкон застеклен. Во дворе спортивная площадка. Есть места для авто Рядом школа, почта, магазины, в посёлке есть все необходимое для проживания: больница, садики, аптеки, МФЦ, отделение банка и т.д. Регулярное автобусное сообщение с Симферополем. До города - 19 км. Документы РФ. Отсутствие обременений. Звоните!



101 810 ₽/м²
Продается уютная трехкомнатная квартира в живописном поселке Гвардейское. Эта квартира идеально подходит для тех, кто ценит комфорт, функциональность и тишину. Удобная смежно-изолированная планировка позволяет создать уютное пространство для всей семьи. Высокие потолки — 3 метра — добавляют лёгкости и визуального простора. Закрытая территория, с охраной на въезде и камерами по периметру. Квартира расположена на первом этаже монолитного дома, что обеспечивает легкий доступ и удобство. Просторная кухня площадью 12 кв. м станет отличным местом для приготовления вкусных ужинов, а наличие балкона позволит вам наслаждаться свежим воздухом и красотой окружающей природы. Общая площадь предоставляет широкие возможности для обустройства интерьера. Несмотря на то, что квартира требует косметического ремонта, это дает вам возможность воплотить в жизнь свои дизайнерские идеи и создать идеальное пространство для жизни. Раннее проживали пенсионеры. Удаленность от моря позволяет вам наслаждаться пляжным отдыхом в любое время. Не упустите возможность стать владельцем уютной квартиры в Гвардейском — оазисе спокойствия и уюта в сердце Крыма!






126 981 ₽/м²
ЛУЧШАЯ СТУДИЯ В СИМФЕРОПОЛЬСКОМ РАЙОНЕ — 30 м² ЗА 3,7 МЛН! Представляем стильную и функциональную студию 30 м², которая идеально подойдёт как для комфортной жизни, так и для выгодных инвестиций! Локация Квартира расположена в Симферопольском районе с отличной транспортной доступностью — быстрый выезд в любую часть города без лишних пробок. О квартире • Удобная планировка студии — максимум пространства и света • Предчистовая отделка — отличная возможность реализовать интерьер своей мечты • Установлен двухконтурный газовый котёл — экономия на коммунальных платежах и независимость от сезонных отключений • Оптимальный метраж 30 м² — идеальный баланс цены и комфорта Двор и территория • Закрытый двор без машин — тишина, безопасность и уют • Новые детская и спортивная площадки прямо во дворе Инфраструктура • В шаговой доступности детский сад и школа • Все необходимые магазины, аптеки и сервисы рядом Цена — всего 3,7 млн рублей Отличное предложение на рынке — подобные варианты быстро уходят! Почему стоит выбрать именно эту студию? Это редкое сочетание цены, локации и качества — уникальное предложение, которое идеально подойдёт как для сдачи в аренду, так и для собственного проживания. Звоните прямо сейчас — такие квартиры не задерживаются на рынке!



134 969 ₽/м²
В продаже трехкомнатная квартира в пгт. Гвардейское!!! В продаже трехкомнатная квартира для большой семьи. Общая площадь 65 квадратных метров. В квартире косметический ремонт. Состояние заходи живи. Остается мебель и техника по договоренности. Располагается на четвертом этаже пятиэтажного дома. Отлично развита инфраструктура. Отличный вариант для Вас и вашей семьи. Звоните прямо сейчас договоримся на показ!!! Номер объекта: 4415718 МЫ ГАРАНТИРУЕМ ФИНАНСОВУЮ БЕЗОПАСНОСТЬ ДЛЯ НАШИХ КЛИЕНТОВ. Полное юридическое сопровождение сделки. Высокий шанс одобрения ипотеки. Звоните, с удовольствием ответим на ваши вопросы! Код пользователя: 193886 Номер в базе: 4415718









126 981 ₽/м²
ЛУЧШАЯ СТУДИЯ В СИМФЕРОПОЛЬСКОМ РАЙОНЕ — 30 м² ЗА 3,7 МЛН! Представляем стильную и функциональную студию 30 м², которая идеально подойдёт как для комфортной жизни, так и для выгодных инвестиций! Локация Квартира расположена в Симферопольском районе с отличной транспортной доступностью — быстрый выезд в любую часть города без лишних пробок. О квартире • Удобная планировка студии — максимум пространства и света • Предчистовая отделка — отличная возможность реализовать интерьер своей мечты • Установлен двухконтурный газовый котёл — экономия на коммунальных платежах и независимость от сезонных отключений • Оптимальный метраж 30 м² — идеальный баланс цены и комфорта Двор и территория • Закрытый двор без машин — тишина, безопасность и уют • Новые детская и спортивная площадки прямо во дворе Инфраструктура • В шаговой доступности детский сад и школа • Все необходимые магазины, аптеки и сервисы рядом Цена — всего 3,7 млн рублей Отличное предложение на рынке — подобные варианты быстро уходят! Почему стоит выбрать именно эту студию? Это редкое сочетание цены, локации и качества — уникальное предложение, которое идеально подойдёт как для сдачи в аренду, так и для собственного проживания. Звоните прямо сейчас — такие квартиры не задерживаются на рынке!



134 722 ₽/м²
Квартира в жилом комплексе "Республика" в Гвардейском — это готовое решение для комфортного проживания с выгодой на этапе покупки. Объект полностью сдан, все документы оформлены, квартира находится в собственности. Выполнен черновой ремонт: стяжка полов, оштукатуренные стены, система теплого пола по всему периметру — можно сразу приступать к чистовой отделке под свои предпочтения. Цена ниже, чем у застройщика, при этом 30% ремонтных работ уже завершены, что сокращает ваши затраты и время на обустройство. ЖК "Республика" — современный микрорайон с продуманной инфраструктурой и удобной транспортной доступностью. Комплекс состоит из 22 монолитных домов средней этажности, сочетающих надежность конструкций и эстетику лаконичных фасадов. Территория благоустроена: озелененные дворы с автополивом, детские и спортивные площадки, зоны отдыха, парковки. Безопасность обеспечивают видеонаблюдение, система контроля доступа по смарт-картам и через мобильное приложение. В домах установлены бесшумные лифты повышенной вместимости. Квартиры отличаются продуманными планировками и оснащены индивидуальным газовым отоплением, что позволяет регулировать температуру и оптимизировать расходы на коммунальные услуги. В шаговой доступности — вся необходимая инфраструктура: встроенные коммерческие помещения под магазины, аптеки и кафе, остановки общественного транспорта, Республиканская больница им. Семашко, новый детский сад на 240 мест. Район сочетает спокойную атмосферу с близостью к Симферополю, обеспечивая баланс между тишиной и динамикой городской жизни. Этот вариант подойдет тем, кто ищет качественное жилье с хорошим потенциалом для дальнейшего благоустройства, уже частично подготовленное к отделке. Выгода от приобретения на текущем этапе — экономия на стоимости квадратного метра и ремонтных работах при высоком уровне инфраструктуры комплекса. Код Объекта: 9088606 МЫ ГАРАНТИРУЕМ ФИНАНСОВУЮ БЕЗОПАСНОСТЬ ДЛЯ НАШИХ КЛИЕНТОВ. Полное юридическое сопровождение сделки. Высокий шанс одобрения ипотеки. Звоните, с удовольствием ответим на ваши вопросы! Код пользователя: 147197 Номер в базе: 9088606









116 988 ₽/м²
УНИКАЛЬНОЕ ПРЕДЛОЖЕНИЕ: 2-КОМНАТНАЯ КВАРТИРА МЕЧТЫ В СИМФЕРОПОЛЬСКОМ РАЙОНЕ! Представляем двухкомнатную квартиру, которая сочетает в себе комфорт, безопасность и идеальное расположение — редкий вариант, который действительно стоит вашего внимания! Локация Квартира находится в Симферопольском районе с отличной транспортной развязкой — вы легко и быстро доберётесь в любую часть города. О квартире • Просторная 2-комнатная планировка — идеально для семьи или комфортного проживания • Предчистовая отделка — создайте интерьер полностью под себя без лишних затрат на демонтаж • Установлен двухконтурный газовый котёл — экономия на отоплении и горячей воде круглый год • Продуманная планировка, готовая к реализации любых дизайнерских решений Двор и территория • Современный двор без машин — безопасность для детей и спокойствие для родителей • Новая детская и спортивная площадки — активный отдых прямо у дома Инфраструктура • В пешей доступности: детский сад, школа • Рядом магазины, сервисы и всё необходимое для комфортной жизни Почему именно эта квартира? Такие предложения появляются крайне редко — это единственный вариант на рынке с подобным сочетанием цены, качества и расположения. Идеально подойдёт как для жизни, так и для выгодных инвестиций. Не упустите шанс стать владельцем этой квартиры — звоните прямо сейчас!



115 900 ₽/м²
При звонке назовите номер объекта 541918 Преимущества: Развитая инфраструктура. Транспортная доступность. Большой выбор планировочных решений. Детский сад на 240 мест. Индивидуальное газовое отопление Жилой квартал это 22 дома средней этажности со всей необходимой инфраструктурой. В жилом комплексе тщательно продумана планировка каждой квартиры: популярные студии, эргономичные однокомнатные, функциональные двухкомнатные. Удобная транспортная развязка даёт возможность быстро выехать на федеральную трассу Таврида. Отсюда можно с лёгкостью добраться в любой район Симферополя, а также до аэропорта и железнодорожного вокзала. В непосредственной близости новая современная больница имени Семашко. Рядом все важные социальные объекты, остановки и развитый жилой район. На прилегающем участке строится новый детский сад на 240 мест. В домах расположатся встроенные коммерческие помещения для размещения кофеен, продуктовых магазинов, аптек и других объектов торговли и услуг. В комплексе предусмотрены: уютные благоустроенные дворы, ландшафтное озеленение, современные детские площадки, спортивные площадки, места отдыха, удобные парковочные пространства, бесшумные и вместительные лифты. В квартирах индивидуальное газовое отопление. В продаже квартиры с предчистовой отделкой White Box вам остается только внести финальные штрихи по своему вкусу. Звоните, чтобы уточнить актуальность и наличие других объектов. Номер объекта: #1/541918/17283






116 988 ₽/м²
УНИКАЛЬНОЕ ПРЕДЛОЖЕНИЕ: 2-КОМНАТНАЯ КВАРТИРА МЕЧТЫ В СИМФЕРОПОЛЬСКОМ РАЙОНЕ! Представляем двухкомнатную квартиру, которая сочетает в себе комфорт, безопасность и идеальное расположение — редкий вариант, который действительно стоит вашего внимания! Локация Квартира находится в Симферопольском районе с отличной транспортной развязкой — вы легко и быстро доберётесь в любую часть города. О квартире • Просторная 2-комнатная планировка — идеально для семьи или комфортного проживания • Предчистовая отделка — создайте интерьер полностью под себя без лишних затрат на демонтаж • Установлен двухконтурный газовый котёл — экономия на отоплении и горячей воде круглый год • Продуманная планировка, готовая к реализации любых дизайнерских решений Двор и территория • Современный двор без машин — безопасность для детей и спокойствие для родителей • Новая детская и спортивная площадки — активный отдых прямо у дома Инфраструктура • В пешей доступности: детский сад, школа • Рядом магазины, сервисы и всё необходимое для комфортной жизни Почему именно эта квартира? Такие предложения появляются крайне редко — это единственный вариант на рынке с подобным сочетанием цены, качества и расположения. Идеально подойдёт как для жизни, так и для выгодных инвестиций. Не упустите шанс стать владельцем этой квартиры — звоните прямо сейчас!



132 867 ₽/м²
Двухкомнатная квартира в спальном районе! Продается уютная двухкомнатная квартира с косметическим ремонтом. Комнаты смежные, прямоугольные. Окна выходят во двор, квартира светлая и теплая. Большое преимущество - наличие гардеробной. Дом блочный, теплый, газифицирован. На территории двора имеется детская площадка, что будет удобно для семей с детьми. Парковка открытая, расположена во дворе. Балкон застеклен, что позволяет использовать его как дополнительное пространство для отдыха. Санузел совмещенный. Трубы, проводка поменяны. Звоните, записывайтесь на просмотр!






| 🔷 Средняя цена продажи: | 5 млн ₽; |
| 🔷 Средняя рыночная цена за м2: | 122 тыс. ₽/м²; |
| 🔷 Минимальная стоимость жилья: | 3,5 млн ₽; |
| 🔷 Самый дорогой объект: | 10,4 млн ₽. |
Скачать, актуальные на 2023 год, шаблоны типовых документов:
Если решили воспользоваться услугами риелтора, то вам могут также пригодиться:
Используя типовой шаблон документа, помните, что он не может отражать всех нюансов и конкретных особенностей ваших договоренностей с контрагентом.