


370 932 ₽/м²
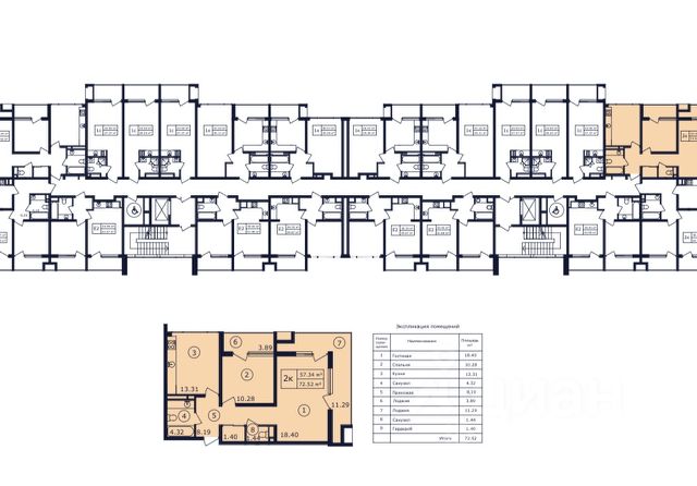
От Собственника!! Премиальные инвестиции на первой линии в Крыму с доходом уже в следующем году! Минус 3 млн. р. от цены застройщика! Всего 30 метров до моря! Уникальный проект для круглогодичного отдыха на берегу Черного моря — *ОТЕЛЬ 5* Sky Soul Residences* Характеристики апартамента: - Площадь 72,52 м2 на 2 этаже; - Вид на бассейн, боковой вид на Кара-даг; - Комплекс введен в эксплуатацию *Преимущества для инвестора:* - Доходы уже с сезона 2026! - Полное управление от УК - Высокая доходность и гарантированный доход - Все апартаменты с готовым меблированием - Закрытая территория с премиальной инфраструктурой - Потрясающий вид на море в живописном поселке Коктебель Станьте владельцем апартаментов под управлением мирового бренда и вас ждет гарантированный доход от полного управления объектом, забота о вашем активе на каждом этапе и исключительная доходность, которая выделяет этот проект на фоне остальных. *О комплексе SKYSOUL*, который реализован по принципу город в городе * 14,5 га общая площадь * 2 открытых бассейна * 1 крытый подогреваемый бассейн * 4х этажный SPA-комплекс * Детские игровые пространства для разных возрастов (мультиигровой центр, скальдом, пап-трек) * Спортивные зоны (нокаут, корт, тренажерный зал, мини-гольф) * Коворкинг * Собственная набережная реки * Торговый центр * Паркинг на 2500 мест *Инвестируйте в эксклюзивный комфорт и стабильный доход!* Обращайтесь за подробностями и для организации просмотра в удобное для вас время.

























































































