152 083 ₽/м²
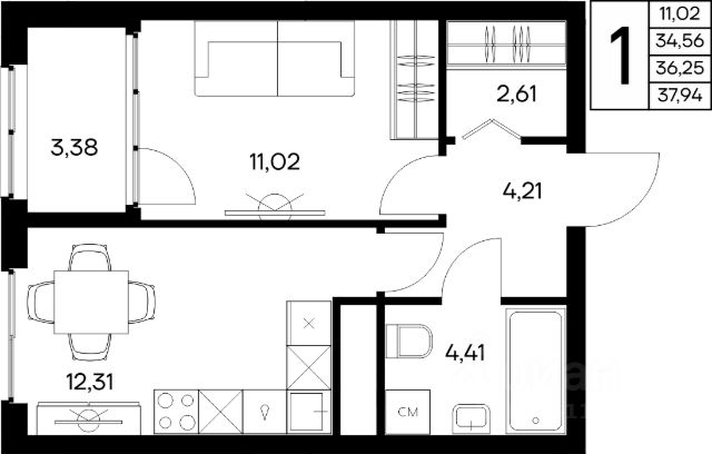
Продается 1 комнатная квартира в Авторском жилой квартале Листория.Предлагается к продаже однокомнатная квартира в жилом комплексе Листория. Объект отличается выгодным расположением, развитой инфраструктурой. Основные параметры объекта: Общая площадь: 38,10м2.Жилая площадь: 10,9 м2.Этаж: 2 из 4.Состояние: без чистовой отделки (БЧО).Ключевые особенности квартиры:индивидуальное газовое отопление;анфиладные гардеробные и гардеробные в прихожей;кухниниши и полуниши;Инфраструктура в шаговой доступности В рамках проекта предусмотрено строительство: двух детских садов; школы; торгового комплекса; бизнесцентра. до центра Симферополя — 15 минут; до аэропорта — 20 минут; до железнодорожного вокзала — 15 минут. Условия сделки: Форма расчёта: рассматриваются все варианты, включая безналичные платежи и ипотеку. Возможность проведения дистанционной сделки. Полное юридическое сопровождение на всех этапах. Документы российского образца, прошли проверку на юридическую чистоту. Организация просмотра: Показ объекта проводится в удобное для покупателя время по предварительной договорённости. Для получения дополнительной информации и согласования даты просмотра просим связаться с нами по указанным контактам. С уважением, Компания Каньон Номер объекта: #1/550646/23345








































































