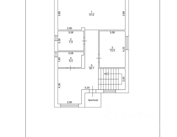
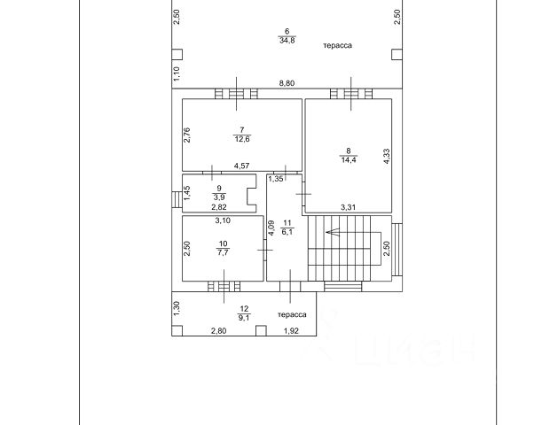
Продается Великолепная современная резиденция в итальянском стиле ( входящая в комплекс вилл ), расположенная в одном из самых престижных районов курортной Евпатории. Этот дом идеально подойдёт как для комфортного проживания, так и для ведения бизнеса (например, мини-отель или дом отдыха). Этот дом — воплощение комфорта и идеально подходит для тех, кто ценит высокий уровень жизни и наслаждается красотой природы. Общая информация: Площадь дома: 190 м². Площадь участка: 6 соток. Бассейн: 5 х 3 м. Коммуникации: центральные (свет, газ, вода), канализация септик. Расстояние до моря: 800 м. вид разрешённого использования: ИЖС ( собственность) Достоинства объекта: Современный дизайн: лаконичные формы, панорамные окна, просторные террасы. Инфраструктура в шаговой доступности: детский сад и школа — всего в 50 метрах, продуктовые магазины в 100м Просторный и ровный участок: идеально подходит для ландшафтного дизайна, зон отдыха или бассейна. Гарантия качества: дома построены с использованием только лучших материалов и проверенных технологий. Так же в планировке применялись проверенные временем эксплуатационные решения. Престижное соседство: респектабельные и благонадежные соседи, спокойная атмосфера. Покупая этот дом вы будете уверены, что рядом уже не будут проводиться ремонтные работы, т.к. стройка всего комплекса вилл закончена. Подъезд: ровная и освещенная дорога Материалы: Дом состоит из свайно-ленточного фундамента , в монолитном каркасе, заполнение природным камнем : ракушечник. Фасад утеплённый , Испанская штукатурка. В стоимость включено доведение дома до чистовой отделки и устранение недочетов ( замена дверей , ручек на дверях, устранение недоделок по внешней стороне , приведение участка в нормальное состояние). Работы будут произведены при заключении договора купли-продажи и указания в приложении списка этих работ с актом приемки. Рассматриваются различные варианты обмена на землю. Все вопросы обсуждаются при встрече. Возможен оперативный показ. Документы РФ готовы к продаже. При звонке сообщите нам, пожалуйста, номер: Z3956 Продается дом с участком 6 соток в поселке городского типа Заозерное республики Крым.



















































































