


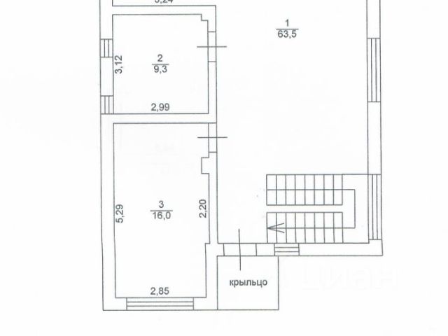
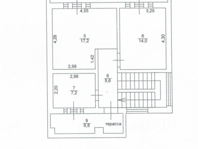
Продается минигостинница - гостевой дом в курортном поселке Заозерное. Гостевой дом находится на расстоянии 10 км от г. Евпатории и в 600 метрах от песчаного пляжа. Общая площадь 366.4 кв.м. Здание двухэтажное. В гостевом доме 14 комнат (номеров). В каждой комнате есть санузел, кондиционер. Комнаты 2-х, 3-х, 4-х-местные. У каждой комнаты отдельный вход. Все номера укомплектованы мебелью и техникой! На территории есть бассейн, беседки для отдыха, летняя кухня 38.2 кв.м. Земельный участок 15 соток. Категория земель: земли населенных пунктов. Вид разрешенного использования: для индивидуального жилищного строительства. Огорожен каменным забором и есть ворота для въезда автомобиля. Водоснабжение центральное. Газ проходит рядом, но не заведен. Территория благоустроенная, посажено много хвойных деревьев, кустарников, роз. Документы РФ. В 300 м от гостевого дома находится кафе. Рядом расположен круглосуточный продуктовый магазин и небольшой рынок, где можно приобрести свежие фрукты и овощи. В пгт. Заозерное - песчаные пляжи, широкие, покрытые мелким песком. Они имеют постепенный спуск в море, поэтому вода у берега прогревается быстро. Купить дом на улице Тенистая в поселке городского типа Заозерное.







































































