


440 724 ₽/м²
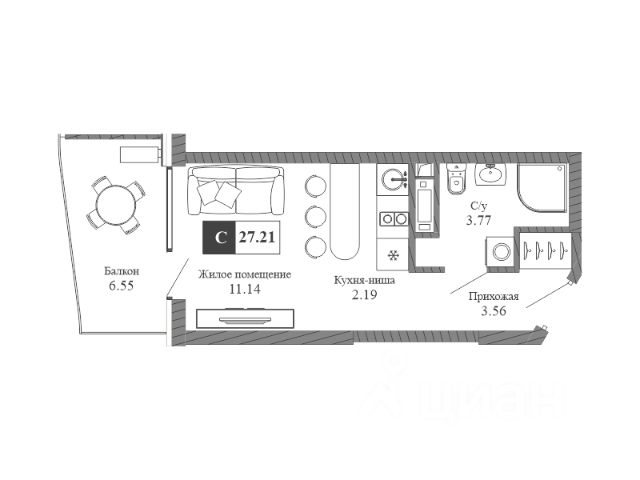
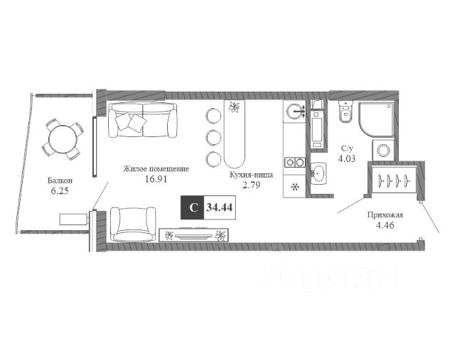
Продаются апартаменты в премиальном комплексе апартаментов "Парк Плаза" в самом сердце Алушты. Апартаменты N А-115 Видовые характеристики: горы / город Этаж: 12 Высота потолков: 3м. Описание: Резиденция Парк Плаза расположена в сердце Приморского парка в центре города Алушта, окруженная вечнозелеными реликтовыми деревьями и уникальным средиземноморским климатом. Это место, где каждый день начинается с восхитительных видов из каждого апартамента и заканчивается совершенной обстановкой, созданной внимательным персоналом. Здесь роскошь и удобство - это реальность. Обширная территория дома утопает в зелени ухоженных садов, создавая ощущение уединенности и спокойствия. Парковая зона с цветущими аллеями придает месту особый шарм и приглашает прогуляться под звездами. Весь проект создан так, чтобы стать гармоничным продолжением вашего безупречного вкуса. Погрузитесь в мир бескомпромиссной роскоши и непревзойденного обслуживания Парк Плаза. Наш сервис создан, чтобы превзойти самые изысканные ожидания, предоставляя вам опыт, который переплетает роскошь с удовлетворением каждой потребности. Варианты приобретения: — 100% оплата; — Беспроцентная рассрочка; — Ипотека от ведущих банков; Преимущества комплекса: — 150 м от моря, современная набережная Алушты; — В центре Приморского парка; — 150 метров до многофункционального спортивного комплекса; — Формат клубного дома; — Панорамные виды на побережье, горы и вечнозеленый парк. Инфраструктура: — Широкоформатные апартаменты, для тех, кто ценит простор и комфорт; — Благоустроенная видовая терраса 1090 м2 на эксплуатируемой кровле; — Лаундж зона на крыше; — Ресторан, детская игровая, тренажерный зал, химчистка; — Лобби с зоной ресепшн; — Подземный паркинг и келлеры. Собственная сервисная компания: Мы предоставляем уникальный сервис под любой из ваших запросов: - трансфер из аэропорта до жилого комплекса, - подготовка квартиры к вашему приезду, - сдача в аренду от собственной сервисной компании, - аниматоры на детский праздник, - клининг-сервис, - экскурсии и трансфер по Крыму - прокат спортивного инвентаря и яхт. Комплекс реализуется по 214-ФЗ. Для записи на просмотр звоните в отдел продаж!















































































































