


500 822 ₽/м²
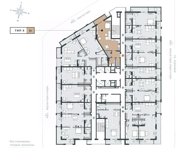
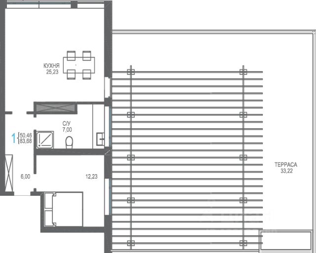
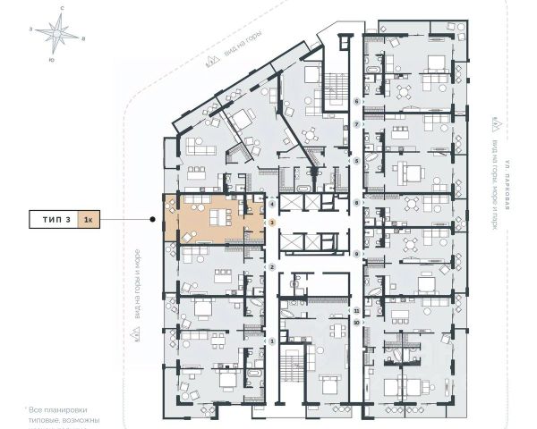
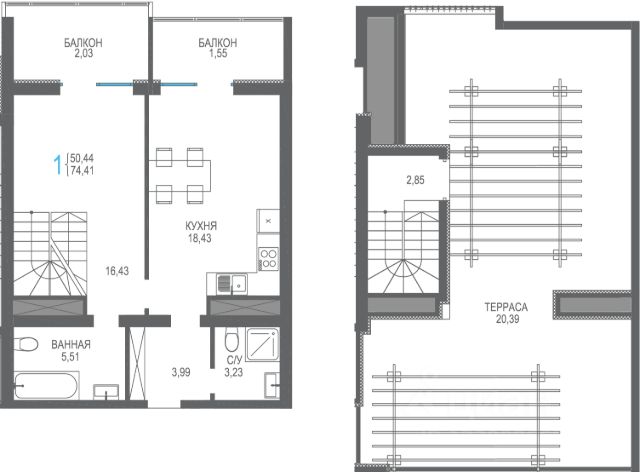
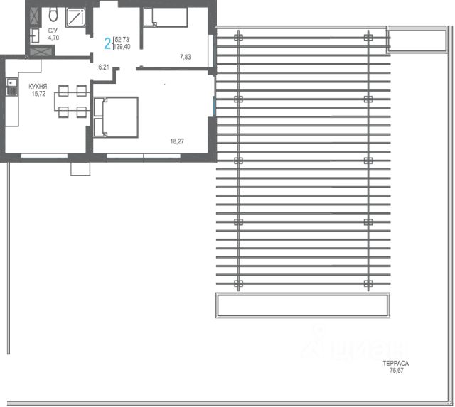
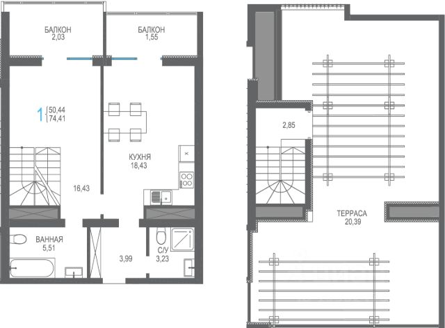
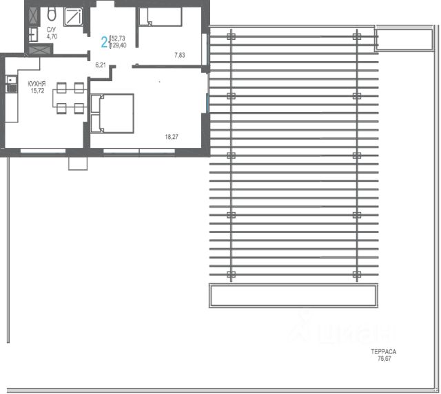
Продаются апартаменты общей площадью 79,02 м2 в премиальной южной резиденции "Park Plaza" в самом сердце Алушты. Апартаменты N А-115 Видовые характеристики: горы / город Этаж: 12 Высота потолков: 3м Преимущества комплекса: — 150 м от моря, современная набережная Алушты; — В центре Приморского парка; — 150 метров до многофункционального спортивного комплекса; — Формат клубного дома; — Панорамные виды на побережье, горы и вечнозеленый парк. Инфраструктура: — Лобби с зоной ресепшн; — Ресторан, детская игровая, тренажерный зал; — Эксклюзивная видовая терраса более 1000 м2 с лаундж-зонами; — Джакузи, беседки-иглу, зоны отдыха с камином, летний кинотеатр, оны для занятий йогой, SPA, бар; — Подземный паркинг и келлеры. Варианты приобретения: — 100% оплата; — Беспроцентная рассрочка; — Ипотека от ведущих банков; SERVISE Аll inclusive от собственной сервисной компании: трансфер до резиденции, подготовка апартаментов к вашему приезду, и сдача в аренду, аниматоры на детский праздник, клининг-сервис, экскурсии и трансфер по Крыму, прокат спортивного инвентаря и яхт. Предоставление услуг под любой из ваших запросов! Комплекс реализуется по 214-ФЗ. Для записи на просмотр звоните в отдел продаж!
































































































