











203 008 ₽/м²
Арт. 107038827 Продается уникальная квартира с видом на море, в Алупке, ул. Левитана, 9 По факту 3-х этажный дом со статусом квартира. Большая придомовая территория легко сможет разместить пару автомобилей и отдельную зону отдыха, зону барбекю. Первый этаж из бута, толстые стены - позволят вам наслаждаться прохладой летом и не мерзнуть зимой. ПЛАНИРОВКА: 1-ый этаж: прихожая - 7 м2 кухня - 7 м2 гостиная - 15.2 м2 комната - 10.8 м2 с/у совмещенный - 3 м2 (теплый пол) 2-ой этаж: комната - 14.5 м2 комната - 13 м2 комната - 25.9 м2 3-ий этаж мансарда: общая площадь - 38.6 м2 (разделена на две части) СОСТОЯНИЕ: Две комнаты готовы, остальные под отделку. В санузле установлено и подключено всё необходимое. РАСПОЛОЖЕНИЕ: Удобная локация для проживания или для сдачи в аренду. Быстрый выезд на трассу Севастополь-Ялта-Симферополь. В шаговой доступности: продуктовые магазины, рынок, школа, детский сад, пункт выдачи ВБ, аптеки, остановки общественного транспорта. До пляжа 15 минут пешего хода. Мы гарантируем: -Безопасное проведение сделки с юридически чистым объектом. -Оперативный показ в удобное время. -Быстрое оформление , один собственник, документы РФ.



264 245 ₽/м²
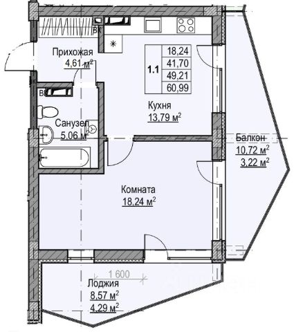
Продается однокомнатная квартира S 38,61m2 в современном ЖК Любимый. В квартире установлены межкомнатные перегородки, входная дверь, выполнена стяжка пола. Высота потолков 2,8 м. Санузел совмещен. Панорамное остекление, просторные балконы с видом на море и город. Коммуникации: электричество, вода, канализация, центральная система вентиляции и кондиционирования, интернет и цифровое телевидение, автономное электрическое отопление.Дизайн-проект квартиры в подарок. • Тип дома - сборно-монолитный• Общая площадь 38,61 м2 * Окна выход на восток• Статус квартира с правом прописки• Ипотека у банков партнеров РНКБ, Банк России, Генбанк, Промсвязьбанк• Маткапитал• Гибкая система рассрочки Агентство недвижимости "Gоldеn Grоuр" - ваш надежный партнер в поиске и покупке недвижимости. Обеспечим лучшие решения и условия по ипотеке. Не теряйте время, звоните прямо сейчас - у нас есть уникальные предложения, которые вам точно подойдут!"






















































































































































| 🔷 Средняя цена продажи: | 18,8 млн руб. |
| 🔷 Средняя цена за м2: | 320 тыс. руб./м² |
| 🔷 Минимальная стоимость: | 10,5 млн руб. |
| 🔷 Самый дорогой объект: | 30,9 млн руб. |