


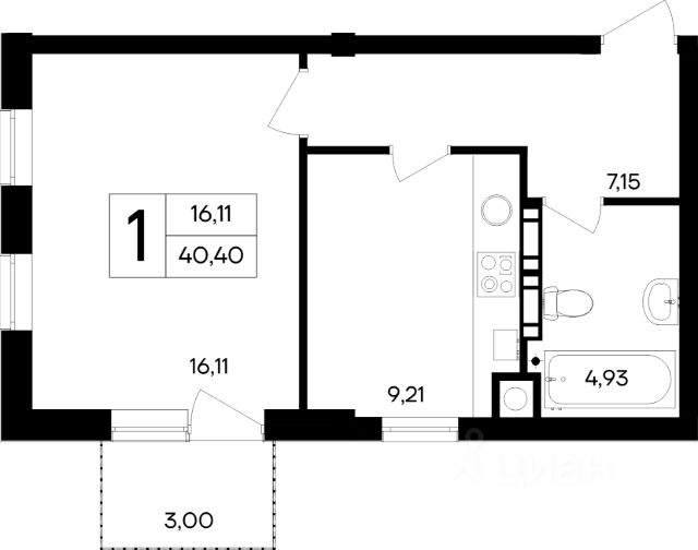
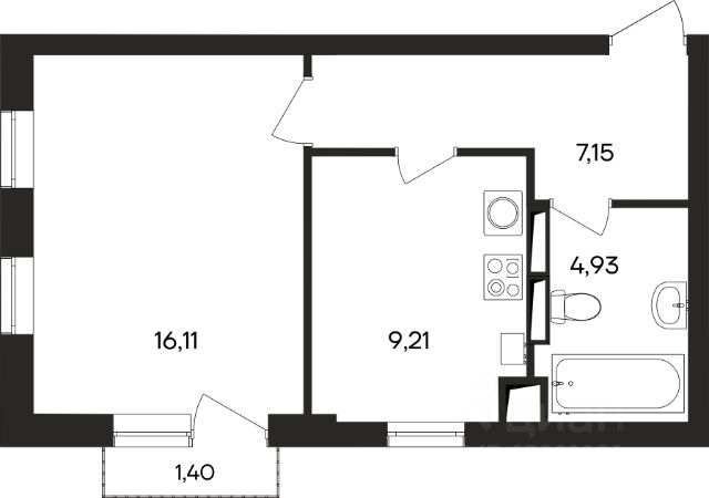
320 000 ₽/м²
Продаются апартаменты в построенном комплексе. Срок сдачи 4 квартал 2024 года. Альба Дель Маре это комплекс апартаментов бизнес-класса с развитой инфраструктурой. Уютные здания переменной этажности строятся в 5 минутах ходьбы (385 метров) от одного из лучших пляжей Евпатории "Супер Аква Бич". Широкая береговая линия, места для активного отдыха и зоны релакса позволят насладиться отдыхом на любой вкус. Архитектурное решение комплекса создает истинное ощущение Средиземноморья и присутствия на дорогом курорте: скатные черепичные крыши, козырьки и навесы-перголы, арочные завершения проемов, цветовая палитра отделки и фасадов, где используются оттенки желтого, охры, терракоты и бежевого. Переменная этажность здания формирует камерность проекта, создавая прекрасные видовые характеристики для каждого апартамента. Просторные террасы с видом на море, патио с собственным выходом к бассейну на первых этажах комплекса, детская и спортивная площадки, ландшафтный дизайн здесь все создано для роскошного отдыха и расслабления. Территория комплекса апартаментов закрыта и находится под круглосуточным видеонаблюдением, что позволит резидентам и гостям чувствовать безопасность проживания. Концепция комплекса: комфорт проживания с первых дней заселения. Реализация апартаментов осуществляется с полной отделкой под ключ. Собственники апартаментов имеют возможность поручить управление недвижимостью профессиональному оператору, что позволит получать стабильный доход. Автономная газовая котельная позволит не зависеть от внешних отключений отопления., парковочные места на закрытой территории комплекса обеспечат безопасность вашему автомобилю, система центрального кондиционирования создаст комфортную температуру в каждом номере. Жилой комплекс реализуется в соответствии с 214 ФЗ.

























































































































