128 130 ₽/м²
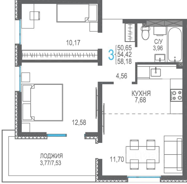
Продам просторную трехкомнатную квартира в поселке городского типа Новофёдоровка, Сакский район. Планировка включает три изолированные комнаты, две из которых полностью отремонтированы и готовы к проживанию, третья требует финишной отделки, предоставляя новому владельцу возможность адаптировать пространство под индивидуальные предпочтения. Кухня большой площади функционально организована. Санузел раздельный (выполнен качественный ремонт), установлен двухконтурный газовый котел, обеспечивающий полностью автономное отопление и бесперебойное снабжение горячей водой, что гарантирует независимость и экономичность в эксплуатации. В квартире два балкона, один из которых остеклен. Основным преимуществом является расположение объекта: до центральной набережной и моря можно дойти неспешным шагом за десять минут. В непосредственной близости от дома обустроена детская площадка, сквер, продуктовые магазины, супермаркеты, кафе и столовые. В пешей доступности находятся общеобразовательная школа и детский сад. Развитая транспортная сеть с регулярным сообщением связывает поселок с городом Саки, расстояние до которого составляет пять километров, а также с другими ключевыми точками Крыма. Данный объект представляет собой рациональный выбор для ценителей комфорта и самостоятельности, идеально подходя как для сезонного отдыха у моря, так и для постоянного проживания в благоприятной экологической обстановке. Наша комиссия 79000 р.+1% от стоимости объекта, но не менее 70000 р. МЫ ГАРАНТИРУЕМ ФИНАНСОВУЮ БЕЗОПАСНОСТЬ ДЛЯ НАШИХ КЛИЕНТОВ. Полное юридическое сопровождение сделки. Высокий шанс одобрения ипотеки. Звоните, с удовольствием ответим на ваши вопросы! Код пользователя: 89782 Номер в базе: 5761410













































































