Видовой просторный апартамент резиденция премиум-класса.
Панорамный вид на море, горы и заповедник.
Предчистовая отделка, панорамное остекление.
Выход на просторную террасу из каждой комнаты.
1-ая башня, самая ближняя к морю, единственный такой лот!
Есть машино-место в паркинге!
Резиденция премиум-класса это респектабельный проект апартаментов, для тех, кто любит роскошь, удобство, безопасность и эстетику.
Уникальность
Современный премиальный комплекс апартаментов окружен многовековым вечнозеленым хвойным лесом, а горный ландшафт позволяет любоваться морской панорамой из любой точки комплекса. Продуманная полноценная инфраструктура внутри комплекса создает комфортные высококлассные условия для жизни и отдыха на его территории, а ионизированный горно-морской воздух, мягкий климат и шикарные виды делают жизнь гостей и постояльцев на порядок комфортнее, качественнее и здоровее.
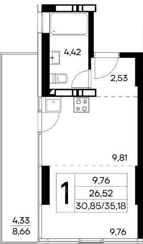
Описание и планировка
Просторный видовой апартамент общей площадью 67,09 кв.м., расположен на 8-ом этаже 11-этажного дома, с которого открывается шикарный панорамный вид на море, горы и заповедник, с предчистовой отделкой и панорамным остеклением, благодаря чему всё пространство будет светлым. Апартамент идеально подходит для отдыха или постоянного проживания, а также сдачи в аренду. Высокие потолки дают возможность почувствовать простор.
Авторское планировочное решение, грамотно продуманно и максимально функционально, площадь позволяет сделать 2 комнаты, 1 спальню, 1 санузел, 1 просторную террасу с 3 индивидуальными выходами из каждой комнаты, всё это позволяет создать апартамент вашей мечты.
Расположение
Комплекс апартаментов находится в одном из самых живописных и экологически чистых мест Крыма, на территории исторического района Профессорского уголка — крупнейшего горного заповедника на территории полуострова. Всего в 15-ти минутах ходьбы расположились благоустроенные пляжи города Алушты и широкая многокилометровая набережная для ваших спокойных прогулок + трансфер на пляж. Доступность курортной инфраструктуры круглый год то, что делает жизнь ещё прекраснее.
Инфраструктура дома
Добро пожаловать в уникальный дом премиум класса на берегу моря, где роскошь и природная красота сочетаются в идеальном гармоничном тандеме:
+ Кафе
+ Ресепшен с лобби-баром
+ Открытый подогреваемый бассейн с лаундж-зоной
+ SPA
+ Тренажерный зал
+ Летний кинотеатр
+ Детская комната творчества
+ Дизайнерское лобби с зонами отдыха
+ Детские площадки
+ Прогулочные аллеи с фонтаном
+ Прачечная и камера хранения
+ Охрана 24/7
+ Консьерж сервис
+ 234 апартамента
+ 78 парковочных мест
+ 26 кладовых помещений
+ 2 лифта, 1 грузопассажирский
+ Подземный паркинг
+ Автономное газовое отопление
+ Трансфер на пляж
Отделка
В апартаментах уже выполнена предчистовая отделка, а именно:
~ стяжка на полу;
~ выполнены перегородки;
~ установлены конвекторы;
~ сделана разводка отопления от автономной газовой котельной.
Вы хотите иметь апартамент в резиденции, для премиального образа жизни?)
Звоните!