


220 874 ₽/м²
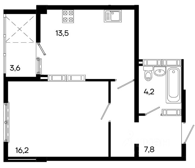
Продается 1-комн. квартира от застройщика с предчистовой отделкой в ЖМ "Город Мира" на 11 этаже. Общая площадь: 41.2 кв.м. Высота потолков 2.7 м. Жилой комплекс "Город Мира" комфорт и гармония в современном формате. "Город Мира" это масштабный жилой комплекс, созданный для тех, кто ценит комфорт, безопасность и гармонию с природой. Здесь продумана каждая деталь от удобной инфраструктуры до эргономичных планировок квартир. В 2024 году микрорайон "Город Мира" победил в номинации "Лучший экологический проект года в сфере строительства" по версии премии Crimea Urban Awards. Ключевые преимущества комплекса: - удачное расположение зеленый район с благоприятным микроклиматом - продуманное зонирование жилые кварталы, зоны отдыха и коммерческие объекты - комфорт-класс высокое качество строительства и современные инженерные решения Инфраструктура "Города Мира": Образование и досуг: - 2 детских сада (по 260 мест каждый) - планируется строительство общеобразовательной школы - детские и спортивные площадки в каждом дворе - беседки для отдыха, зоны для выгула собак Ритейл и сервис: - магазины, аптеки, медицинские центры - фитнес-клубы, салоны красоты - детские развивающие центры Парковки: - гостевые парковки - наземные и подземные паркинги Квартиры с продуманным комфортом: - просторные планировки с кладовыми и колясочными - лоджии с остеклением - автономное отопление (по 23 дому: индивидуальное отопление) - выполнена стяжка пола (по 3, 4, 20, 21, 22 домам: выполненная стяжка пола и штукатурка стен) - Консьерж-сервис для дополнительного удобства Благоустройство территории: - ландшафтный дизайн с зонами отдыха - современные детские площадки - стильные холлы с дизайнерской отделкой - система видеонаблюдения для безопасности "Город Мира" это место, где созданы все условия для комфортной жизни. Выбирайте качество и продуманность в каждой детали! Квартира находится в корпусе 3_23. Дом монолитный, одноподъездный, высотой 16 этажей. В подъезде 1 пассажирский и 1 грузовой лифт. На сегодняшний день строительство окончено, дом сдан в 1 квартале 2026 года. Оформление сделки по договору купли-продажи.










































































