


203 000 ₽/м²
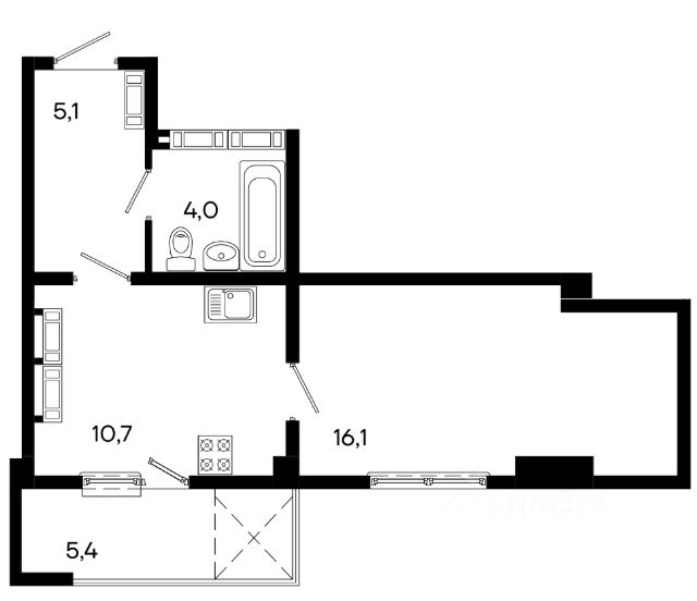
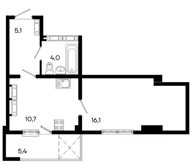
Продаётся студия в строящемся доме (Дом 1), срок сдачи: II-кв. 2026, общей площадью 41.3 кв.м., на 14 этаже. ЖК Поэма - это территория вдохновения и творческих идей Здесь Вы ощутите внутреннюю свободу, простор для новых планов и реализации возможностей, став автором своей собственной поэмы. Объект комфорт-класса великолепно расположен в центре Симферополя на улице Трубаченко. Два монолитно-каркасных дома возводятся в сдержанном, изысканном стиле, сочетая в себе эстетику и надёжность. Большие площади остекления подчёркивают современную архитектуру здания. Собственная крышная котельная и актуальные технические решения обеспечат будущим собственникам исключительный комфорт. Территория дома благоустроена по самым актуальным стандартам: закрытый двор видеодомофоны с функцией распознавания лиц помещение для размещения консьерж-сервиса, который позаботится о комфорте, безопасности проживающих, уюте и чистоте ландшафтное озеленение с редкими видами растений и системой автополива детская площадка с инновационным оборудованием современный воркаут и зона для занятий йогой lounge - зона с гамаками холлы с ремонтом по индивидуальному дизайнерскому проекту места для стоянки велосипедов и колясок (во дворе) система видеонаблюдения выделенная зона для парковки транспортных средств площадью более 2200 кв. м. с возможностью выезда на ул. Трубаченко и ул. Крымских Партизан. В жилом комплексе Поэма Вы сможете наслаждаться потрясающими видами на город, живописными рассветами и незабываемыми закатами прямо из окна своей квартиры. Локация объекта привлекает также и развитой инфраструктурой. Это район с транспортной доступностью по всем направлениям. Поблизости расположены супермаркеты, торговые центры, банки, детские сады и школы, спортивный клуб, аптеки, химчистка, кафе и рестораны. В нескольких минутах ходьбы парк им. Шевченко - один из старейших в Симферополе. Это любимое место отдыха для многих поколений, где приятно проводить время в гармонии с природой. Жилой комплекс Поэма - свободный ритм, достижимая высота.
















































































