











177 000 ₽/м²
При звонке назовите, пожалуйста, объекта 541024 БЕЗ КОМИССИИ ДЛЯ ПОКУПАТЕЛЯ! Преимущества: Развитая инфраструктура в центральном районе города. Панорамные виды на озеро, город и парк. Закрытая охраняемая территория. Система умный дом. Стилобат с коммерцией. 150 м до живописного озера Образ клубного дома в сердце крымской столицы вдохновлен творчеством гениального основоположника импрессионизма, живописца Клода Моне. Будучи необычайно талантливым художником, он работал в особом стиле, главная цель которого передать впечатление, характер, атмосферу. Локация клубного дома удивительна. Рядом находится живописное озеро. Прогулки здесь позволят резидентам насладиться красотой природы, расслабиться, вдохновиться прекрасными пейзажами, словно сошедшими с картин Клода Моне. Клубный дом отличается многофункциональностью, стильным архитектурным обликом. Он станет архитектурной доминантой города и его украшением. Объект имеет великолепное расположение это центральная часть столицы Крыма, где есть абсолютно вся инфраструктура. Монолитно-каркасный 16-этажный дом выполнен в современном стиле. Фасад из керамогранита светлых тонов с витражными системами остекления подчеркивает непринуждённый и гармоничный внешний вид здания. В клубном доме комфорт-класса представлены наиболее востребованные планировки квартир: компактные студии от 34,9 кв. м; универсальные однокомнатные от 38,9 кв. м; удобные двухкомнатные от 64,6 кв. м; просторные трёхкомнатные 87,7 кв. м. Из окон откроются панорамные виды на городские пейзажи, парковую зону, озеро. Дом отделен от окружающей застройки стилобатной частью, что вместе с небольшим количеством квартир и локацией у озера, создает особенную атмосферу и обеспечивает оазис спокойствия загородного дома в самой центральной части города. Закрытая территория, охраняемый паркинг, в котором жильцы могут приобрести машиноместо для своего автомобиля, места для мототранспорта, велосипедов и самокатов. Современная спортивная площадка, яркая детская игровая зона. Дизайнерские холлы, система умный дом. Уютный, благоустроенный двор, ландшафтное озеленение территории. На первом этаже предусмотрены встроенные коммерческие помещения. В шаговой доступности находится всё необходимое для комфортной жизни: остановки общественного транспорта и отделения банков; два торговых центра, супермаркеты, магазины, кафе, и кинотеатр; фермерские лавки; детские сады и школы; аптеки и медицинский центр; спортивная школа; досуговый клуб; конный клуб; парк имени Тренева. Объект расположен в центральном районе города с великолепной транспортной развязкой. От клубного дома удобно добираться как в центральную часть, так и на выезд из города. Клубный дом сочетает в себе современное жилье и полный спектр инфраструктуры для жизни, отдыха и вдохновения. * актуальную стоимость и наличие конкретного объекта уточняйте по телефону. Номер объекта: #1/541024/17283



182 400 ₽/м²
При звонке назовите, пожалуйста, объекта 540918 Объект комфорт-класса расположен в центре Симферополя на улице Трубаченко. Два монолитно-каркасных дома возводятся в сдержанном, изысканном стиле, сочетая в себе эстетику и надёжность. Большие площади остекления подчёркивают современную архитектуру здания. Собственная крышная котельная и актуальные технические решения обеспечат будущим собственникам исключительный комфорт. Территория дома благоустроена по самым актуальным стандартам: закрытый двор, видеодомофоны с функцией распознавания лиц, помещение для размещения консьерж-сервиса, который позаботится о комфорте, безопасности проживающих, уюте и чистоте. Ландшафтное озеленение с редкими видами растений и системой автополива. Детская площадка с инновационным оборудованием и современный воркаут, зона для занятий йогой, lounge - зона с гамаками. Холлы с ремонтом по индивидуальному дизайнерскому проекту. Места для стоянки велосипедов и колясок во дворе. Система видеонаблюдения. Выделенная зона для парковки транспортных средств площадью более 2200 кв.м. с возможностью выезда на ул. Трубаченко и ул. Крымских Партизан. В жилом комплексе представлены разнообразные планировочные решения: компактные студии, популярные однокомнатные квартиры, а также двух- и трёхкомнатные варианты. Квартиры спланированы так, что каждый квадратный метр в них несёт функциональную нагрузку. Правильная геометрия комнат и пропорциональность позволят использовать пространство с максимальной пользой. В жилом комплексе можно наслаждаться потрясающими видами на город, живописными рассветами и незабываемыми закатами прямо из окна своей квартиры. Локация объекта привлекает также и развитой инфраструктурой. Это район с транспортной доступностью по всем направлениям. Поблизости расположены супермаркеты, торговые центры, банки, детские сады и школы, спортивный клуб, аптеки, химчистка, кафе и рестораны. В нескольких минутах ходьбы парк им. Шевченко один из старейших в Симферополе. Это любимое место отдыха для многих поколений, где приятно проводить время в гармонии с природой. Без комиссии для покупателя! Номер объекта: #1/540918/17283









170 050 ₽/м²
ЖК "Территория Вдохновения": Ваш дом в центре жизни Симферополя! Без процента для покупателя!!! Откройте для себя новый стандарт комфорта в самом сердце Симферополя. Жилой комплекс на ул. Трубаченко, 21 — это гармония современной архитектуры, продуманного благоустройства и выгодной локации. Безопасность и уют за закрытыми дверями: Ваше спокойствие — наш приоритет. Закрытая территория, круглосуточное видеонаблюдение, консьерж-сервис и умные видеодомофоны создают надежную защиту для вас и вашей семьи. Пространство для жизни и отдыха: Мы создали двор мечты. Здесь вас ждут: Ухоженная зеленая территория с редкими растениями. Инновационная детская площадка и современный воркаут. Уютные зоны для релаксации: йога, гамаки и lounge. Просторная парковка и удобные места для хранения. Выгоды каждый день: В центре событий: Вся инфраструктура города — в шаговой доступности. Парки, кафе, супермаркеты, школы и банки прямо рядом с домом. Вид из окна: Наслаждайтесь панорамами города, яркими рассветами и живописными закатами. Готовые решения: Квартиры с отделкой White Box предоставляют свободу для воплощения ваших дизайнерских идей без лишних хлопот. Это больше чем дом. Это ваша территория вдохновения. Полное юридическое сопровождение, оформление всех видов ипотек, в том числе и Семейная ипотека, рассрочка и т.д. Звоните! отвечу на все интересующие вас вопросы. Номер объекта: #1/542121/17283






187 400 ₽/м²
Продаётся студия в строящемся доме (Дом 2), срок сдачи: II-кв. 2026, общей площадью 41.4 кв.м., на 10 этаже. Жилой комплекс бизнес-класса "Поэма" от застройщика "ИнтерСтрой" в городе Ялта на улице Трубаченко












190 000 ₽/м²
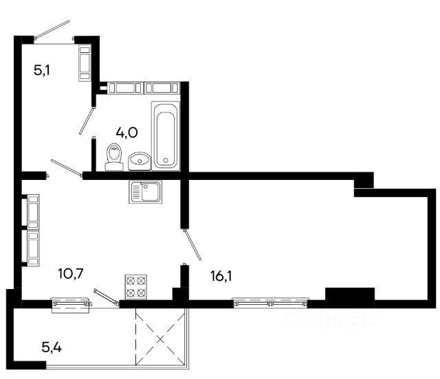
Продаётся студия в строящемся доме (Корпус 1), срок сдачи: III-кв. 2026, общей площадью 34.9 кв.м., на 14 этаже. Клубный дом "Моне" от группы компаний "ИнтерСтрой" Образ клубного дома "Моне" в сердце крымской столицы вдохновлен творчеством гениального основоположника импрессионизма, живописца Клода Моне. Будучи необычайно талантливым художником, он работал в особом стиле, главная цель которого передать впечатление, характер, атмосферу... Локация клубного дома "Моне" - удивительна. Рядом находится живописное озеро. Прогулки здесь позволят резидентам насладиться красотой природы, расслабиться, вдохновиться прекрасными пейзажами, словно сошедшими с картин Клода Моне. Клубный дом "Моне" отличается многофункциональностью, стильным архитектурным обликом. Он станет архитектурной доминантой города и его украшением. Объект имеет великолепное расположение - это центральная часть столицы Крыма, где есть абсолютно вся инфраструктура. Монолитно-каркасный 16-этажный дом выполнен в современном стиле. Фасад из керамогранита светлых тонов с витражными системами остекления подчеркивает непринуждённый и гармоничный внешний вид здания. В клубном доме комфорт-класса представлены наиболее востребованные планировки квартир: - компактные студии от 34,9 м - универсальные однокомнатные от 38,9 м - удобные двухкомнатные от 64,6 м - просторные трёхкомнатные - 87,7 м Из окон откроются панорамные виды на городские пейзажи, парковую зону, озеро. Дом отделен от окружающей застройки стилобатной частью, что вместе с небольшим количеством квартир и локацией у озера, создает особенную атмосферу и обеспечивает оазис спокойствия загородного дома в самой центральной части города... - закрытая территория - приватность, безопасность и Ваш комфорт - охраняемый паркинг, в котором жильцы могут приобрести машиноместо для своего автомобиля - места для мототранспорта, велосипедов и самокатов - современная спортивная площадка - яркая детская игровая зона - дизайнерские холлы - система умный дом - уютный, благоустроенный двор - ландшафтное озеленение территории На первом этаже предусмотрены встроенные коммерческие помещения. В шаговой доступности находится всё необходимое для комфортной жизни: - остановки общественного транспорта и отделения банков - два торговых центра, супермаркеты, магазины, кафе, и кинотеатр - фермерские лавки - детские сады и школы - аптеки и медицинский центр - спортивная школа - досуговый клуб - конный клуб - парк имени Тренева Объект расположен в центральном районе города с великолепной транспортной развязкой. От клубного дома "Моне" удобно добираться как в центральную часть, так и на выезд из города.






187 400 ₽/м²
Продаётся студия в строящемся доме (Дом 1), срок сдачи: II-кв. 2026, общей площадью 34.8 кв.м., на 11 этаже. Жилой комплекс бизнес-класса "Поэма" от застройщика "ИнтерСтрой" в городе Ялта на улице Трубаченко






192 150 ₽/м²
Продаётся 1-комнатная квартира в строящемся доме (Дом 1), срок сдачи: II-кв. 2026, общей площадью 41.7 кв.м., на 11 этаже. Жилой комплекс бизнес-класса "Поэма" от застройщика "ИнтерСтрой" в городе Ялта на улице Трубаченко












187 400 ₽/м²
Продаётся студия в строящемся доме (Дом 2), срок сдачи: II-кв. 2026, общей площадью 35.1 кв.м., на 13 этаже. Жилой комплекс бизнес-класса "Поэма" от застройщика "ИнтерСтрой" в городе Ялта на улице Трубаченко












187 400 ₽/м²
Продаётся студия в строящемся доме (Дом 2), срок сдачи: II-кв. 2026, общей площадью 35.1 кв.м., на 10 этаже. Жилой комплекс бизнес-класса "Поэма" от застройщика "ИнтерСтрой" в городе Ялта на улице Трубаченко












187 400 ₽/м²
Продаётся студия в строящемся доме (Дом 1), срок сдачи: II-кв. 2026, общей площадью 34.8 кв.м., на 11 этаже. Жилой комплекс бизнес-класса "Поэма" от застройщика "ИнтерСтрой" в городе Ялта на улице Трубаченко






190 000 ₽/м²
Продаётся студия в строящемся доме (Корпус 1), срок сдачи: III-кв. 2026, общей площадью 34.9 кв.м., на 15 этаже. Клубный дом "Моне" от группы компаний "ИнтерСтрой" Образ клубного дома "Моне" в сердце крымской столицы вдохновлен творчеством гениального основоположника импрессионизма, живописца Клода Моне. Будучи необычайно талантливым художником, он работал в особом стиле, главная цель которого передать впечатление, характер, атмосферу... Локация клубного дома "Моне" - удивительна. Рядом находится живописное озеро. Прогулки здесь позволят резидентам насладиться красотой природы, расслабиться, вдохновиться прекрасными пейзажами, словно сошедшими с картин Клода Моне. Клубный дом "Моне" отличается многофункциональностью, стильным архитектурным обликом. Он станет архитектурной доминантой города и его украшением. Объект имеет великолепное расположение - это центральная часть столицы Крыма, где есть абсолютно вся инфраструктура. Монолитно-каркасный 16-этажный дом выполнен в современном стиле. Фасад из керамогранита светлых тонов с витражными системами остекления подчеркивает непринуждённый и гармоничный внешний вид здания. В клубном доме комфорт-класса представлены наиболее востребованные планировки квартир: - компактные студии от 34,9 м - универсальные однокомнатные от 38,9 м - удобные двухкомнатные от 64,6 м - просторные трёхкомнатные - 87,7 м Из окон откроются панорамные виды на городские пейзажи, парковую зону, озеро. Дом отделен от окружающей застройки стилобатной частью, что вместе с небольшим количеством квартир и локацией у озера, создает особенную атмосферу и обеспечивает оазис спокойствия загородного дома в самой центральной части города... - закрытая территория - приватность, безопасность и Ваш комфорт - охраняемый паркинг, в котором жильцы могут приобрести машиноместо для своего автомобиля - места для мототранспорта, велосипедов и самокатов - современная спортивная площадка - яркая детская игровая зона - дизайнерские холлы - система умный дом - уютный, благоустроенный двор - ландшафтное озеленение территории На первом этаже предусмотрены встроенные коммерческие помещения. В шаговой доступности находится всё необходимое для комфортной жизни: - остановки общественного транспорта и отделения банков - два торговых центра, супермаркеты, магазины, кафе, и кинотеатр - фермерские лавки - детские сады и школы - аптеки и медицинский центр - спортивная школа - досуговый клуб - конный клуб - парк имени Тренева Объект расположен в центральном районе города с великолепной транспортной развязкой. От клубного дома "Моне" удобно добираться как в центральную часть, так и на выезд из города.


















187 400 ₽/м²
Продаётся студия в строящемся доме (Дом 2), срок сдачи: II-кв. 2026, общей площадью 35.1 кв.м., на 10 этаже. Жилой комплекс бизнес-класса "Поэма" от застройщика "ИнтерСтрой" в городе Ялта на улице Трубаченко












192 150 ₽/м²
Продаётся студия в строящемся доме (Дом 2), срок сдачи: II-кв. 2026, общей площадью 41.6 кв.м., на 14 этаже. Жилой комплекс бизнес-класса "Поэма" от застройщика "ИнтерСтрой" в городе Ялта на улице Трубаченко






187 400 ₽/м²
Продаётся студия в строящемся доме (Дом 1), срок сдачи: II-кв. 2026, общей площадью 34.8 кв.м., на 12 этаже. Жилой комплекс бизнес-класса "Поэма" от застройщика "ИнтерСтрой" в городе Ялта на улице Трубаченко






187 400 ₽/м²
Продаётся студия в строящемся доме (Дом 2), срок сдачи: II-кв. 2026, общей площадью 35.1 кв.м., на 11 этаже. Жилой комплекс бизнес-класса "Поэма" от застройщика "ИнтерСтрой" в городе Ялта на улице Трубаченко






190 000 ₽/м²
Продаётся студия в строящемся доме (Корпус 1), срок сдачи: III-кв. 2026, общей площадью 34.9 кв.м., на 14 этаже. Клубный дом "Моне" от группы компаний "ИнтерСтрой" Образ клубного дома "Моне" в сердце крымской столицы вдохновлен творчеством гениального основоположника импрессионизма, живописца Клода Моне. Будучи необычайно талантливым художником, он работал в особом стиле, главная цель которого передать впечатление, характер, атмосферу... Локация клубного дома "Моне" - удивительна. Рядом находится живописное озеро. Прогулки здесь позволят резидентам насладиться красотой природы, расслабиться, вдохновиться прекрасными пейзажами, словно сошедшими с картин Клода Моне. Клубный дом "Моне" отличается многофункциональностью, стильным архитектурным обликом. Он станет архитектурной доминантой города и его украшением. Объект имеет великолепное расположение - это центральная часть столицы Крыма, где есть абсолютно вся инфраструктура. Монолитно-каркасный 16-этажный дом выполнен в современном стиле. Фасад из керамогранита светлых тонов с витражными системами остекления подчеркивает непринуждённый и гармоничный внешний вид здания. В клубном доме комфорт-класса представлены наиболее востребованные планировки квартир: - компактные студии от 34,9 м - универсальные однокомнатные от 38,9 м - удобные двухкомнатные от 64,6 м - просторные трёхкомнатные - 87,7 м Из окон откроются панорамные виды на городские пейзажи, парковую зону, озеро. Дом отделен от окружающей застройки стилобатной частью, что вместе с небольшим количеством квартир и локацией у озера, создает особенную атмосферу и обеспечивает оазис спокойствия загородного дома в самой центральной части города... - закрытая территория - приватность, безопасность и Ваш комфорт - охраняемый паркинг, в котором жильцы могут приобрести машиноместо для своего автомобиля - места для мототранспорта, велосипедов и самокатов - современная спортивная площадка - яркая детская игровая зона - дизайнерские холлы - система умный дом - уютный, благоустроенный двор - ландшафтное озеленение территории На первом этаже предусмотрены встроенные коммерческие помещения. В шаговой доступности находится всё необходимое для комфортной жизни: - остановки общественного транспорта и отделения банков - два торговых центра, супермаркеты, магазины, кафе, и кинотеатр - фермерские лавки - детские сады и школы - аптеки и медицинский центр - спортивная школа - досуговый клуб - конный клуб - парк имени Тренева Объект расположен в центральном районе города с великолепной транспортной развязкой. От клубного дома "Моне" удобно добираться как в центральную часть, так и на выезд из города.






187 400 ₽/м²
Продаётся студия в строящемся доме (Дом 1), срок сдачи: II-кв. 2026, общей площадью 34.8 кв.м., на 12 этаже. Жилой комплекс бизнес-класса "Поэма" от застройщика "ИнтерСтрой" в городе Ялта на улице Трубаченко












190 000 ₽/м²
Продаётся студия в строящемся доме (Корпус 1), срок сдачи: III-кв. 2026, общей площадью 34.9 кв.м., на 13 этаже. Клубный дом "Моне" от группы компаний "ИнтерСтрой" Образ клубного дома "Моне" в сердце крымской столицы вдохновлен творчеством гениального основоположника импрессионизма, живописца Клода Моне. Будучи необычайно талантливым художником, он работал в особом стиле, главная цель которого передать впечатление, характер, атмосферу... Локация клубного дома "Моне" - удивительна. Рядом находится живописное озеро. Прогулки здесь позволят резидентам насладиться красотой природы, расслабиться, вдохновиться прекрасными пейзажами, словно сошедшими с картин Клода Моне. Клубный дом "Моне" отличается многофункциональностью, стильным архитектурным обликом. Он станет архитектурной доминантой города и его украшением. Объект имеет великолепное расположение - это центральная часть столицы Крыма, где есть абсолютно вся инфраструктура. Монолитно-каркасный 16-этажный дом выполнен в современном стиле. Фасад из керамогранита светлых тонов с витражными системами остекления подчеркивает непринуждённый и гармоничный внешний вид здания. В клубном доме комфорт-класса представлены наиболее востребованные планировки квартир: - компактные студии от 34,9 м - универсальные однокомнатные от 38,9 м - удобные двухкомнатные от 64,6 м - просторные трёхкомнатные - 87,7 м Из окон откроются панорамные виды на городские пейзажи, парковую зону, озеро. Дом отделен от окружающей застройки стилобатной частью, что вместе с небольшим количеством квартир и локацией у озера, создает особенную атмосферу и обеспечивает оазис спокойствия загородного дома в самой центральной части города... - закрытая территория - приватность, безопасность и Ваш комфорт - охраняемый паркинг, в котором жильцы могут приобрести машиноместо для своего автомобиля - места для мототранспорта, велосипедов и самокатов - современная спортивная площадка - яркая детская игровая зона - дизайнерские холлы - система умный дом - уютный, благоустроенный двор - ландшафтное озеленение территории На первом этаже предусмотрены встроенные коммерческие помещения. В шаговой доступности находится всё необходимое для комфортной жизни: - остановки общественного транспорта и отделения банков - два торговых центра, супермаркеты, магазины, кафе, и кинотеатр - фермерские лавки - детские сады и школы - аптеки и медицинский центр - спортивная школа - досуговый клуб - конный клуб - парк имени Тренева Объект расположен в центральном районе города с великолепной транспортной развязкой. От клубного дома "Моне" удобно добираться как в центральную часть, так и на выезд из города.
| 🔷 Средняя цена продажи: | 6,6 млн руб. |
| 🔷 Средняя цена за м2: | 187,4 тыс. руб./м² |
| 🔷 Минимальная стоимость: | 6,2 млн руб. |
| 🔷 Самый дорогой объект: | 8,3 млн руб. |