Первичная продажа



С отделкой
сдача ГК: 2 кв. 2026 года
8 444 800 ₽
203 000 ₽/м²
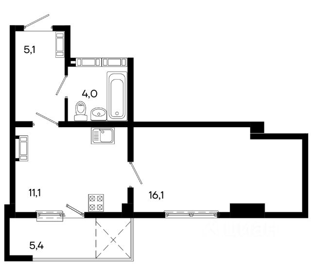
Продаётся студия в строящемся доме (Дом 1), срок сдачи: II-кв. 2026, общей площадью 41.3 кв.м., на 15 этаже. ЖК Поэма - это территория вдохновения и творческих идей
Здесь Вы ощутите внутреннюю свободу, простор для новых планов и реализации возможностей, став автором своей собственной поэмы.
Объект комфорт-класса великолепно расположен в центре Симферополя на улице Трубаченко. Два монолитно-каркасных дома возводятся в сдержанном, изысканном стиле, сочетая в себе эстетику и надёжность.
Большие площади остекления подчёркивают современную архитектуру здания. Собственная крышная котельная и актуальные технические решения обеспечат будущим собственникам исключительный комфорт.
Территория дома благоустроена по самым актуальным стандартам:
закрытый двор
видеодомофоны с функцией распознавания лиц
помещение для размещения консьерж-сервиса, который позаботится о комфорте, безопасности проживающих, уюте и чистоте
ландшафтное озеленение с редкими видами растений и системой автополива
детская площадка с инновационным оборудованием
современный воркаут и зона для занятий йогой
lounge - зона с гамаками
холлы с ремонтом по индивидуальному дизайнерскому проекту
места для стоянки велосипедов и колясок (во дворе)
система видеонаблюдения
выделенная зона для парковки транспортных средств площадью более 2200 кв. м. с возможностью выезда на ул. Трубаченко и ул. Крымских Партизан.
В жилом комплексе Поэма Вы сможете наслаждаться потрясающими видами на город, живописными рассветами и незабываемыми закатами прямо из окна своей квартиры.
Локация объекта привлекает также и развитой инфраструктурой. Это район с транспортной доступностью по всем направлениям. Поблизости расположены супермаркеты, торговые центры, банки, детские сады и школы, спортивный клуб, аптеки, химчистка, кафе и рестораны.
В нескольких минутах ходьбы парк им. Шевченко - один из старейших в Симферополе. Это любимое место отдыха для многих поколений, где приятно проводить время в гармонии с природой.
Жилой комплекс Поэма - свободный ритм, достижимая высота. Продам квартиру-студию в центре в Симферополе.












































































































