


220 000 ₽/м²
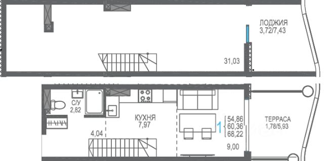
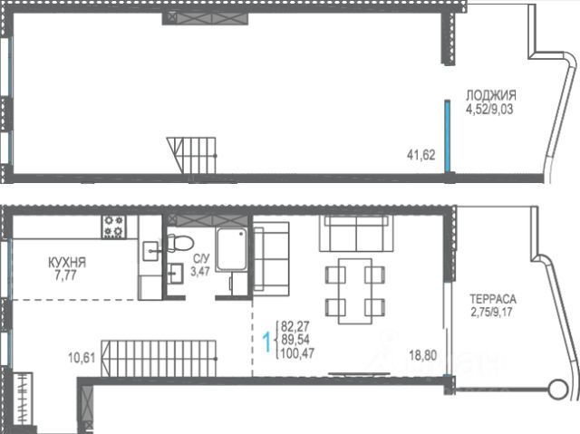
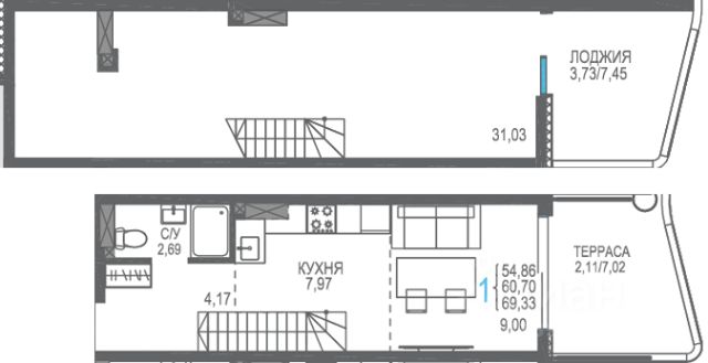
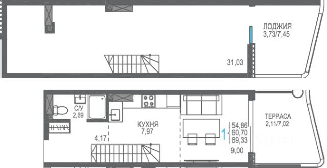
Продаётся студия-апартаменты в сданном доме (Набережная, 64), срок сдачи: IV-кв. 2024, общей площадью 53.35 кв.м., на 7 этаже. Комплекс апартаментов "Ола-апарт" расположен на западном побережье Крыма между городами Саки и Евпатория и входит в состав курортного комплекса Прибрежный. Экологически чистое место находится на косе между Чёрным морем и розовым озером Сасык-Сиваш в непосредственной близости к Сакским лечебным грязевым лиманам. Проект Прибрежный включает в себя современные квартиры в ЖК Розовое озеро и комплекс апартаментов Ола-апарт с полным спектром курортной инфраструктуры. Сервисный апарт-отель Ола-апарт включает в себя следующий перечень инфраструктуры: бассейн, разделенный на взрослую и детскую зону, а также зону гидромассажаресторан и детское кафетренажерный залдетская зона отдыха - современный детский игровой комплекс не оставит равнодушным Вашего ребенказеленая зона - для взрослых благоустроена парковая зона для отдыха.На территории комплекса планируется построить отель с медицинским центром. Широкий песчано-галечный пляж расположен в 150 метрах от Ола-апарт. Именно качество песка позволило западному побережью Крыма стать, пожалуй, самым известным из отечественных песчаных курортов. Мелкий золотистый песок пляжа идеально подходит не только для отдыха, но и для проведения лечебных процедур. Благодаря комфортному и пологому входу в море, безопасному песчаному дно с мелкой галькой пляж идеален для детей.














































































































