Первичная продажа



1 акция
Только на Циан
12 180 151 ₽
302 237 ₽/м²
ДОМ сдан в 2025 году.
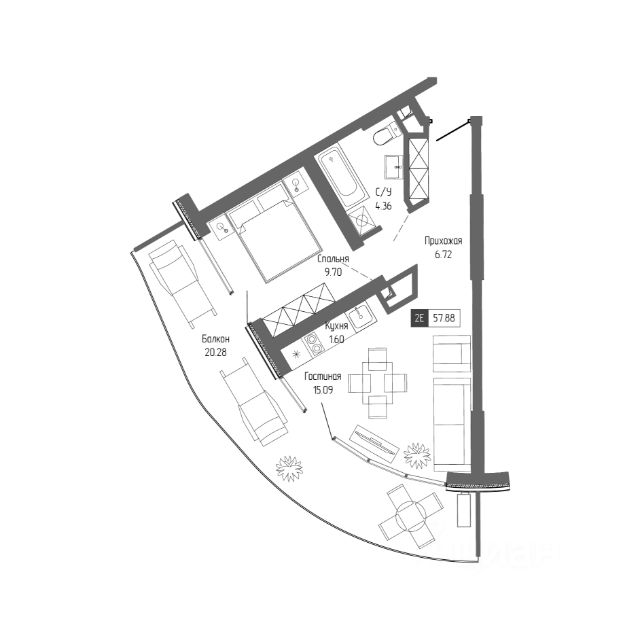
1-о комнатная квартира в новостройке, в комплексе бизнес-класса "Континент", в г. Алушта по улице Пуцатова. Квартира площадью 40,3 кв.м. расположена на 7 этаже 9 этажного монолитного здания. Срок сдачи объекта - IV квартал 2025 года. Планировка квартиры 43,44,45: - Прихожая- 4,5 м2 - Санузел - 3,8 м2 - Кухня-столовая- 20,2 м2 - Жилая комната- 10,2 м2 - Лоджия (без понижающего коэффициента/ с понижающим коэффициентом)- 3,3 /1,6 м2 - Панорамное остекление - Высота потолков 3,2 метра Жилой комплекс располагается в эксклюзивной локации курортного города - в самом зеленом и спокойном районе Алушты, рядом с природным заповедником. Тихий район в непосредственной близости до набережной и главных городских достопримечательностей. Вся необходимая для жизни и отдыха инфраструктура города в шаговой доступности: автобусная остановка 2 минуты, центр города 10 минут, школы и детские сады 5 минут, больница и поликлиника 7 минут, городская набережная 17 минут, рынок 5 минут! Удобная транспортная развязка, без ожиданий в пробках с данной локации Вы сможете легко путешествовать по всему Крыму! Строительство ведется по монолитно-кирпичной технологии из качественных и экологичных материалов. Квартира продается в черновой отделке, что позволит Вам воплотить самые смелые дизайнерские решения! Двухуровневый подземный паркинг на 37 авто. Во дворе детская и спортивная площадка. Приобретение по 214-ФЗ, через ЭСКРОУ-счет. Доступна ипотека, рассрочка. Инвестируйте в высокодоходную недвижимость. Сейчас вы можете купить объекты по самой низкой цене! Звоните, наш отдел продаж ответит на все вопросы! Квартира в новостройке в Алуште.


































































































































































