Первичная продажа



Скидка до 2 млн. руб
ещё 3 акции
Только на Циан
дом сдан
12 231 000 ₽
304 709 ₽/м²
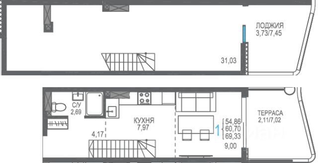
Продаётся студия-апартаменты в сданном доме (Набережная, 64), срок сдачи: IV-кв. 2024, общей площадью 40.14 кв.м., на 3 этаже. Комплекс апартаментов "Ола-апарт" расположен на западном побережье Крыма между городами Саки и Евпатория и входит в состав курортного комплекса Прибрежный. Экологически чистое место находится на косе между Чёрным морем и розовым озером Сасык-Сиваш в непосредственной близости к Сакским лечебным грязевым лиманам.
Проект Прибрежный включает в себя современные квартиры в ЖК Розовое озеро и комплекс апартаментов Ола-апарт с полным спектром курортной инфраструктуры.
Сервисный апарт-отель Ола-апарт включает в себя следующий перечень инфраструктуры:
бассейн, разделенный на взрослую и детскую зону, а также зону гидромассажаресторан и детское кафетренажерный залдетская зона отдыха - современный детский игровой комплекс не оставит равнодушным Вашего ребенказеленая зона - для взрослых благоустроена парковая зона для отдыха.На территории комплекса планируется построить отель с медицинским центром.
Широкий песчано-галечный пляж расположен в 150 метрах от Ола-апарт. Именно качество песка позволило западному побережью Крыма стать, пожалуй, самым известным из отечественных песчаных курортов. Мелкий золотистый песок пляжа идеально подходит не только для отдыха, но и для проведения лечебных процедур. Благодаря комфортному и пологому входу в море, безопасному песчаному дно с мелкой галькой пляж идеален для детей.



















































































































































































