


592 705 ₽/м²
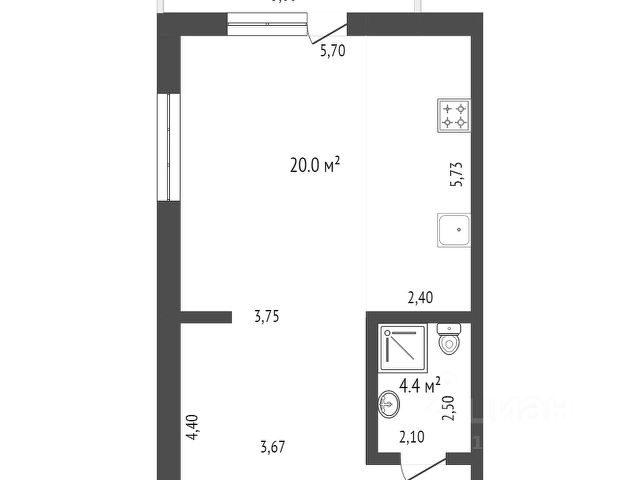
Евродвушка 66 кв.м с панорамным видом на море и горы в ЖК СТАТУС ХАУС, Алушта! Идеальное предложение для тех, кто ценит комфорт, стиль и природу! Просторная евродвушка площадью 66 кв.м в элитном жилом комплексе СТАТУС ХАУС подарит вам уникальную возможность жить с видом, который вдохновляет каждый день. Преимущества квартиры - Панорамные окна с потрясающим видом на Черное море и величественные горы настоящий рай для глаз и души. - Продуманная современная планировка: объединённая кухня-гостиная и изолированная спальня, создающие уют и функциональность. - Дизайнерский ремонт высокого качества, готовая к проживанию или аренде. - Светлые и просторные помещения с отличной естественной освещённостью. Преимущества ЖК СТАТУС ХАУС - Расположение в престижном районе Алушты с развитой инфраструктурой. - Закрытая охраняемая территория с видеонаблюдением. - Собственная парковка, спортивные и детские площадки. - Бассейн на территории ЖК. - Близость к морскому берегу и живописным горным маршрутам. Это отличное вложение и возможность наслаждаться морской свежестью и горным воздухом круглый год. Звоните сейчас, чтобы узнать подробности и организовать просмотр! Живите в статусе, живите с комфортом! Продам квартиру на улице Горького в городе Алушта.













































































