


198 917 ₽/м²
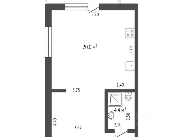
Об апартаментах: Просторные апартаменты с удобной планировкой в 77 м.кв жилья. При входе в апартаменты вы попадаете в просторный гостиничный холл, где расположен совмещенный санузел, далее кухня - столовая со своей зоной отдыха. Следующим шагом из кухни - столовой, вы можете переместится в большие жилые комнаты где расположено все самое необходимое для вашего комфортного пребывания в данных апартаментах. Из окон апартаментов открывается вид на город горы и одну из центральных улиц города, ведущую к основной набережной города Алушта. Вся мебель, встроенная и бытовая техника остается новому собственнику. Хороший вариант для сезонного отдыха и постоянного проживания с возможностью сдачи в аренду. Всегда востребованная локация! Это очень удобная и правильная инвестиция для Вас и для Ваших родных и близких! О доме: Это гостиничный комплекс, расположенный в 300 метрах от кромки берега Черного моря, гостиница предлагает вам провести отдых в самом живописном уголке Алушты. Современная и действительно комфортная обстановка данных апартаментов, доступна по вполне приемлемым ценам. Все, без исключения, номера которые предлагаются в данном доме, обустроены в лучшем виде и с максимальным удобством для постояльцев. Развлекательный комплекс гостиницы, позволит увлекательно провести время, не покидая территории. Для вечерних фуршетов на открытом воздухе, в распоряжении отдыхающих просторная и со вкусом оформленная летняя площадка. Одним из достоинств гостиницы, является бассейн на крыше со смотровой площадкой. Такое роскошное удобство, позволяет насладиться полным спектром летних развлечений, даже тем, кто проводит большую часть отдыха в номерах. Полный комплекс условий для отличного отдыха, который предоставляет гостиница, это исчерпывающее решение для незабываемого отдыха и действительно интересного времяпровождения в Крыму. Собственная столовая, может угостить постояльцев вкусными блюдами по доступным ценам и в отличном качестве приготовления. Wi-Fi Free, на ресепшене гостиницы и несколько бесплатных пляжей в прямой досягаемости (городские пляжи), благотворно отразятся на текущих затратах во время отдыха. Есть своя парковка для вашего автотранспорта. О районе: Улица Горького расположена в центральной части курортного Крымского городка Алушта. Свое начало она берет от автовокзала на Ялтинском шоссе и заканчивается побережьем Черного моря.По улице курсирует общественный транспорт и находится троллейбусная станция. Ведет она прямо к морскому берегу и очень красива, так как украшена памятником и фонтаном, рядом с кольцевой развязкой. На ней благоустроенные пешеходные тротуары и чистое, ровное дорожное покрытие.На оживленной территории можно встретить интересные достопримечательности: дельфинарий, Крым в миниатюре и кинотеатр. Здесь есть торговые и деловые объекты: банк, рынок, магазины, винные супермаркеты, где можно купить бутылку Крымского винзавода "Массандра", магазин "Вело Алушта", который продает и сдает в аренду оборудование для велоспорта. По улице рас Продам квартиру на улице Горького в городе Алушта.















































































