


162 000 ₽/м²
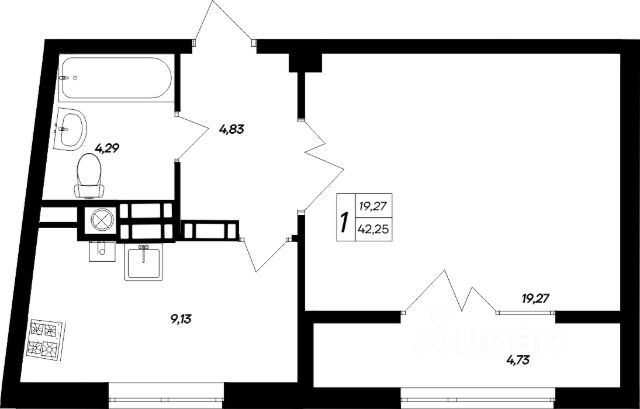
Продаётся 1-комнатная квартира в строящемся доме (Жилой дом 1), срок сдачи: I-кв. 2029, общей площадью 30.58 кв.м., на 7 этаже. "Парковые кварталы" - новый объект от "ИнтерСтрой" Он расположен в активно развивающемся районе Симферополя. Это экологически чистая местность с удобной транспортной развязкой. Первый квартал строительства - это четыре современных девятиэтажных дома. Строгие формы, лаконичный дизайн и динамичные акценты Элегантная колоннада между зданиями словно обрамляет территорию, замыкает ее, тем самым создает приватность и уют. Безусловная функциональность - дворы без машин - ландшафтное озеленение - современные детские площадки - спортивные площадки - места отдыха - удобные парковочные пространства - кладовые для хранения сезонных вещей - колясочные В "Парковых кварталах" тщательно продумана планировка каждой квартиры: - эргономичные однокомнатные от 31 до 52 м - функциональные двухкомнатные от 57 до 74 м - просторные трёхкомнатные квартиры - 75 м Все квартиры оборудованы индивидуальным газовым отоплением и имеют остекленные лоджии. Уникальные квартиры с патио на первых этажах - не мечта, а реальность! Это дополнительное пространство для отдыха и развлечений. Одно из главных преимуществ квартир с патио - возможность наслаждаться пребыванием на открытом воздухе, не выходя из дома. Комфорт для Вашего авто: Вам не придется долго искать, где оставить автомобиль - жилой комплекс оснащен достаточным количеством машиномест. В домах предусмотрены встроенные коммерческие помещения. Прекрасно развитая инфраструктура и продуманные планировки позволят вести бизнес, не отвлекаясь на нюансы. "Парковые кварталы" - идеальный выбор для тех, кто ищет баланс между городским комфортом крымской столицы и спокойным ритмом уютного района. Удобная транспортная развязка даёт возможность быстро выехать на федеральную трассу Таврида. Отсюда можно с лёгкостью добраться на автомобиле в любую точку Симферополя: - до центра города - 20 минут - до аэропорта - 9 минут - до железнодорожного вокзала - 12 минут В пешей доступности: - остановки общественного транспорта - магазины - школы - детский сад - поликлиника - торговый центр - отделения банков - спортивные клубы - администрация - парк ГРЭС









































































































































