Только на Циан
26 000 000 ₽
Продажа - новый дом на закрытой территории, с. Уютное по ул. Ивана Айвазовского, в р-не Песчанки (пригород Евпатории), клубный массив парка Айвазовский на 11 домовладений, в одном архитектурном стиле с благоустроенной территорией, 500м до моря, прямой выход на песчаный пляж.
Категория земель: Земли населённых пунктов. Вид разрешённого использования: Для индивидуального жилищного строительства.
Документы: строение общей площадью 244,5 м2, и земельный участок 6 соток в собственности. Документы РФ. Утвержден проект планировки территории. Название улицы Айвазовского.
Коммуникации: электричество и вода заведены в дом, установлен прибор учета на 30 кВт, канализация (септик), газ в 130 м от земельного участка. Установлен пожарный гидрант.
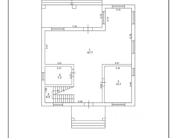
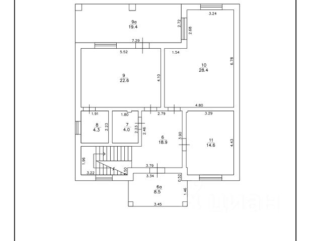
Информация по дому: двухэтажный, 2021 г. постройки, 4-комнатный, жилая 71 м2,, высота потолков 3 метра.
На первом этаже: кухня-гостиная, холл 72.13 м2, комната 9.71 м2, санузел 8,02 м2, котельная 5,00 м2, терраса 17.28 м2.
На втором этаже: комната 21.7 м2, комната 30.00 м2, комната 9.8 м2, санузел 8.3 м2., холл 13.5 м2, гардеробная 4.8 м2, терраса 10,6 м2 с видом на море.
Технические характеристики: - фундамент ленточный ж/б, цоколь ж/б; колонны - ж/б; стены фибропеноблок (толщиной 300мм), смонтирован на клей, утеплён минеральной ватой 50 мм.; наружная отделка фасада декоративная штукатурка; окна теплый трехслойный мультифункциональный стеклопакет. При строительстве использовались качественные материалы.
Доп. работы: Две стороны огорожены капитальным забором, по фасаду кованый забор, установлены ворота и калитка. Высажены деревья декоративные хвойные и лиственные, проложены трубы под полив деревьев.
Инфраструктура: уличное освещение, установлены скамейки, урны, теневые навесы для пешеходной зоны. Автоматические ворота на общий заезд, две калитки. Улица шириной 15м, две пешеходные дорожки по 1.75м, клумбы с деревьями по 1.75м, жилая улица и практически вся застроена. По аллее вывешены репродукции картин И.К. Айвазовского, более 70 штук. Для общего пользования. Есть четыре барельефа, и три орнамента.
До городского транспорта 1км, г. Евпатория в 10 км, магазины, кафе.
Стоимость 26 000 000 руб. Купить коттедже на море в селе Уютное Сакского района.



















































































