











382 353 ₽/м²
Жилой комплекс - современная южная резиденция в одном из самых живописных уголков Крыма. Пять жилых корпусов средней этажности располагаются в самом центре Ялты. Ландшафт представляет собой систему многоуровневых террас, которые спускаются к набережной. Гармоничное соединение различных уровней осуществляется посредством стильных лестниц-амфитеатров. На территории комплекса резидентов ждет премиальный фитнес, спа-комплекс и панорамный инфинити-бассейн. В шаговой доступности находятся: центральная набережная Ялты, Массандровский пляж, рестораны и яхтенная марина.












415 940 ₽/м²
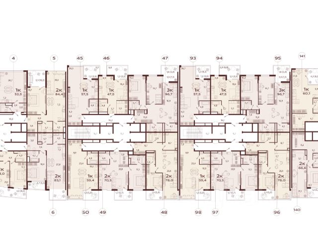
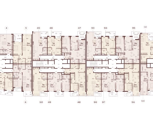
Один из немногих действительно премиальных жилых комплексов Ялты. Формат, который здесь практически не представлен. Лучшие условия входа — переуступка, без завышений от застройщика. Сравнение по цифрам обычно снимает все вопросы. Позвоните — покажу расчёт. Редкие планировки с прямыми видовыми характеристиками: • море • Ялтинская бухта • горы • зелёные массивы Такие планировки представлены в ограниченном числе секций, аналогов в комплексе почти нет. Цена — одна из самых низких по ЖК на текущий момент. Возможна ипотека, индивидуальная рассрочка. Коротко о характеристиках и преимуществах: • Закрытая территория — 24/7 охрана и видеонаблюдение • Этажность — до 89 этажей (редкость для Ялты) • Количество корпусов — несколько малоэтажных зданий • Высота потолков — от 3,0 м • Панорамное остекление • Подземный паркинг + гостевые места • Лифты премиум-класса • SPA и фитнес-зона • Коммерция и сервис на территории • Ландшафтный дизайн с зонами отдыха • Пешая доступность к морю — 1015 минут • Центр Ялты — до набережной ~5 минут на авто • Абсолютно ровный заезд — без серпантинов • В продаже ограниченное число квартир от инвестора Роялта — это жилой комплекс премиум-класса в Ялте. Это проект не массового сегмента, а точечной застройки с фокусом на комфорт и приватность. Это невысокая плотность застройки, где нет ощущения муравейника. Это видовые квартиры, которые не перекрываются соседними домами. Это тишина, воздух и курортная атмосфера — 365 дней в году. Это недвижимость, которую рассматривают либо для личного проживания, либо как долгосрочный актив в Ялте, а не для перепродажи на эмоциях. И да, недостаток всего один — ограниченное количество резиденций. Кто не успел — смотрит потом по другой цене.







































349 751 ₽/м²
Беспроцентная рассрочка на 3 года! Выгодное инвестиционное предложение для пассивного дохода. Покупай сейчас , получай доход уже через год! Позвони по телефону и мы отправим тебе полный инвестиционной расчет. Резиденция для роскошной жизни: На территории — тишина и спокойствие в окружении зелени. Но стоит только захотеть: набережная Ялты — в пяти минутах, а чтобы выехать в мини-путешествие по Большой Ялте нужно всего лишь пару минут — и вы на шоссе. ЗАКРЫТЫЙ ДВОР- Территория вокруг домов закрыта от автомобилей и доступна только жителям ПОДЗЕМНЫЙ ПАРКИНГ - Удобная территория для размещения автомобилей с доступом прямо из подъезда. На каждую квартиру запланировано одно парковочное место. Оазис проекта — бассейн с прозрачной внешней стеной, где кристальная вода сливается с горизонтом, создавая иллюзию бесконечности. Здесь можно парить над водой и окружающими пейзажами — момент становится наслаждением, а не просто отдыхом.























































































260 000 ₽/м²
Продаётся 3-комнатная квартира в сданном доме (Корпус 1), срок сдачи: II-кв. 2019, общей площадью 82 кв.м., на 2 этаже. Аквамарин расположился в центральной части Ялты в окружении парковой зоны. Уникальное расположение позволяет наслаждаться потрясающим видом из панорамных окон с остеклением в пол и просторных балконов на морские и горные пейзажи Ялты. Благодаря тому, что жилой комплекс расположен на возвышенности, из окон квартир открываются панорамный вид на Чёрное море, великолепную Ялту и зеленый парк!Площадь квартир от 41,6 до 350 м.кв., в квартирах балконы и просторные террасы, панорамное остекление в пол, потолки высотой 3.3 м., свободная планировка . Дом выполнен из природного камня, по монолитно-каркасной технологии.Экологически чистый район сочетает в себе смесь морского и хвойного, насыщенного фитонцидами, воздуха!В отделке дома использовался природный камень, что позволило не только гармонично вписать комплекс в окружающий пейзаж, но и обеспечило прочность и устойчивость облицовки фасада в условиях климатических перепадов температур и влажности. Свободные планировки квартир позволяют распланировать пространство в соответствии с вашими предпочтениями. Квартиры можно выбрать на любой вкус от небольшой уютной видовой в 41,6 км.м до большой панорамной в 350 кв.м. Покой жителей надежно охраняет современная система безопасности: контроль доступа, видеокамеры, домофоны и противопожарная сигнализация. Всего 7 минут пешим шагом - и Вы на Набережной Ялты!



236 076 ₽/м²
Уникальное и выгодное предложение! В новом клубном доме бизнес-класса в Ялте продаётся крупногабаритная 2-к квартира с гардеробными без комиссии для покупателя! Клубный дом предлагает к услугам жителей: закрытую территорию без машин, видеонаблюдение, подземный паркинг, а также все необходимое для комфортного проживания - консьерж-сервис, кафе, магазин, детская и спортивная площадки, круглогодичный инфинити бассейн, сауна и хамам. Внутренняя развитая инфраструктура дома обеспечивает удобство и экономит время наших резидентов, делая повседневную жизнь более комфортной. Высокая инвестиционная привлекательность! Самые комфортные условия приобретения! Звоните, пишите, ответим на все вопросы Забронируем лучший вариант! Профессиональное сопровождение до получения прав собственности.



300 000 ₽/м²
Продаётся 3-комнатная квартира в сданном доме (Корпус 1), срок сдачи: II-кв. 2019, общей площадью 88.9 кв.м., на 7 этаже. Аквамарин расположился в центральной части Ялты в окружении парковой зоны. Уникальное расположение позволяет наслаждаться потрясающим видом из панорамных окон с остеклением в пол и просторных балконов на морские и горные пейзажи Ялты. Благодаря тому, что жилой комплекс расположен на возвышенности, из окон квартир открываются панорамный вид на Чёрное море, великолепную Ялту и зеленый парк!Площадь квартир от 41,6 до 350 м.кв., в квартирах балконы и просторные террасы, панорамное остекление в пол, потолки высотой 3.3 м., свободная планировка . Дом выполнен из природного камня, по монолитно-каркасной технологии.Экологически чистый район сочетает в себе смесь морского и хвойного, насыщенного фитонцидами, воздуха!В отделке дома использовался природный камень, что позволило не только гармонично вписать комплекс в окружающий пейзаж, но и обеспечило прочность и устойчивость облицовки фасада в условиях климатических перепадов температур и влажности. Свободные планировки квартир позволяют распланировать пространство в соответствии с вашими предпочтениями. Квартиры можно выбрать на любой вкус от небольшой уютной видовой в 41,6 км.м до большой панорамной в 350 кв.м. Покой жителей надежно охраняет современная система безопасности: контроль доступа, видеокамеры, домофоны и противопожарная сигнализация. Всего 7 минут пешим шагом - и Вы на Набережной Ялты!
✓ Средняя цена продажи: 39,7 млн ₽ в республике Крым
✓ Цена за м²: 417,3 тыс. ₽/м²
✓ Минимальная цена: 25,3 млн ₽, максимум: 45,9 млн ₽