


155 093 ₽/м²
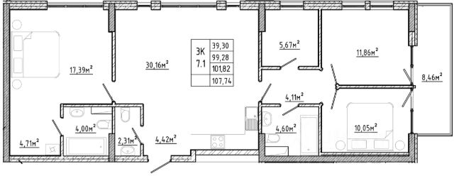
Продается 3-комн. квартира с предчистовой отделкой в ЖМ "Город Мира" на 8 этаже. Общая площадь: 75.89 кв.м., жилая: 41.32 кв.м., площадь просторной кухни-столовой: 12.04 кв.м. Квартира - распашонка, без проходных комнат, окна выходят на paзные стороны дома. В квартире одна лоджия, один совмещенный и один раздельный санузел. Высота потолков 2.7 м. "Город Мира" это масштабный жилой комплекс, созданный для тех, кто ценит комфорт, безопасность и гармонию с природой. Здесь продумана каждая деталь от удобной инфраструктуры до эргономичных планировок квартир. "Город Мира" победил в номинации "Лучший экологический проект года в сфере строительства" по версии премии Сrimеа Urbаn Аwаrds. Способы приобретения недвижимости в "Городе Мира": 1. Ипотека: семейная от 5,5%, военная, IT-ипотека, базовая ипотечная программа и комбо-ипотека. Одобрение заявки проходит сразу в отделе продаж. 2. Материнский капитал на первый взнос. 3. Рассрочка от застройщика - до июня 2028 года! Первоначальный взнос от 30%. 4. Военная ипотека. Участники НИС могут приобрести квартиры по спец.цене. Ключевые преимущества комплекса: удачное расположение зеленый район с благоприятным микроклиматом продуманное зонирование жилые кварталы, зоны отдыха и коммерческие объекты комфорт-класс высокое качество строительства и современные инженерные решения Почему выбирают "Город Мира": Образование и досуг: 2 детских сада (по 260 мест каждый) планируется строительство общеобразовательной школы детские и спортивные площадки в каждом дворе беседки для отдыха, зоны для выгула собак Ритейл и сервис: магазины, аптеки, медицинские центры фитнес-клубы, салоны красоты детские развивающие центры Парковки: гостевые парковки наземные и подземные паркинги Квартиры с продуманным комфортом: просторные планировки с гардеробными и 2-мя санузлами лоджии с остеклением автономное отопление выполнена стяжка пола Благоустройство территории: ландшафтный дизайн с зонами отдыха современные детские площадки стильные холлы с дизайнерской отделкой система видеонаблюдения для безопасности "Город Мира" это место, где созданы все условия для комфортной жизни. Выбирайте качество и продуманность в каждой детали! Дом монолитно-блочный, двухподъездный, высотой 9 этажей. Квартира находится в 1-й секции в корпусе 1. На этаже 5 квартир. В подъезде 1 пассажирский и 1 грузовой лифт. Окончание строительства - 1 квартал 2028 года. Оформление сделки по договору долевого участия. #26e92o Продается 3-комнатная квартира в новостройке с отделкой в районе Центральный в городе Симферополь.



























































































