

304 200 ₽/м²
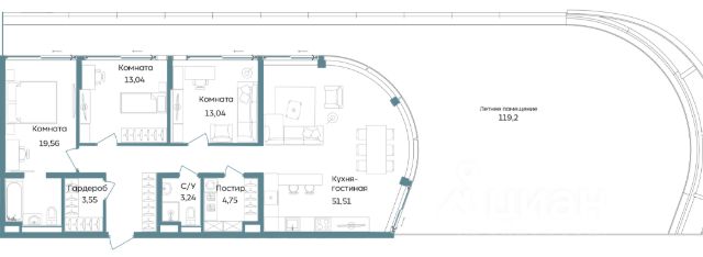
Продается 3-комнатная квартира 143,85 кв.м. на 6 этаже. Тамерун - дом у моря для тех, кто мечтает о тишине, окружении парков и воды. На приватной территории с собственным пляжем расположены видовые апартаменты, бассейны, спа, рестораны и эстетичные сады. Персонализированный сервис здесь исполняет пожелания, создавая атмосферу пятизвездочного отеля у вас дома. Резиденция сочетает преимущества мягкого климата, близость к городам Саки и Евпатория и доступ к целебным источникам. Это пространство вдали от туристического шума идеально для круглогодичного комфортного проживания и здорового образа жизни. Расположение Пешком: - 3 минуты до приватного пляжа у Черного моря; - 15 минут до Ж/Д станции "Техникум"; - 25 минут до пирса у озера Сасык-Сиваш; На автомобиле: - 5 мин. до Симферопольского шоссе; - 10 мин. до города Саки; - 20 мин. до Евпатории; - 45 мин. до аэропорта имени И. К. Айвазовского; - 60 мин. до Ж/Д вокзала Симферополя. Инфраструктура для детей и взрослых - Эксклюзивный клубный пляж; - Виндсерфинг, дайвинг, катание на лодках и другие виды водного спорта; - Спортивный корт для тенниса, футбола и волейбола; - Приватная парковая территория; - Оздоровительный спа-комплекс; - 2 открытых и 1 закрытый бассейны с морской водой; - Банный комплекс с купелями, хамамом, снежной и соляной комнатами; - Развлекательный центр; - Детский клуб с кинотеатром; - Батуты, лабиринты и скалодромы для подростков; - Конференц-зал на 50 человек и переговорные кабинеты; - Бильярдный клуб; - Фитнес-центр с новейшими тренажерами; - Торговая галерея прямо в доме; - Летнее кафе, 3 ресторана и супермаркет; - Гранд-лобби в главном корпусе; - Просторные входные группы с колясочными и велосипедными; - Подземный паркинг на 188 машино-мест с автомойкой; - Наземная гостевая парковка на 259 машино-мест; - Видеонаблюдение, охрана, вход только по пропускам. Живописный ландшафт - Всесезонный сад: зеленый и цветущий двор круглый год; - Более 100 растений в приватном саду; - Амфитеатр на свежем морском воздухе; - Лаунж-зоны и прогулочные дорожки; - Крупнейшее в Крыму соленое розовое озеро Сасык-Сиваш и Сасыкский заказник; - Песчаные пляжи протяженностью 150 метров; - Главная мечеть Евпатории Джума-Джами, Собор Николая Чудотворца, Комплекс Караимских кенас в непосредственной близости. Проект для инвестиций - Федеральный девелопер, входящий в ТОП-20 застройщиков России; - Профессиональный отельный оператор; - Консьерж-сервис 24/7: бронирование, аренда, клининг, доставка; - Для инвесторов полное делегирование обслуживания апартаментов; - Пассивный доход от 1,5 млн руб. в год; - Потенциал роста стоимости 35% в год; - Срок окупаемости при сдаче в аренду 5-6 лет; - Востребованность весь год (на 70% в среднем заселен комплекс)."



























































































