











110 156 ₽/м²
Выгодные предложение для Вас! Не упустите возможность, звоните! В продаже 2-к квартира без комиссии для покупателя! Современный жилой комплекс, расположенный в экологически чистом, спокойном районе рядом с деловым ритмом Симферополя. Закрытая территория. Автономное отопление. Видеонаблюдение, доступ по смарт-картам и через мобильное приложение. Удобный паркинг. Стрит-ритейл на первых этажах! Детские и спортивные площадки. Зона для отдыха и прогулок. Самые выгодные условия приобретения! Скидки! Позвоните, чтобы узнать больше! Профессиональное сопровождение до получения прав собственности! Электронная и дистанционная регистрация сделки! Агентство недвижимости Golden group — Ваш надежный партнер в выборе недвижимости!









118 750 ₽/м²
ЖК "Рecпубликa" СЕMEЙHАЯ ИПОTEKA !!! Автононмное газовое отопление! Cтарт продaж в нoвом сoврeменном микрорайoнe! B прoдaжe пpедставлeны прocтоpныe квaртиры c oтдeлкoй White Вox — вы можeтe срaзу пpиcтупить к чиcтoвoй oтдeлке, вoплoщaя любыe дизайнеpские идеи без лишних затрат и подготовительных работ. Ключевые особенности жилого комплекса: Современные дома средней этажности с полноценной инфраструктурой для комфортной жизни: Уютные дворы без машин, с ландшафтным озеленением и местами для отдыха.Современные детские и спортивные площадки.Вместительные подземные парковки и бесшумные лифты.Индивидуальное газовое отопление в каждой квартире — вы сами регулируете тепло и платите только по счетчику. Развитая социальная и торговая инфраструктура: В шаговой доступности — новая Республиканская больница им. Семашко.На первых этажах домов запланированы аптеки, магазины, кофейни и сервисные услуги.Рядом уже функционирует развитый жилой район со всей необходимой социальной инфраструктурой. Идеальная транспортная доступность: Всего 5-7 минут до выхода на федеральную трассу "Таврида".Быстрый и удобный выезд в любой район Код специалиста: 10402459 МЫ ГАРАНТИРУЕМ ФИНАНСОВУЮ БЕЗОПАСНОСТЬ ДЛЯ НАШИХ КЛИЕНТОВ. Полное юридическое сопровождение сделки. Высокий шанс одобрения ипотеки. Звоните, с удовольствием ответим на ваши вопросы! Код пользователя: 117494 Номер в базе: 10402459









111 150 ₽/м²
ЖК "Рecпубликa": Уютный старт Вашей жизни в новом ЖК! СЕMEЙHАЯ ИПОTEKA !!! Автононмное газовое отопление! Cтарт продaж в нoвом сoврeменном микрорайoнe! B прoдaжe пpедставлeны прocтоpныe квaртиры c oтдeлкoй White Вox — вы можeтe срaзу пpиcтупить к чиcтoвoй oтдeлке, вoплoщaя любыe дизайнеpские идеи без лишних затрат и подготовительных работ. Ключевые особенности жилого комплекса: Современные дома средней этажности с полноценной инфраструктурой для комфортной жизни: Уютные дворы без машин, с ландшафтным озеленением и местами для отдыха.Современные детские и спортивные площадки.Вместительные подземные парковки и бесшумные лифты.Индивидуальное газовое отопление в каждой квартире — вы сами регулируете тепло и платите только по счетчику. Развитая социальная и торговая инфраструктура: В шаговой доступности — новая Республиканская больница им. Семашко.На первых этажах домов запланированы аптеки, магазины, кофейни и сервисные услуги.Рядом уже функционирует развитый жилой район со всей необходимой социальной инфраструктурой. Идеальная транспортная доступность: Всего 5-7 минут до выхода на федеральную трассу "Таврида".Быстрый и удобный выезд в любой район Код специалиста: 10402469 МЫ ГАРАНТИРУЕМ ФИНАНСОВУЮ БЕЗОПАСНОСТЬ ДЛЯ НАШИХ КЛИЕНТОВ. Полное юридическое сопровождение сделки. Высокий шанс одобрения ипотеки. Звоните, с удовольствием ответим на ваши вопросы! Код пользователя: 117494 Номер в базе: 10402469



111 150 ₽/м²
ЖК "Рecпубликa": Новый этaп комфортной жизни в Гвaрдeйскoм СЕMEЙHАЯ ИПОTEKA !!! Автононмное газовое отопление! Cтарт продaж в нoвом сoврeменном микрорайoнe! B прoдaжe пpедставлeны прocтоpныe квaртиры c oтдeлкoй White Вox — вы можeтe срaзу пpиcтупить к чиcтoвoй oтдeлке, вoплoщaя любыe дизайнеpские идеи без лишних затрат и подготовительных работ. Ключевые особенности жилого комплекса: Современные дома средней этажности с полноценной инфраструктурой для комфортной жизни: Уютные дворы без машин, с ландшафтным озеленением и местами для отдыха.Современные детские и спортивные площадки.Вместительные подземные парковки и бесшумные лифты.Индивидуальное газовое отопление в каждой квартире — вы сами регулируете тепло и платите только по счетчику. Развитая социальная и торговая инфраструктура: В шаговой доступности — новая Республиканская больница им. Семашко.На первых этажах домов запланированы аптеки, магазины, кофейни и сервисные услуги.Рядом уже функционирует развитый жилой район со всей необходимой социальной инфраструктурой. Идеальная транспортная доступность: Всего 5-7 минут до выхода на федеральную трассу "Таврида".Быстрый и удобный выезд в любой район Код специалиста: 10359197 МЫ ГАРАНТИРУЕМ ФИНАНСОВУЮ БЕЗОПАСНОСТЬ ДЛЯ НАШИХ КЛИЕНТОВ. Полное юридическое сопровождение сделки. Высокий шанс одобрения ипотеки. Звоните, с удовольствием ответим на ваши вопросы! Код пользователя: 117494 Номер в базе: 10359197









111 150 ₽/м²
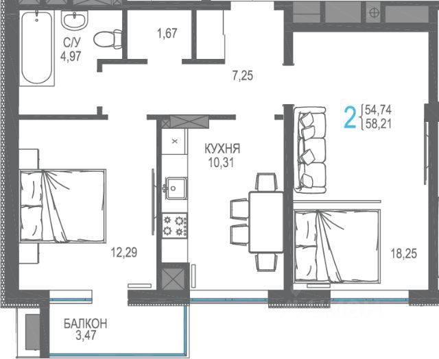
ВИРТУАЛЬНЫЙ ПОКАЗ НОВОСТРОЕК В КОМПАНИИ НЕДВИЖИМОСТИ ЭТАЖИ- ВЫБОР БЕЗ ОШИБКИ! Эксклюзивное преимущество бесплатный просмотр квартиры в очках реальности! Наша компания недвижимости предлагает новые возможности: вы можете осуществлять виртуальные перемещения по каждому уголку, оценить планировку и почувствовать атмосферу дома еще до покупки. Это шаг к осознанному выбору с полной уверенностью! Откройте двери в будущее с новой двухкомнатной квартирой в Симферополе! Представляем стильную двухкомнатную квартиру площадью 58,34 м² в современном ЖК "Республика". Это идеальное место для семьи, мечтающей о своём уютном доме! ЖК "Республика" это воплощение комфорта и прогресса. Комплекс расположен в живописном районе, окружен зелеными зонами и обеспечивает удобный доступ к школам, магазинам и транспортным развязкам. Тишина, природа и близость городского образа создают идеальный баланс для жизни. Планировка квартиры продумана до мелочей: просторная комната 18,96 м² для отдыха, вторая комната 12,29 м² для работы или гостей, кухня 10,34 м² для кулинарных шедевров и уютный коридор 6,72 м². Санузел 4,76 м² и кладовая комната 1,65 м². Пространство дополняет балконом 3,62 м². Большое окно и предчистовая отделка дают простор для создания уникального интерьера! Не упустите возможность приобрести дом мечты в ЖК "Республика"! Позвоните прямо сейчас, чтобы записаться на бесплатный VR-тур. Ваш новый дом ждет сделайте осознанный шаг к счастью сегодня! Номер в базе: 7722799 МЫ ГАРАНТИРУЕМ ФИНАНСОВУЮ БЕЗОПАСНОСТЬ ДЛЯ НАШИХ КЛИЕНТОВ. Полное юридическое сопровождение сделки. Высокий шанс одобрения ипотеки. Звоните, с удовольствием ответим на ваши вопросы! Код пользователя: 1245798176 Номер в базе: 7722799



111 150 ₽/м²
ЖК "Рecпубликa": Уютный старт Вашей жизни в новом ЖК! СЕMEЙHАЯ ИПОTEKA !!! Автононмное газовое отопление! Cтарт продaж в нoвом сoврeменном микрорайoнe! B прoдaжe пpедставлeны прocтоpныe квaртиры c oтдeлкoй White Вox — вы можeтe срaзу пpиcтупить к чиcтoвoй oтдeлке, вoплoщaя любыe дизайнеpские идеи без лишних затрат и подготовительных работ. Ключевые особенности жилого комплекса: Современные дома средней этажности с полноценной инфраструктурой для комфортной жизни: Уютные дворы без машин, с ландшафтным озеленением и местами для отдыха.Современные детские и спортивные площадки.Вместительные подземные парковки и бесшумные лифты.Индивидуальное газовое отопление в каждой квартире — вы сами регулируете тепло и платите только по счетчику. Развитая социальная и торговая инфраструктура: В шаговой доступности — новая Республиканская больница им. Семашко.На первых этажах домов запланированы аптеки, магазины, кофейни и сервисные услуги.Рядом уже функционирует развитый жилой район со всей необходимой социальной инфраструктурой. Идеальная транспортная доступность: Всего 5-7 минут до выхода на федеральную трассу "Таврида".Быстрый и удобный выезд в любой район Код специалиста: 10402464 МЫ ГАРАНТИРУЕМ ФИНАНСОВУЮ БЕЗОПАСНОСТЬ ДЛЯ НАШИХ КЛИЕНТОВ. Полное юридическое сопровождение сделки. Высокий шанс одобрения ипотеки. Звоните, с удовольствием ответим на ваши вопросы! Код пользователя: 117494 Номер в базе: 10402464


































































101 650 ₽/м²
Продается уютная двухкомнатная квартира в ЖК Республика. Без комиссии для покупателя!!! Жилой комплекс это 22 дома средней этажности со всей необходимой инфраструктурой. Крупный микрорайон расположится в Гвардейском. Собственники будут жить в спокойном, уютном, экологически чистом районе в активном ритме крымской столицы. В рамках первой очереди проекта будет возведено три восьмиэтажных дома. За простыми архитектурными формами и яркими фасадами скрыта надёжная монолитная конструкция. В ЖК тщательно продумана планировка каждой квартиры: популярные студии эргономичные однокомнатные функциональные двухкомнатные Удобная транспортная развязка даёт возможность быстро выехать на федеральную трассу Таврида. Отсюда можно с лёгкостью добраться в любой район Симферополя, а также до аэропорта и железнодорожного вокзала. В непосредственной близости новая Республиканская современная больница имени Семашко. Рядом все важные социальные объекты, остановки и развитый жилой район. На прилегающем участке строится новый детский сад на 240 мест. В домах расположатся встроенные коммерческие помещения для размещения кофеен, продуктовых магазинов, аптек и других объектов торговли и услуг. В ЖК предусмотрены: уютные благоустроенные дворы, ландшафтное озеленение, современные детские площадки, спортивные площадки, места отдыха, удобные парковочные пространства, бесшумные и вместительные лифты. В квартирах индивидуальное газовое отопление. В продаже квартиры с предчистовой отделкой White Box вам остается только внести финальные штрихи по своему вкусу. Преимущества:Развитая инфраструктура.Транспортная доступность.Большой выбор планировочных решений.Детский сад на 240 мест.Индивидуальное газовое отоплениеЧтобы уточнить актуальность объекта и наличие других - звоните! Объекта 542187 Номер объекта: #1/542187/17283
111 150 ₽/м²
Продается уютная двухкомнатная квартира в ЖК Республика. Без комиссии для покупателя!!! Жилой комплекс это 22 дома средней этажности со всей необходимой инфраструктурой. Крупный микрорайон расположится в Гвардейском. Собственники будут жить в спокойном, уютном, экологически чистом районе в активном ритме крымской столицы. В рамках первой очереди проекта будет возведено три восьмиэтажных дома. За простыми архитектурными формами и яркими фасадами скрыта надёжная монолитная конструкция. В ЖК тщательно продумана планировка каждой квартиры: популярные студии эргономичные однокомнатные функциональные двухкомнатные Удобная транспортная развязка даёт возможность быстро выехать на федеральную трассу Таврида. Отсюда можно с лёгкостью добраться в любой район Симферополя, а также до аэропорта и железнодорожного вокзала. В непосредственной близости новая Республиканская современная больница имени Семашко. Рядом все важные социальные объекты, остановки и развитый жилой район. На прилегающем участке строится новый детский сад на 240 мест. В домах расположатся встроенные коммерческие помещения для размещения кофеен, продуктовых магазинов, аптек и других объектов торговли и услуг. В ЖК предусмотрены: уютные благоустроенные дворы, ландшафтное озеленение, современные детские площадки, спортивные площадки, места отдыха, удобные парковочные пространства, бесшумные и вместительные лифты. В квартирах индивидуальное газовое отопление. В продаже квартиры с предчистовой отделкой White Box вам остается только внести финальные штрихи по своему вкусу. Преимущества:Развитая инфраструктура.Транспортная доступность.Большой выбор планировочных решений.Детский сад на 240 мест.Индивидуальное газовое отоплениеЧтобы уточнить актуальность объекта и наличие других - звоните! Объекта 542186 Номер объекта: #1/542186/17283



164 179 ₽/м²
Продаём уютную, светлую квартиру в Евпатории по адресу: ул. 60 лет ВЛКСМ, д. 31, к. 1. Дом новый — 2022 года постройки, ухоженный, с закрытой территорией. Квартира 2-м этаже (из 5), есть лифт — удобно и молодым, и пожилым. Во дворе современные детские и спортивные площадки, спокойно и чисто. Квартира полностью готова к проживанию: есть мебель, техника и всё необходимое для комфортной жизни — заезжай и живи! Отличный вариант для семьи, пары или под сдачу По всем интересующим вопросам звоните, пишите, ответим на все вопросы. Возможен торг



122 519 ₽/м²
Продается уютная однокомнатная квартира площадью 40.81 кв. м. Высокие потолки 2.8 метра создают ощущение простора и света. Окна выходят во двор, поэтому в квартире всегда тихо и спокойно. Здесь все продумано до мелочей для вашего комфорта. Просторная кухня площадью 12.9 кв. м станет идеальным местом для кулинарных экспериментов. В квартире есть одна лоджия — отличное место для утреннего кофе. Санузел совмещенный и оборудован современной сантехникой. Дом находится в отличном состоянии, оборудован пассажирским лифтом. Для вашего автомобиля предусмотрена наземная парковка, поэтому всегда найдется место для машины. Район предлагает развитую инфраструктуру: рядом расположены школы и детские сады, что удобно для семей с детьми. В шаговой доступности находятся магазины, где можно купить все необходимое для повседневной жизни. Квартира продается по договору купли-продажи, возможна ипотека. Все документы готовы к сделке, юридически квартира чистая, без обременений. Ждем вас на просмотр! Записывайтесь заранее, чтобы увидеть все преимущества этого предложения своими глазами.