


409 402 ₽/м²
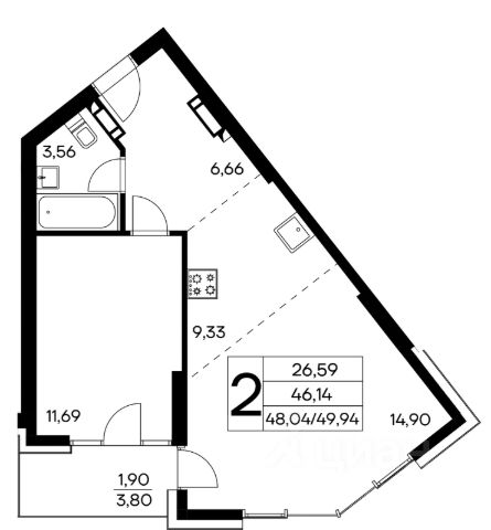
Продаются апартаменты в премиальном гостиничном комплексе апартаментов "Паруса мечты" в историческом районе г. Алушты. Апартаменты N 48Ап/2-7 Видовые характеристики: море / гора Кастель Этаж: 7 Высота потолков: 3м Описание: Место, где хочется жить и куда хочется возвращаться! Собственный мини-двор с завораживающими видами из любой точки комплекса - на море, заповедный лес и гору Кастель. Открытый бассейн Отличная альтернатива походу на пляж, если у вас в запасе всего несколько свободных минут. Здесь можно принять солнечные ванны на шезлонгах, собрать друзей на вечеринку или провести время с детьми. Широкие зеленые аллеи с клумбами и лавочками станут любимым местом для отдыха или неспешных прогулок. Футуристичный фонтан у входа станет идеальным местом притяжения для жителей комплекса. Большая детская площадка с безопасным покрытием и игровым комплексом из экологичных материалов на долгие часы привлечет даже самых активных малышей. Также в "парусах мечты" круглый год работает комната творчества, где проходят различные мастер-классы, развивающие игры и арт-кружки. Варианты приобретения: — 100% оплата; — Беспроцентная рассрочка; — Ипотека от ведущих банков. Преимущества комплекса: — 500 м от моря, современная набережная Профессорского уголка; — Исторический район г. Алушты; — 100% видовые характеристики из каждого апартамента на морское побережье, гору Кастель и вечнозеленый заповедник; — Собственный пляж с курсирующим до него/обратно электрокаром. Инфраструктура: - Открытые бассейны и SPA - Тренажерный зал - Детская площадка - Комната для игр и творчества - Летний кинотеатр - Ресторан - Входная группа с фонтаном - Дизайнерское лобби с зонами для отдыха - Келлеры - Колясочные - Прогулочная аллея и места для отдыха - Коммерческие помещения и подземный паркинг Собственная сервисная компания: Мы предоставляем уникальный сервис под любой из ваших запросов: - трансфер из аэропорта до жилого комплекса, - подготовка квартиры к вашему приезду, - сдача в аренду от собственной сервисной компании, - аниматоры на детский праздник, - клининг-сервис, - экскурсии и трансфер по Крыму. Комплекс реализуется по 214-ФЗ. Для записи на просмотр звоните в отдел продаж!

































































































































































