


250 026 ₽/м²
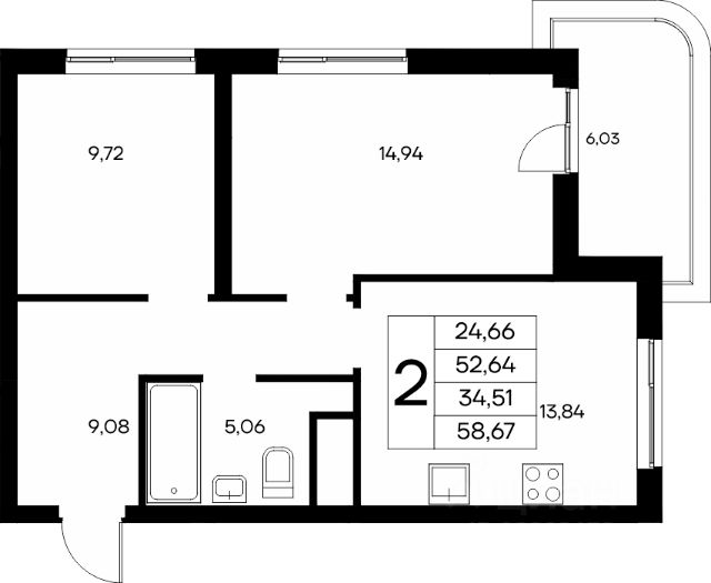
Продается квартира в комплексе бизнес-класса "Долина Роз" в г. Судак. Квартира N 107 Видовые характеристики: горы Этаж: 1 Высота потолков: 3 м Описание: Долина Роз - один из самых живописных проектов Крыма в окружении виноградников, гор и моря в историческом центре города Судак. Жилой комплекс расположен в экологически чистом месте Крыма — в историческом районе города Судак. Долина Роз — это идеальный баланс: главные курортные, туристические и природные локации расположены поблизости от комплекса. Благодаря удачному расположению вы всегда будете находиться вне суеты, и при этому близко к центру. Варианты приобретения: — 100% оплата — Беспроцентная рассрочка — Ипотека от ведущих банков Преимущества комплекса: — Панорамные виды на побережье, горы и виноградники; — 10 минутах от природных и исторических достопримечательностей; Более 40 видов планировочных решений: — Нет квартир-студий; — Квартиры с собственным патио; — Квартиры с лоджией из кухни-гостиной или из спальни; — Пентхаусы с террасами; — Двухуровневые квартиры с террасами; — Квартиры с арочными окнами; — Квартиры с окном в ванной; — Квартиры с высотой потолка до 3.7м; — ФЗ-214. Инфраструктура: — Открытый бассейн с зонами отдыха и шезлонгами; — Собственная традиционно оборудованная баня; — Многофункциональная спортивная площадка и уличный workout; — Велосипедная дорожка по всему периметру жилого комплекса; — Детские площадки с безопасным покрытием; — Прогулочные аллеи с местами для отдыха; — Коммерческие помещения; — Келлеры для хранения вещей — Большая открытая парковка; — Закрытая охраняемая территория. Собственная сервисная компания: Мы предоставляем уникальный сервис под любой из ваших запросов: - трансфер из аэропорта до жилого комплекса, - подготовка квартиры к вашему приезду, - аниматоры на детский праздник, - клининг-сервис, - экскурсии и трансфер по Крыму Комплекс реализуется по 214-ФЗ. Для записи на просмотр звоните в отдел продаж! Продам 2-комнатную квартиру в Судаке.














































































































