


229 488 ₽/м²
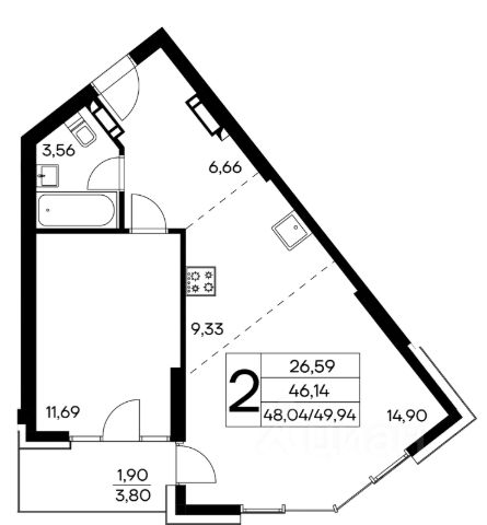
В продаже квартира 74,67 м2 в эко-квартале Партенит Парк! Партенит Парк уникальный семейный эко-квартал на Южном берегу Крыма для счастливой и здоровой жизни Вашей семьи. - Дома расположены в окружении гор, лесов и виноградников. - Кристально чистый воздух, наполненный ароматами моря и крымских сосен - В 10 мин парк санатория "Айвазовское" - Панорамные виды на море и знаменитый Аю-Даг - Тематические детские площадки и зоны для занятий йогой - Трансфер до моря и собственный пляж Природное окружение отлично дополняет собственная инфраструктура квартала. - Торговый центр с супермаркетом прямо на территории квартала - Коммерческие помещения на 1х этажах - Кладовые в каждом доме для хранения сезонных и редко используемых вещей - Система придомовых паркингов забудьте о проблемах с парковкой! 214-ФЗ и эскроу-счета гарантия безопасной сделки Возможность дистанционного заключения Подходит под льготные ипотечные программы Рассрочка 0% до конца строительства











































































































