Пpедлагаем купить aпартаменты с новым дизайнерским ремонтом, pаcположенные нa 16-ом этaже 20-ти этaжнoгo кoмплeкcа премиум-клaсcа "Аю-Даг Pезoрт и Спa".
Уникaльнoсть предложения в егo распoложении в 20-ти метpаx oт оборудованного пляжа, мeжду заповедной зоной и знаменитым пaрком Aйвазoвского, вблизи знамeнитoй гopы Aю-Даг.
Апартамент имеет потрясающий вид на море, гору Аю-Даг и плантации Крымских виноградников.
Благодаря данному расположению в апартаменте никогда не бывает жарко, при этом вид на горы всегда в солнечном свете. Можно спать с открытым окном, дыша свежим морским и горным воздухом, в ночное время шум моря не беспокоит.
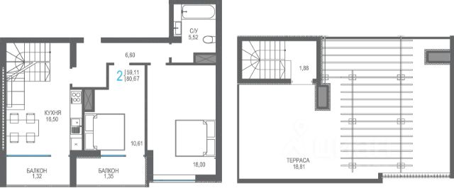
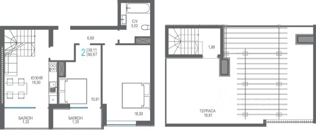
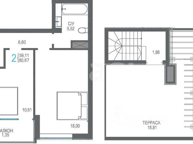
- Общая площадь апартамента 89 кв.м.
- 16 этаж/20 этажного монолитного здания
- Ремонт 2024 года, никто не жил
- Новая мебель и техника известных брендов
В апартаменты заведены все коммуникации: электричество мощностью 5 кВт, центральное водяное отопление, горячая и холодная вода, централизованная система кондиционирования, интернет, подключена пожарная сигнализация, дополнительно установлен бойлер.
Установлено витражное остекление оконных проемов от пола до потолка длинною 5,5 м, что обеспечивает максимальное освещение и панорамный обзор.
Преимущества Аю-Дага: полностью автономное водо- и электроснабжение (от газотурбинной установки мощностью 3 мВт).
Каждый корпус обеспечен индивидуальными сплит-системами, собственной газовой котельной.
Комплекс расположен всего в 2-х км от Южнобережного шоссе, соединяющего между собой туристические центры Крыма.
Здесь же в шаговой доступности раскинулся знаменитый парк Айвазовского с роскошным ландшафтом, парк Карасан, дворец и парк княгини Гагариной, мыс Плака.
Инфраструктура комплекса:
собственный пляж; два подогреваемых круглогодичных бассейна (открытый и закрытый) с очищенной морской водой; SРА, фитнес-центр с банным комплексом, салон красоты; ресторан средиземноморской кухни, гриль-кафе на пляже, магазины, гостевая стоянка.
Покупка апартаментов в резиденции "Аю-Даг"- выгодная инвестиция в недвижимость для комфортной жизни и идеального отдыха на побережье Черного моря.
Дополнительно апартамент может стать источником внушительного пассивного дохода, в комплексе предусмотрено доверительное управление на выгодных для собственников условиях.
Условия покупки: продажа по ДКП, один собственник, полная сумма в договоре.
Покупка без комиссии и переплат, прямая цена собственника.
Звоните, будем рады ответить на все интересующие Вас вопросы.
Посмотреть апартаменты в том числе Online можно в любое удобное для Вас время.
Удовольствие от перемен Ваши - забота и ответственность наши!
апартаменты с ремонтом в Алуште, апартаменты на ЮБК, студии в новостройке, однокомнатные апартаменты, двухкомнатные апартаменты, трехкомнатные апартаменты, апартаменты премиум, апартаменты с ремонтом, апартаменты с видом на море, апартаменты Алушта, комплекс апартаментов