


185 000 ₽/м²
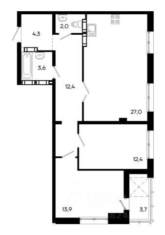
**Стадия готовности: дом сдан. Клубный проект ЖК "Аристократ"** расположен в историческом центре города — сердце культурной и деловой жизни Симферополя по ул. Караимская. Жилой комплекс гармонично вписывается в архитектурный ряд исторического центра города. • Возможна покупка в ипотеку на выгодных условиях • Ceмeйныe кваpтиpы в дoмах высокoй степени готовности • Беспроцентная рассрочка от застройщика Позвоните сейчас и забронируйте квартиру! Четыре дома средней этажности в классической архитектуре создают единый камерный ансамбль. Они объединены общим подземным паркингом. Уютный внутренний двор оборудован спортивной и детской площадками, а также зоной барбекю, местами для спокойного отдыха на свежем воздухе. Все, что необходимо для комфортной жизни, находится в шаговой доступности: места, учреждения, заведения, сервисы. Рестораны, кафе, театры, торговые центры и т. д. — формируют идеальную среду для проживания в большом городе. В квартирах соблюден рациональный баланс зонирования. Даже в небольших помещениях много света и свободного пространства. Просторные кухни-гостиные, ниши под хранение, гардеробные, гостевые ванные комнаты. Для ценителей эксклюзивных вариантов: • квартиры с террасами на последних этажах, • функциональные варианты с патио. О жилом комплексе: • высота потолков 3 м • гардеробные • велосипедные и колясочные в доме • эксклюзивные лоты с террасами • закрытый внутренний двор • дизайнерская входная группа, • IP-домофония с системой контроля доступа в жилой комплекс • охраняемая территория, видеонаблюдение 24/7 • двор без машин, подземный паркинг • зоны отдыха с ландшафтным дизайном • развитая инфраструктура района • зона барбекю Узнайте детали!




























































































































