





























110 156 ₽/м²
Выгодные предложение для Вас! Не упустите возможность, звоните! В продаже 2-к квартира без комиссии для покупателя! Современный жилой комплекс, расположенный в экологически чистом, спокойном районе рядом с деловым ритмом Симферополя. Закрытая территория. Автономное отопление. Видеонаблюдение, доступ по смарт-картам и через мобильное приложение. Удобный паркинг. Стрит-ритейл на первых этажах! Детские и спортивные площадки. Зона для отдыха и прогулок. Самые выгодные условия приобретения! Скидки! Позвоните, чтобы узнать больше! Профессиональное сопровождение до получения прав собственности! Электронная и дистанционная регистрация сделки! Агентство недвижимости Golden group — Ваш надежный партнер в выборе недвижимости!



101 650 ₽/м²
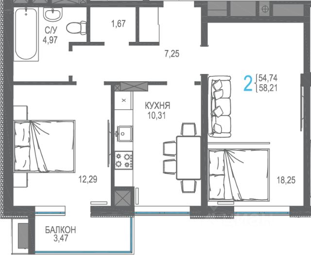
Продается уютная двухкомнатная квартира в ЖК Республика. Без комиссии для покупателя!!! Жилой комплекс это 22 дома средней этажности со всей необходимой инфраструктурой. Крупный микрорайон расположится в Гвардейском. Собственники будут жить в спокойном, уютном, экологически чистом районе в активном ритме крымской столицы. В рамках первой очереди проекта будет возведено три восьмиэтажных дома. За простыми архитектурными формами и яркими фасадами скрыта надёжная монолитная конструкция. В ЖК тщательно продумана планировка каждой квартиры: популярные студии эргономичные однокомнатные функциональные двухкомнатные Удобная транспортная развязка даёт возможность быстро выехать на федеральную трассу Таврида. Отсюда можно с лёгкостью добраться в любой район Симферополя, а также до аэропорта и железнодорожного вокзала. В непосредственной близости новая Республиканская современная больница имени Семашко. Рядом все важные социальные объекты, остановки и развитый жилой район. На прилегающем участке строится новый детский сад на 240 мест. В домах расположатся встроенные коммерческие помещения для размещения кофеен, продуктовых магазинов, аптек и других объектов торговли и услуг. В ЖК предусмотрены: уютные благоустроенные дворы, ландшафтное озеленение, современные детские площадки, спортивные площадки, места отдыха, удобные парковочные пространства, бесшумные и вместительные лифты. В квартирах индивидуальное газовое отопление. В продаже квартиры с предчистовой отделкой White Box вам остается только внести финальные штрихи по своему вкусу. Преимущества:Развитая инфраструктура.Транспортная доступность.Большой выбор планировочных решений.Детский сад на 240 мест.Индивидуальное газовое отоплениеЧтобы уточнить актуальность объекта и наличие других - звоните! Объекта 542187 Номер объекта: #1/542187/17283



111 150 ₽/м²
Продается уютная двухкомнатная квартира в ЖК Республика. Без комиссии для покупателя!!! Жилой комплекс это 22 дома средней этажности со всей необходимой инфраструктурой. Крупный микрорайон расположится в Гвардейском. Собственники будут жить в спокойном, уютном, экологически чистом районе в активном ритме крымской столицы. В рамках первой очереди проекта будет возведено три восьмиэтажных дома. За простыми архитектурными формами и яркими фасадами скрыта надёжная монолитная конструкция. В ЖК тщательно продумана планировка каждой квартиры: популярные студии эргономичные однокомнатные функциональные двухкомнатные Удобная транспортная развязка даёт возможность быстро выехать на федеральную трассу Таврида. Отсюда можно с лёгкостью добраться в любой район Симферополя, а также до аэропорта и железнодорожного вокзала. В непосредственной близости новая Республиканская современная больница имени Семашко. Рядом все важные социальные объекты, остановки и развитый жилой район. На прилегающем участке строится новый детский сад на 240 мест. В домах расположатся встроенные коммерческие помещения для размещения кофеен, продуктовых магазинов, аптек и других объектов торговли и услуг. В ЖК предусмотрены: уютные благоустроенные дворы, ландшафтное озеленение, современные детские площадки, спортивные площадки, места отдыха, удобные парковочные пространства, бесшумные и вместительные лифты. В квартирах индивидуальное газовое отопление. В продаже квартиры с предчистовой отделкой White Box вам остается только внести финальные штрихи по своему вкусу. Преимущества:Развитая инфраструктура.Транспортная доступность.Большой выбор планировочных решений.Детский сад на 240 мест.Индивидуальное газовое отоплениеЧтобы уточнить актуальность объекта и наличие других - звоните! Объекта 542186 Номер объекта: #1/542186/17283



103 189 ₽/м²
Предлагаемые апартаменты располагаются на расстоянии пешей доступности, составляющем ориентировочно восемь минут (600 метров), от благоустроенных и поддерживаемых в надлежащем санитарном состоянии пляжных зон. В непосредственной близости от указанных апартаментов присутствует вся необходимая инфраструктура для комфортного времяпрепровождения, а именно: предприятия розничной торговли, реализующие продовольственные товары, широкий спектр заведений общественного питания, пункт остановки транспортных средств общего пользования, а также известный объект садово-парковой архитектуры, расположенный на территории Крыма, парк Чаир. В апартаментах произведены ремонтные работы, и они подготовлены к проведению финишной отделки. Обеспечено подключение к системам водоснабжения и электроэнергии, установлены приборы учёта. Разработан дизайн-проект. Данное предложение представляется оптимальным вариантом как для постоянного проживания, так и для последующей сдачи в аренду на коммерческой основе.



256 000 ₽/м²
ЖИЛОЙ КВАРТАЛ "ЦЕНТРПАРК" выгодно расположен на центральной улице города - буквально в 10 минутах находятся бескрайние песчаные пляжи и красивая набережная. Разнообразие планировочных решений - от компактных студий до просторных 3х-комнатных квартир - позволит каждому покупателю найти вариант, который придется ему по душе и будет отвечать всем его требованиям. ПЛАНИРОВКА КВАРТИРЫ : - Холл 4,9 м2 - С/У 5,7 м2 - Комната 14,5 м2 - Кухня 9,3 м2 - Лоджия 3,5 Новый проект повышенной комфортности в Евпатории, в котором воплотилось идеальное сочетание элегантной архитектуры, уюта квартир и двора, высокотехнологичных решений и праздника жизни у моря в самом солнечном городе на крымском побережье. Это место, где мечта встречается с реальностью! ЖК ЦентрПарк - это: - панорамные виды из окон - доступ в подземный паркинг на лифте напрямую из подъезда - двор без машин, расположенный на крыше крытого паркинга - видеонаблюдение и контроль доступа в дом - помещения для хранения сезонных вещей - помещение для консьерж-сервиса - вход по смарт-картам СПЕШИТЕ ПРИОБРЕСТИ !!! ПОМОЩЬ В СОГЛАСОВАНИИ ИПОТЕКИ ! ДИСТАНЦИОННЫЙ СДЕЛКИ !!! СКИДКА ПРИ 100 % ОПЛАТЕ !!! ДОМ СДАН !!!






186 047 ₽/м²
ПРЯМАЯ ПРОДАЖА ПОМЕЩЕНИЯ В ЦЕНТРЕ ПАРТЕНИТА ПОД АПАРТАМЕНТЫ-СТУДИЮ у подножия Медведь-горы, прямо у моря (50 метров) в Партените на территории реликтового парка санатория Крым по ул. Прибрежной, 7. Общая площадь помещения 17,2 м.кв. Помещение расположено на 1-м этаже 12-ти этажного нового комплекса. Придомовая территория ограждена и охраняется. Помещение состоит из одной комнаты и небольшого санузла, в котором можно расположить душевую кабину. Помещение идеально подойдет для создания апартаментов-студии или офисного помещения. Есть дизайнерский эскиз проект переделки помещения в апартамент со встроенной кухней. Непосредственно к дому примыкает территория санатория Крым со своей лечебной, оздоровительной, спортивной и развлекательной инфраструктурой. На территории дома расположены детские площадки, фитнес клуб, кафетерий. Подход к морю и пляжу по асфальтированным дорожкам без спусков и подъемов. Документы российского образца, полностью готовы для совершения сделки. Стоимость 37 000 дол. США в рублевом эквиваленте.



211 443 ₽/м²
Арт. 119845549 Предлагаем к продаже уютную, в современном стиле 1-комнатную квартиру в новом ЖК "Бавария" (2017 год постройки). Адрес: Крым, г. Симферополь, ул. Балаклавская, 135. Квартира находится на 2 этаже 10-этажного дома, не угловая, окна во двор, в идеальном состоянии! Характеристики: Площадь: 40,2/18,7/10,1 кв.м., без учета балкона. Коридор: 7,4 кв.м. Санузел: 4 кв.м. Лоджия с кухни - остеклена. Особенности: Огромная остекленная лоджия, совмещенный санузел. Отопление: Автономное газовое (двухконтурный котел). Низкие платежи, полный контроль температуры. Ремонт: Отличный, выполнен качественно. Продажа с полной мебелью и всей техникой. Что входит: Техника: Холодильник, телевизор, стиральная машина, посудомоечная машина, сплит-система (кондиционер). Мебель: Кухня, диван, кровать и изголовье Ascona, ортопедический матрас Ascona, системы хранения. В коридоре - шкафы. Кухонный гарнитур. Квартира пустая, никто после ремонта не жил, всё абсолютно - новое! Инфраструктура ЖК "Бавария": Закрытая охраняемая территория (ворота с домофоном). Круглосуточное видеонаблюдение. Детская и спортивная площадки (футбольное поле). Зеленые зоны отдыха: беседки, барбекю. Магазины, пункты выдачи (WB, OZON), салон красоты прямо в доме. Рядом: Школа 36, детские сады, поликлиника, новая больница. Отличная транспортная доступность, много парковочных мест. Экологичный район: рядом лесопарковая зона. Юридические аспекты: Чистые документы. Один собственник. В квартире никто не прописан. Ипотека подходит. Идеальный вариант для комфортной жизни! Готова для заселения. Звоните для просмотра!
| 🔷 Средняя цена продажи: | 6,7 млн ₽ |
| 🔷 Средняя цена за м2: | 117 тыс. ₽/м² |
| 🔷 Минимальная стоимость: | 5,6 млн ₽ |
| 🔷 Самый дорогой объект: | 6,8 млн ₽ |