


432 400 ₽/м²
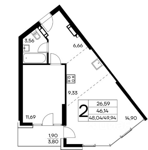
ЖК "СТАХЕЕВ" — премиальный курортный квартал в Алуште, 300 м до моря! Алушта, Южный берег Крыма в окружении гор и реликтового леса вблизи Национального парка. 300 метров до мелкогалечных пляжей с кристально чистой водой. Современные квартиры с видом на море и панорамными террасами. Архитектура в стиле Ривьеры, вдохновлённая природой Крыма. "СТАХЕЕВ" квартал, который живет по законам пятизвездочного курорта - это Ваш идеальный отдых в любое время года. Инфраструктура 5 на территории: ????Инфинити-бассейны с подогревом и джакузи панорамный SPA и медцентр восстановления ????Фитнес-зал, вертикальный парк Лаунж-зоны, рестораны, магазины Детские и спортивные площадки BBQ-зоны и зоны отдыха Победитель Urban Awards 2024 — лучший комплекс на побережье! Прогнозная доходность свыше 20% годовых Пассивный доход: сдача в управление Документы: ФЗ-214, эскроу-счета Сдача — 3 квартал 2028 года Первоначальный взнос - 30%. Остаток - равными поквартальными платежами до IV квартала 2027 года! Звоните — вышлем планировки, цены и условия!

















































































































