




















150 000 ₽/м²
Современный многоквартирный жилой комплекс, расположенный в живописном городе Симферополе. Здесь вы сможете наслаждаться красотой Крыма и одновременно находиться в удобной близости от всех необходимых объектов. ЖК "CROCUS" - это не только прекрасное место для жизни, но и отличная инвестиция. На первых этажах ЖК "CROCUS" есть всё, что нужно для комфортной жизни: утром можно взять с собой любимый капучино в кофейне и зайти в пекарню за булочкой. Жилой комплекс CROCUS впечатляет своим безупречным минимализмом. Каждое здание в комплексе имеет свою функциональность. Комплекс включает в себя квартиры с разнообразными планировками, коммерческие помещения, кладовые помещения с комфортным доступом. Для жителей комплекса предусмотрены системы хранения расположенные на цокольном этаже. Возможность выбрать кладовую подходящего размера, освобождая тем самым пространство квартиры. ПРЕДЧИСТОВАЯ ОТДЕЛКА Качественная входная дверь Оштукатуренные стены Скрытые сети теплоснабжения Стяжка пола Установленные радиаторы отопления 1-комнатная квартира в новостройке с отделкой в Симферопольском районе республики Крым.



158 000 ₽/м²
Номер объекта: 541915. При звонке назовите номер объекта 541915 Преимущества: Транспортная доступность. Развитая инфраструктура. Двор без машин. Большой выбор планировочных решений. Двухконтурные газовые котлы Жилой комплекс расположен в активно развивающемся районе Симферополя. Это экологически чистая местность с удобной транспортной развязкой. Первый этап строительства это четыре современных девятиэтажных дома. Строгие формы, лаконичный дизайн и динамичные акценты. Элегантная колоннада между зданиями словно обрамляет территорию, замыкает ее, тем самым создает приватность и уют. Все квартиры оборудованы индивидуальным газовым отоплением и имеют остекленные лоджии. Квартиры с патио на первых этажах. Это дополнительное пространство для отдыха и развлечений. Одно из главных преимуществ квартир с патио возможность наслаждаться пребыванием на открытом воздухе, не выходя из дома. Комфорт для Вашего авто. Вам не придется долго искать, где оставить автомобиль жилой комплекс оснащен достаточным количеством машиномест. При желании Вы можете оформить право собственности на гаражный бокс и наслаждаться его очевидными преимуществами. Ваш автомобиль будет всегда в безопасности. В домах предусмотрены встроенные коммерческие помещения. Прекрасно развитая инфраструктура и продуманные планировки позволят вести бизнес, не отвлекаясь на нюансы. Это лучший выбор для тех, кто ищет баланс между городским комфортом крымской столицы и спокойным ритмом уютного района. Удобная транспортная развязка даёт возможность быстро выехать на федеральную трассу Таврида. Отсюда можно с лёгкостью добраться на автомобиле в любую точку Симферополя: до центра города 20 минут, до аэропорта 9 минут, до железнодорожного вокзала 12 минут. В пешей доступности: остановки общественного транспорта, магазины, школы и детский сад, поликлиника, торговый центр, отделения банков, спортивные клубы, администрация, парк ГРЭС. Дворы без машин, ландшафтное озеленение, современные детские и спортивные площадки, места отдыха, удобные парковочные пространства, кладовые для хранения сезонных вещей и колясочные - все сделано для удобной и комфортной жизни. В продаже квартиры с предчистовой отделкой White Box вам остается только внести финальные штрихи по своему вкусу. Звоните, чтобы узнать актуальность и наличие других объектов. Купить 1-комнатную квартиру в новостройке с отделкой в Симферопольском районе республики Крым.





















165 975 ₽/м²
Номер объекта: 541979. Продается уютная трехкомнатная квартира в ЖК Солнечный парк Без комиссии для покупателя!!! Проект класса комфорт, архитектура которого сочетает в себе различные гармоничные и дополняющие друг друга фасадные и конструктивные решения, формируя единый архитектурный ансамбль в стиле модернизм. Благодаря монолитно-каркасной технологии строительства здание имеет целостную и непрерывную конструкцию, которая обладает высокой сейсмостойкостью, повышенной энергоэффективностью, надежностью и долговечностью: увеличенные оконные проемы для улучшения инсоляции квартир, ламинация оконного профиля для защиты от летнего зноя, угловое и панорамное остекление открывает беспрецедентные виды, корзины для кондиционеров. Жилой комплекс расположился в экологически чистом районе вблизи объектов социальной значимости и развитой инфраструктуры, однако при этом городской шум и суета не страшны жильцам комплекса. В сердце всего микрорайона предусмотрено строительство двух садиков на 380 малышей и современной школы на 900 мест. В шаговой доступности расположены остановки общественного транспорта с регулярными рейсами в любую точку города. Неоспоримым преимуществом является близость к центру города - всего 10-15 минут на автомобиле, и вы в сердце столицы. Удобство выезда на трассу Таврида позволяет добраться до Севастополя, Евпатории, Керчи, Крымского моста, а объездная дорога - в Алушту, Ялту и другие прекрасные места южного берега Крыма. В 5 минутах езды расположен торговый центр Южная галерея с гипермаркетом Ашан, 10-12 минут займет дорога до ТРК Меганом, а расстояние до республиканской клинической больницы им. Н.А. Семашко - 2,7 км. Огни архитектурной подсветки украшают вечерние фасады домов. Яркая подсветка придает футуристический облик всему архитектурному ансамблю: подчеркивает контур здания, создает узнаваемый вечерний облик жилого комплекса, повышает статусность домов. С заботой о здоровье спроектированы различные спортивные тренажеры на открытом воздухе: открытые площадки для занятий йогой, зоны воркаута и различные спортивные площадки, зеленые дворы и общественные пространства. Разработаны современные, безопасные площадки для детей разного возраста, чтобы каждому ребенку было максимально интересно и увлекательно развиваться во время игр со сверстниками: площадки для детей нейродинамические, открытые детские игровые зоны с безопасным покрытием, детский развивающий клуб. На первых этажах расположены коммерческие помещения. Витрины и вывески будут отлично просматриваться благодаря панорамному остеклению и эргономичным прямоугольным и угловым планировкам. Помещения сдаются в состоянии shell & core с проведением необходимых инженерных работ: высокие потолки 3,6-4 м, панорамное остекление, активный пешеходный и автомобильный трафик. Стильные интерьерные решения лобби и общественных пространств подчеркивают статус комплекса и создают атмосферу уюта не только для жителей, но и для гостей комплекса: зона отдыха и ожидания, колясочные и велосип Продам 1-комнатную квартиру в новостройке с отделкой в Симферопольском районе республики Крым.






159 000 ₽/м²
Современный многоквартирный жилой комплекс, расположенный в живописном городе Симферополе. Здесь вы сможете наслаждаться красотой Крыма и одновременно находиться в удобной близости от всех необходимых объектов. ЖК "CROCUS" - это не только прекрасное место для жизни, но и отличная инвестиция. На первых этажах ЖК "CROCUS" есть всё, что нужно для комфортной жизни: утром можно взять с собой любимый капучино в кофейне и зайти в пекарню за булочкой. Жилой комплекс CROCUS впечатляет своим безупречным минимализмом. Каждое здание в комплексе имеет свою функциональность. Комплекс включает в себя квартиры с разнообразными планировками, коммерческие помещения, кладовые помещения с комфортным доступом. Для жителей комплекса предусмотрены системы хранения расположенные на цокольном этаже. Возможность выбрать кладовую подходящего размера, освобождая тем самым пространство квартиры. ПРЕДЧИСТОВАЯ ОТДЕЛКА Качественная входная дверь Оштукатуренные стены Скрытые сети теплоснабжения Стяжка пола Установленные радиаторы отопления Продается 1-комнатная квартира в новостройке с отделкой в Симферопольском районе республики Крым.















236 453 ₽/м²
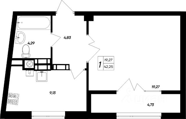
Продается 1- комнатная квартира. Крым респ., Симферополь, р-н Железнодорожный, пер. Мраморный, 40. Общая площадь: 40,6 м²;. Жилая площадь: 17,8 м²;. Площадь кухни: 15 м²;. Этаж: 7 из 18;. Год сдачи: 2026;. Дом: Не сдан;. Отделка: Чистовая;Жигулина роща, Мраморный. Квартира новая, после ремонта. Полностью готова к проживанию! Тёплые полы под всем керамогранитом.






174 677 ₽/м²
Продаётся 1-комнатная квартира в строящемся доме (Дом 6к2), срок сдачи: II-кв. 2026, общей площадью 31 кв.м., на 1 этаже. УМНЫЙ ЖИЛОЙ КОМПЛЕКС Адаптивное освещение, домофон с видеонаблюдением и шлагбаум, управляемые с мобильного телефона АЛЛЕЯ ЗДОРОВЬЯ И ЭКО-ПАРК Освещенные беговые дорожки, спортплощадки и скамейки для отдыха, изобилие вечно зеленых растений















139 650 ₽/м²
Номер объекта: 542004. Продается уютная однокомнатная квартира в новом ЖК Парковые кварталы Без комиссии для покупателя!!! Жилой комплекс расположен в активно развивающемся районе Симферополя. Это экологически чистая местность с удобной транспортной развязкой. Строгие формы, лаконичный дизайн и динамичные акценты. Элегантная колоннада между зданиями словно обрамляет территорию, замыкает ее, тем самым создает приватность и уют. Все квартиры оборудованы индивидуальным газовым отоплением и имеют остекленные лоджии. Квартиры с патио на первых этажах. Это дополнительное пространство для отдыха и развлечений. Одно из главных преимуществ квартир с патио возможность наслаждаться пребыванием на открытом воздухе, не выходя из дома. Комфорт для Вашего авто. Вам не придется долго искать, где оставить автомобиль жилой комплекс оснащен достаточным количеством машиномест. При желании Вы можете оформить право собственности на гаражный бокс и наслаждаться его очевидными преимуществами. Ваш автомобиль будет всегда в безопасности. В пешей доступности:остановки общественного транспортамагазины, торговый центр, отделения банковшколы и детский садполиклиникаспортивные клубыадминистрация и парк ГРЭС. Дворы без машин, ландшафтное озеленение, современные детские и спортивные площадки, места отдыха, удобные парковочные пространства, кладовые для хранения сезонных вещей и колясочные - все сделано для удобной и комфортной жизни. Это лучший выбор для тех, кто ищет баланс между городским комфортом крымской столицы и спокойным ритмом уютного района.Преимущества:Транспортная доступностьРазвитая инфраструктураДвор без машинБольшой выбор планировочных решенийДвухконтурные газовые котлы Чтобы уточнить актуальность объекта и наличие других - звоните! Объекта 542004






200 565 ₽/м²
Микрорайон "Жигулина Роща" - крупнейший жилой комплекс на территории Республики Крым, запланированная площадь благоустройства более 150 000 квадратных метров. Придерживаясь идеи "города в городе" мы стремились создать пространство в котором функциональность и удобство сливается воедино. На данный момент на территории микрорайона уже есть: - Школа XXI века - Четыре детских сада - Разнообразие детских и спортивных площадок - Кафе и магазины на территории - Бульвар и набережная для прогулок - Надземный паркинг на 5 000 машино-мест Ключевое отличие новой очереди разнообразие планировок. Мы уделили особое внимание Вашим потребностям, сохранив самые удачные решения из прошлых пусков, и добавили новые эксклюзивные квартиры, представляющие собой идеальное сочетание стиля, комфорта и функциональности. Близкое расположение к паркингу и удобная транспортная развязка поможет быстро добраться до Вашего автомобиля и легко покинуть территорию микрорайона. Квартиры в данном доме можно приобрести за полную оплату единоразово, в рассрочку, в ипотеку, в том числе Семейную, Господдержку, Военную, с использованием материнского капитала, а также жилищных сертификатов. "Жиглуина Роща" - аккредитована в коммерческих банках, где Вы можете оформить выгодную для Вас ипотеку: - РНКБ; - СБЕР; - Банк Россия; - Промсвязьбанк - Генбанк Наши эксперты по недвижимости всегда качественно проконсультируют Вас о действующих программах и помогут выбрать наилучший вариант.






159 000 ₽/м²
Современный многоквартирный жилой комплекс, расположенный в живописном городе Симферополе. Здесь вы сможете наслаждаться красотой Крыма и одновременно находиться в удобной близости от всех необходимых объектов. ЖК "CROCUS" - это не только прекрасное место для жизни, но и отличная инвестиция. На первых этажах ЖК "CROCUS" есть всё, что нужно для комфортной жизни: утром можно взять с собой любимый капучино в кофейне и зайти в пекарню за булочкой. Жилой комплекс CROCUS впечатляет своим безупречным минимализмом. Каждое здание в комплексе имеет свою функциональность. Комплекс включает в себя квартиры с разнообразными планировками, коммерческие помещения, кладовые помещения с комфортным доступом. Для жителей комплекса предусмотрены системы хранения расположенные на цокольном этаже. Возможность выбрать кладовую подходящего размера, освобождая тем самым пространство квартиры. ПРЕДЧИСТОВАЯ ОТДЕЛКА Качественная входная дверь Оштукатуренные стены Скрытые сети теплоснабжения Стяжка пола Установленные радиаторы отопления






148 000 ₽/м²
Современный многоквартирный жилой комплекс, расположенный в живописном городе Симферополе. Здесь вы сможете наслаждаться красотой Крыма и одновременно находиться в удобной близости от всех необходимых объектов. ЖК "CROCUS" - это не только прекрасное место для жизни, но и отличная инвестиция. На первых этажах ЖК "CROCUS" есть всё, что нужно для комфортной жизни: утром можно взять с собой любимый капучино в кофейне и зайти в пекарню за булочкой. Жилой комплекс CROCUS впечатляет своим безупречным минимализмом. Каждое здание в комплексе имеет свою функциональность. Комплекс включает в себя квартиры с разнообразными планировками, коммерческие помещения, кладовые помещения с комфортным доступом. Для жителей комплекса предусмотрены системы хранения расположенные на цокольном этаже. Возможность выбрать кладовую подходящего размера, освобождая тем самым пространство квартиры. ПРЕДЧИСТОВАЯ ОТДЕЛКА Качественная входная дверь Оштукатуренные стены Скрытые сети теплоснабжения Стяжка пола Установленные радиаторы отопления



192 813 ₽/м²
Номер объекта: 542488. Продаются однокомнатная квартира в новом ЖК Жигулина роща Без комиссии для покупателя!! Полное юридическое сопровождение и консультация по новостройкам Крыма!! Преимущества:Развитая инфраструктураБлагоустроенная территорияМногоуровневый паркингШкола XXI векаВдоль набережно Жилой комплекс комфорт-класса находится в Симферопольском районе. Здесь есть все необходимое для жизни и отдыха: - 3 остановки общественного транспорта в любое направление города; - рядом 20 ресторанов, кинотеатр, каток, боулинг, кофейня; - в шаговой доступности более 1000 магазинов; - офисный центр, отделение банка, медицинский сервис, салон красоты, мебельный магазин, магазины стройматериалов; - 4 детских сада. Площадь благоустройства ЖК 150 000 кв.м., запланированы детские площадки для детей разного возраста, футбольное поле, баскетбольные площадки, теннисные столы, уличные тренажеры, роллердром, прогулочный бульвар, благоустроенная набережная, паркинг для 5500 автомобилей. Благоустроенная набережная, проходящая вдоль реки Славянка одно из красивых мест в Симферополе и любимое место прогулок на свежем воздухе жителей микрорайона. Проект берегоукрепления и благоустройства прилегающей к реке территории, протяженность 800 метров, 12 300 зеленых насаждений, современный эстетический стиль. Подойдет под все формы оплаты: ИпотекаРассрочка СубсидияВоенная ипотекаМатеринский капитал Чтобы уточнить актуальность объекта - звоните прямо сейчас!! При звонке называйте номер объекта: 542488



155 000 ₽/м²
Продается просторная однокомнатная квартира в г. Симферополь Жилой комплекс расположен в Симферополе, в развивающемся районе и удобной транспортной развязкой. • Высота потолков: 2,7 м — создаёт ощущение простора. • Транспортная доступность: До аэропорта Симферополя — 10 минут на транспорте. До железнодорожного вокзала — 15 минут. До центра города — 20 минут. Инфраструктура: В пределах 1015 минут пешком находятся: • Школы • Детские сады • Поликлиники • Торговые центры • Спортивные клубы • Парк ГРЭС • Лес Грэсовский • Магазины • Салоны красоты Отделка: • Жилье передается в подчистовой отделке: Цементно-песчаная стяжка Выравнивание стен штукатуркой Установлены системы учета Дополнительные характеристики: • Все квартиры оснащены индивидуальным газовым отоплением. • Остекленные лоджии для вашего комфорта. Условия покупки: • Любая форма расчета, без комиссии! • Продажа через эскроу-счет, прямая цена от застройщика! • Гарантия безопасной сделки. Звоните прямо сейчас! Ваш новый дом ждет вас






148 000 ₽/м²
Современный многоквартирный жилой комплекс, расположенный в живописном городе Симферополе. Здесь вы сможете наслаждаться красотой Крыма и одновременно находиться в удобной близости от всех необходимых объектов. ЖК "CROCUS" - это не только прекрасное место для жизни, но и отличная инвестиция. На первых этажах ЖК "CROCUS" есть всё, что нужно для комфортной жизни: утром можно взять с собой любимый капучино в кофейне и зайти в пекарню за булочкой. Жилой комплекс CROCUS впечатляет своим безупречным минимализмом. Каждое здание в комплексе имеет свою функциональность. Комплекс включает в себя квартиры с разнообразными планировками, коммерческие помещения, кладовые помещения с комфортным доступом. Для жителей комплекса предусмотрены системы хранения расположенные на цокольном этаже. Возможность выбрать кладовую подходящего размера, освобождая тем самым пространство квартиры. ПРЕДЧИСТОВАЯ ОТДЕЛКА Качественная входная дверь Оштукатуренные стены Скрытые сети теплоснабжения Стяжка пола Установленные радиаторы отопления






132 000 ₽/м²
Современный многоквартирный жилой комплекс, расположенный в живописном городе Симферополе. Здесь вы сможете наслаждаться красотой Крыма и одновременно находиться в удобной близости от всех необходимых объектов. ЖК "CROCUS" - это не только прекрасное место для жизни, но и отличная инвестиция. На первых этажах ЖК "CROCUS" есть всё, что нужно для комфортной жизни: утром можно взять с собой любимый капучино в кофейне и зайти в пекарню за булочкой. Жилой комплекс CROCUS впечатляет своим безупречным минимализмом. Каждое здание в комплексе имеет свою функциональность. Комплекс включает в себя квартиры с разнообразными планировками, коммерческие помещения, кладовые помещения с комфортным доступом. Для жителей комплекса предусмотрены системы хранения расположенные на цокольном этаже. Возможность выбрать кладовую подходящего размера, освобождая тем самым пространство квартиры. ПРЕДЧИСТОВАЯ ОТДЕЛКА Качественная входная дверь Оштукатуренные стены Скрытые сети теплоснабжения Стяжка пола Установленные радиаторы отопления



115 900 ₽/м²
Номер объекта: 542184. Продается уютная однокомнатная квартира в ЖК Республика. Без комиссии для покупателя!!! Жилой комплекс это 22 дома средней этажности со всей необходимой инфраструктурой. Крупный микрорайон расположится в Гвардейском. Собственники будут жить в спокойном, уютном, экологически чистом районе в активном ритме крымской столицы. В рамках первой очереди проекта будет возведено три восьмиэтажных дома. За простыми архитектурными формами и яркими фасадами скрыта надёжная монолитная конструкция. В ЖК тщательно продумана планировка каждой квартиры: популярные студии эргономичные однокомнатные функциональные двухкомнатные Удобная транспортная развязка даёт возможность быстро выехать на федеральную трассу Таврида. Отсюда можно с лёгкостью добраться в любой район Симферополя, а также до аэропорта и железнодорожного вокзала. В непосредственной близости новая Республиканская современная больница имени Семашко. Рядом все важные социальные объекты, остановки и развитый жилой район. На прилегающем участке строится новый детский сад на 240 мест. В домах расположатся встроенные коммерческие помещения для размещения кофеен, продуктовых магазинов, аптек и других объектов торговли и услуг. В ЖК предусмотрены: уютные благоустроенные дворы, ландшафтное озеленение, современные детские площадки, спортивные площадки, места отдыха, удобные парковочные пространства, бесшумные и вместительные лифты. В квартирах индивидуальное газовое отопление. В продаже квартиры с предчистовой отделкой White Box вам остается только внести финальные штрихи по своему вкусу. Преимущества:Развитая инфраструктура. Транспортная доступность. Большой выбор планировочных решений. Детский сад на 240 мест. Индивидуальное газовое отоплениеЧтобы уточнить актуальность объекта и наличие других - звоните! Объекта 542184






145 000 ₽/м²
Современный многоквартирный жилой комплекс, расположенный в живописном городе Симферополе. Здесь вы сможете наслаждаться красотой Крыма и одновременно находиться в удобной близости от всех необходимых объектов. ЖК "CROCUS" - это не только прекрасное место для жизни, но и отличная инвестиция. На первых этажах ЖК "CROCUS" есть всё, что нужно для комфортной жизни: утром можно взять с собой любимый капучино в кофейне и зайти в пекарню за булочкой. Жилой комплекс CROCUS впечатляет своим безупречным минимализмом. Каждое здание в комплексе имеет свою функциональность. Комплекс включает в себя квартиры с разнообразными планировками, коммерческие помещения, кладовые помещения с комфортным доступом. Для жителей комплекса предусмотрены системы хранения расположенные на цокольном этаже. Возможность выбрать кладовую подходящего размера, освобождая тем самым пространство квартиры. ПРЕДЧИСТОВАЯ ОТДЕЛКА Качественная входная дверь Оштукатуренные стены Скрытые сети теплоснабжения Стяжка пола Установленные радиаторы отопления






195 205 ₽/м²
Микрорайон "Жигулина Роща" - крупнейший жилой комплекс на территории Республики Крым, запланированная площадь благоустройства более 150 000 квадратных метров. Придерживаясь идеи "города в городе" мы стремились создать пространство в котором функциональность и удобство сливается воедино. На данный момент на территории микрорайона уже есть: - Школа XXI века - Четыре детских сада - Разнообразие детских и спортивных площадок - Кафе и магазины на территории - Бульвар и набережная для прогулок - Надземный паркинг на 5 000 машино-мест Ключевое отличие новой очереди разнообразие планировок. Мы уделили особое внимание Вашим потребностям, сохранив самые удачные решения из прошлых пусков, и добавили новые эксклюзивные квартиры, представляющие собой идеальное сочетание стиля, комфорта и функциональности. Близкое расположение к паркингу и удобная транспортная развязка поможет быстро добраться до Вашего автомобиля и легко покинуть территорию микрорайона. Квартиры в данном доме можно приобрести за полную оплату единоразово, в рассрочку, в ипотеку, в том числе Семейную, Господдержку, Военную, с использованием материнского капитала, а также жилищных сертификатов. "Жиглуина Роща" - аккредитована в коммерческих банках, где Вы можете оформить выгодную для Вас ипотеку: - РНКБ; - СБЕР; - Банк Россия; - Промсвязьбанк - Генбанк Наши эксперты по недвижимости всегда качественно проконсультируют Вас о действующих программах и помогут выбрать наилучший вариант.






199 438 ₽/м²
Микрорайон "Жигулина Роща" - крупнейший жилой комплекс на территории Республики Крым, запланированная площадь благоустройства более 150 000 квадратных метров. Придерживаясь идеи "города в городе" мы стремились создать пространство в котором функциональность и удобство сливается воедино. На данный момент на территории микрорайона уже есть: - Школа XXI века - Четыре детских сада - Разнообразие детских и спортивных площадок - Кафе и магазины на территории - Бульвар и набережная для прогулок - Надземный паркинг на 5 000 машино-мест Ключевое отличие новой очереди разнообразие планировок. Мы уделили особое внимание Вашим потребностям, сохранив самые удачные решения из прошлых пусков, и добавили новые эксклюзивные квартиры, представляющие собой идеальное сочетание стиля, комфорта и функциональности. Близкое расположение к паркингу и удобная транспортная развязка поможет быстро добраться до Вашего автомобиля и легко покинуть территорию микрорайона. Квартиры в данном доме можно приобрести за полную оплату единоразово, в рассрочку, в ипотеку, в том числе Семейную, Господдержку, Военную, с использованием материнского капитала, а также жилищных сертификатов. "Жиглуина Роща" - аккредитована в коммерческих банках, где Вы можете оформить выгодную для Вас ипотеку: - РНКБ; - СБЕР; - Банк Россия; - Промсвязьбанк - Генбанк Наши эксперты по недвижимости всегда качественно проконсультируют Вас о действующих программах и помогут выбрать наилучший вариант.



115 900 ₽/м²
Номер объекта: 541918. При звонке назовите номер объекта 541918 Преимущества: Развитая инфраструктура. Транспортная доступность. Большой выбор планировочных решений. Детский сад на 240 мест. Индивидуальное газовое отопление Жилой квартал это 22 дома средней этажности со всей необходимой инфраструктурой. В жилом комплексе тщательно продумана планировка каждой квартиры: популярные студии, эргономичные однокомнатные, функциональные двухкомнатные. Удобная транспортная развязка даёт возможность быстро выехать на федеральную трассу Таврида. Отсюда можно с лёгкостью добраться в любой район Симферополя, а также до аэропорта и железнодорожного вокзала. В непосредственной близости новая современная больница имени Семашко. Рядом все важные социальные объекты, остановки и развитый жилой район. На прилегающем участке строится новый детский сад на 240 мест. В домах расположатся встроенные коммерческие помещения для размещения кофеен, продуктовых магазинов, аптек и других объектов торговли и услуг. В комплексе предусмотрены: уютные благоустроенные дворы, ландшафтное озеленение, современные детские площадки, спортивные площадки, места отдыха, удобные парковочные пространства, бесшумные и вместительные лифты. В квартирах индивидуальное газовое отопление. В продаже квартиры с предчистовой отделкой White Box вам остается только внести финальные штрихи по своему вкусу. Звоните, чтобы уточнить актуальность и наличие других объектов.
| 🔷 Средняя цена продажи: | 6,2 млн ₽ |
| 🔷 Средняя цена за м2: | 155 тыс. ₽/м² |
| 🔷 Минимальная стоимость: | 4,6 млн ₽ |
| 🔷 Самый дорогой объект: | 9,8 млн ₽ |