


301 000 ₽/м²
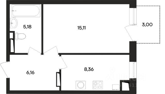
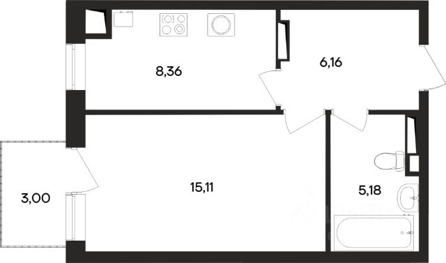
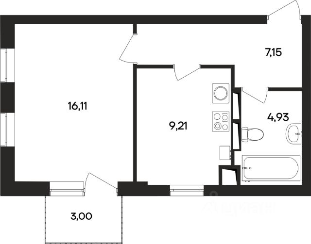
Продаётся 1-комнатная квартира в сданном доме (Корпус 3), срок сдачи: III-кв. 2025, общей площадью 37.81 кв.м., на 4 этаже. Новый жилой комплекс "Кубики" от застройщика "ИнтерСтрой" расположен по адресу: Россия, Республика Крым, городской округ Евпатория, посёлок городского типа Заозёрное, Олимпийская улица, 2




































































































