Первичная продажа



2 акции
Только на Циан
дом сдан
21 246 780 ₽
186 000 ₽/м²
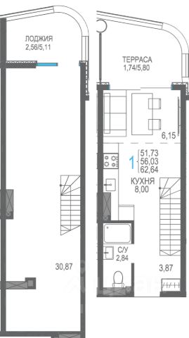
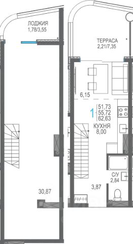
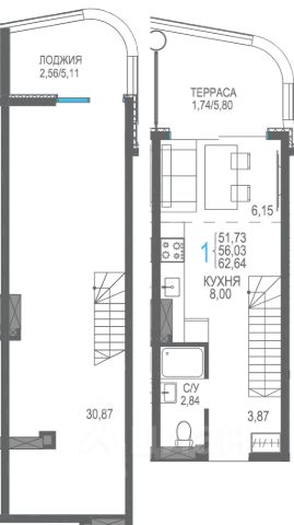
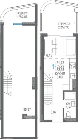
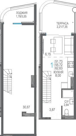
Продаётся 1-комнатная квартира в сданном доме (Секция 6), срок сдачи: IV-кв. 2024, общей площадью 114.23 кв.м., на 9 этаже. Жилой комплекс Розовое озеро расположен на западном побережье Крыма между городами Саки и Евпатория и входит в состав курортного комплекса Прибрежный. Экологически чистое место находится на косе между Чёрным морем и розовым озером Сасык-Сиваш в непосредственной близости к Сакским лечебным грязевым лиманам.
Проект включает в себя современные квартиры в ЖК Розовое озеро и комплекс апартаментов Ола-апарт в прибрежной зоне с полным спектром курортной инфраструктуры.
КОМФОРТНЫЕ ОБЩЕСТВЕННЫЕ ЗОНЫ ОТДЫХА
Внутренние пространства дворов ЖК приватны и безопасны. Можно с комфортом провести время в тенистых беседках или прогуляться по променадной площади с фонтаном. Мы позаботились и о наших маленьких жильцах, специально для них будут построены современные игровые комплексы.
Уличный стрит-ритейл насыщает жизнь в жилом комплексе в течение дня. Кафе и рестораны могут размещать посадочные места вдоль фасадов, привлекая посетителей.
Благоустройство является важным элементом комфортной среды для отдыха, поэтому в ЖК предусмотрено комплексное озеленение.
АРХИТЕКТУРНАЯ КОНЦЕПЦИЯ
Сочетание разных типов фасадов и переменная этажность зданий создают уникальный образ каждой улицы. Остекление выполнено в алюминиевом профиле.
Квартальная застройка комплекса защищает внутренние дворы от случайных гостей и делает их более уютными.
Став резидентом КК Прибрежный, Вы приобретаете не просто "квадратные метры", а особый образ жизни.
















































































