


498 600 ₽/м²
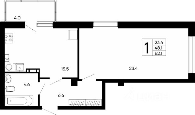
"SkySoul Resort" — новый жилой комплекс от застройщика СЗ ДК "СКГ", предлагающий комфортное жильё для тех, кто ценит качество и удобство. В комплексе представлены апартаменты различных планировок: от студий до двухкомнатных. Площадь апартаментов варьируется от 27,4 до 86 м². Некоторые варианты включают большие террасы, где можно наслаждаться видом на окружающую местность. Транспортная доступность ЖК "SkySoul Resort" расположен в удобном месте, обеспечивающем лёгкий доступ до любой точки города. Рядом с комплексом на улице Ленина есть остановка общественного транспорта, откуда ходят маршруты 30, 101, 107 в направлении Курортного и Симферополя. До автостанции можно дойти за 5 минут, до трассы "Таврида" — всего 15 метров, а до железнодорожного вокзала в Феодосии — 30 метров. Время в пути до Керченского моста составляет примерно 1 час 40 минут, до аэропорта — около 2 часов, до Севастополя — примерно 2,5 часа. Инфраструктура На территории ЖК будут современные игровые пространства для детей, детский клуб, спортивные площадки для футбола, волейбола и баскетбола, а также теннисные корты. Любители активного образа жизни оценят тренажёрные залы с современным оборудованием и фитнес-студии. Прогуляться и насладиться природой можно будет на благоустроенной набережной реки с велодорожками и зонами для отдыха. Авторский ландшафтный дизайн создаст атмосферу уюта и гармонии. Поблизости будут рестораны и кафе с блюдами средиземноморской, европейской и традиционной крымской кухни. Планируется вместительная бесплатная парковочная зона на 1200 машино-мест. Территория комплекса будет закрыта от посторонних, будет действовать пропускная система и вестись круглосуточное видеонаблюдение, что обеспечит безопасность жителей и их имущества. В планах развития — создание современной экологически чистой набережной, строительство очистных сооружений, озеленение, увеличение пляжной территории и построение гидротехнических сооружений. Архитектура ЖК "SkySoul Resort" строится по монолитно-каркасной технологии. Фасады имеют красивое остекление, панорамное остекление лоджий. Входная группа каждого корпуса оформлена в уникальном стиле: используется керамогранит, а сверху — камень травертин с мраморной плитой, на которой выгравированы цитаты известных русских деятелей культуры. Кровля эксплуатируемая, представляет собой многофункциональное пространство с элементами ландшафтного дизайна и зонами для отдыха. На крыше будут декоративные растения, деревья, кустарники и цветочные клумбы. В каждом корпусе предусмотрена одна входная группа с нишей для шкафа или гардеробной и уборными. В каждом корпусе установлено по 4 лифта: по 2 пассажирских и грузопассажирских. Варианты отделки включают предчистовую "white box" с ровной стяжкой пола и финишной штукатуркой стен, а также два варианта отделки — "стандарт" и "комфорт".

















































































