Первичная продажа



2 акции
Только на Циан
сдача ГК: 3 кв. 2028 года
7 155 300 ₽
170 000 ₽/м²
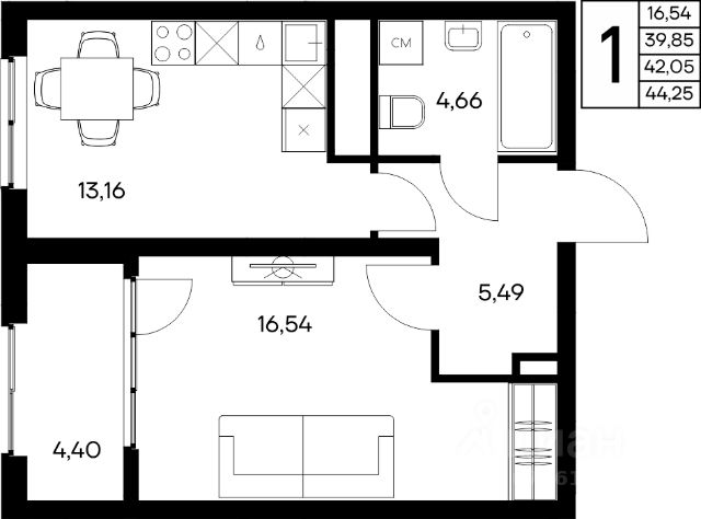
Продаётся 1-комнатная квартира в строящемся доме (Дом 2 (1 квартал, этап 3)), срок сдачи: III-кв. 2028, общей площадью 42.09 кв.м., на 3 этаже. Авторский город Листория - первый в Крыму мультиформатный малоэтажный комплекс комфорт-класса
четырехэтажные дома с дворами без машинотдельно стоящие урбан-виллытаунхаусыЛистория - это масштабный проект комплексного освоения на территории 77 гектаров. Авторский город расположен в экологически чистом районе Симферополя - Ана-Юрт.
В Листории запланировано строительство двух детских садов и школы, торгового комплекса и бизнес-центра.
На первом этапе строительства предусмотрено возведение трёх жилых домов:
Уникальные планировки квартир от 37,5 до 117 м (более 40 видов планировок с мастер-спальнями и патио).
эргономичные однокомнатныефункциональные двухкомнатныепросторные трёхкомнатныеВсе квартиры оборудованы индивидуальным газовым отоплением.
квартиры с собственным патио, выходящие в уютный дворквартиры с открытыми террасами на последних этажаханфиладные гардеробные и гардеробные в прихожейкухни-ниши и полу-нишиквартиры евро-форматовквартиры с постирочными, гладильными, гостевыми санузламиОтдельные келлеры в подземном этаже для хранения сезонных вещей - это отличный способ экономии полезного пространства квартиры.
В первых этажах жилых домов повышенная высота потолков - 3,5 м.
Уникальность в деталях
дворы без машинсквозные парадные, вход с уровня земликерамогранитный вентилируемый фасад зданийпросторные бесшумные лифтыколясочные и велосипедные в каждом подъездеНа первых этажах предусмотрены коммерческие помещения для размещения кофеен, продуктовых магазинов, аптек и других объектов торговли и услуг.
Променадная аллея-парк - доминанта микрорайона. Это главная пешеходная улица, с театральной площадкой, велодорожкой, лаунж и йога зонами.
ландшафтное озеленениецентральная площадь с сухим фонтаномобщественный плей-хабспортивные площадки внутри дворовсовременные детские игровые пространствасоседский центроборудованные места отдыхастанция электрозарядки автомобилей и мотоцикловвеломестадвухуровневые паркингиПрименены изысканные архитектурные решения: дизайнерские эргономичные вентилируемые фасады отделанные керамогранитом отлично вписываются в ландшафт и подчеркивают уникальный внешний вид зданий.
Близость столицы Крыма и природное окружение сохраняют баланс между городским ритмом и умиротворением.
Выгодное расположение авторского города Листория позволит его жителям быстро и удобно добраться в любую точку Крыма:
до центра Симферополя - 15 минутдо аэропорта - 20 минутдо ЖД-вокзала - 15 минутУдобные подъездные пути и близость всей инфраструктуры:
торговый центркрупный строительный гипермаркетмагазиныспортивные клубышколыдетские садыСергеевский прудЛистория - жизнь с авторским почерком.





















































































































































