Мы используем куки-файлы. Соглашение об использовании
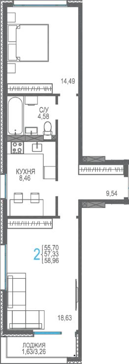
Общая площадь58,96 м²
Этаж5 из 8
Год сдачи2024
ДомСдан
ОтделкаНет информации
Продаётся 2-комнатная квартира в сданном доме (Секция 2), срок сдачи: IV-кв. 2024, общей площадью 58.96 кв.м., на 5 этаже. Жилой комплекс Розовое озеро расположен на западном побережье Крыма между городами Саки и Евпатория и входит в состав курортного комплекса Прибрежный. Экологически чистое место находится на косе между Чёрным морем и розовым озером Сасык-Сиваш в непосредственной близости к Сакским лечебным грязевым лиманам. Проект включает в себя современные квартиры в ЖК Розовое озеро и комплекс апартаментов Ола-апарт в прибрежной зоне с полным спектром курортной инфраструктуры. КОМФОРТНЫЕ ОБЩЕСТВЕННЫЕ ЗОНЫ ОТДЫХА Внутренние пространства дворов ЖК приватны и безопасны. Можно с комфортом провести время в тенистых беседках или прогуляться по променадной площади с фонтаном. Мы позаботились и о наших маленьких жильцах, специально для них будут построены современные игровые комплексы. Уличный стрит-ритейл насыщает жизнь в жилом комплексе в течение дня. Кафе и рестораны могут размещать посадочные места вдоль фасадов, привлекая посетителей. Благоустройство является важным элементом комфортной среды для отдыха, поэтому в ЖК предусмотрено комплексное озеленение. АРХИТЕКТУРНАЯ КОНЦЕПЦИЯ Сочетание разных типов фасадов и переменная этажность зданий создают уникальный образ каждой улицы. Остекление выполнено в алюминиевом профиле. Квартальная застройка комплекса защищает внутренние дворы от случайных гостей и делает их более уютными. Став резидентом КК Прибрежный, Вы приобретаете не просто "квадратные метры", а особый образ жизни.

О квартире

Тип жилья

Новостройка

Общая площадь

58,96 м²

Высота потолков

2,7 м

Отделка

Нет информации

О доме

Количество лифтов

1 пассажирский

Тип дома

Монолитно-кирпичный

Понравилась квартира — узнайте о ней больше

Застройщик ответит на все вопросы

Варианты отделки в ЖК

  • Без отделки
Похоже на то, что вы ищете?

Акции в ЖК «Розовое озеро»

Узнайте про персональные условия и дополнительные скидки при покупке квартиры у застройщика
logo

Скидка до 2 млн. руб

Выгодно

Рассрочка со скидкой!

Материнский капитал

Ипотечный калькулятор
  • Базовая
  • Семейная
  • ИТ-ипотека
  • 20%
  • 30%
  • 40%
  • 50%
лет
  • 10 лет
  • 20 лет
  • 30 лет
Загружаем предложения от застройщика и банков
Корпус проверен наш.дом.рф
Обновлено 27 марта 2025
  • Нет в реестре проблемных объектов
  • Застройщик не банкрот

Ещё квартиры в жилом комплексе

39 квартир в продаже · Сдан
ЗастройщикИнтерСтрой
Год основания: 2004
Строится: 61 дом в 22 ЖК
11 615 120 ₽
logo
Скидка до 2 млн. рубАкция от застройщика
Цена за метр
197 000 ₽/м²
Условия сделки
свободная продажа