Мы используем куки-файлы. Соглашение об использовании

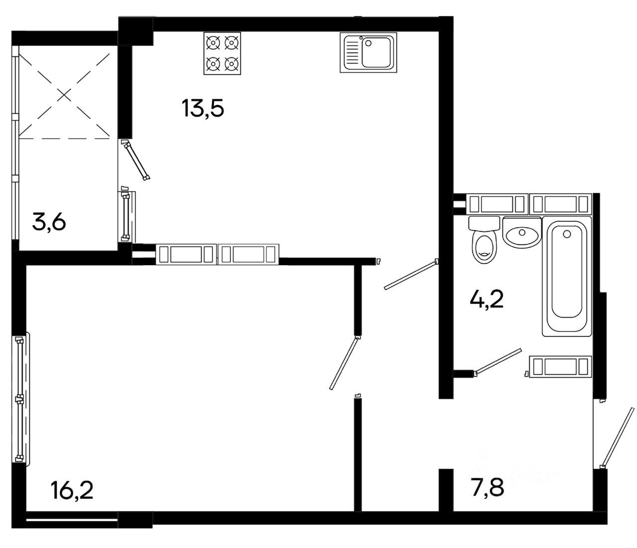
Продается 1-комн. квартира, 45,2 м²

Общая площадь45,2 м²
Этаж14 из 16
Год сдачи2026
ДомНе сдан
ОтделкаПредчистовая
Продаётся 1-комнатная квартира в строящемся доме (Дом 2), срок сдачи: II-кв. 2026, общей площадью 45.3 кв.м., на 14 этаже. ЖК Поэма - это территория вдохновения и творческих идей Здесь Вы ощутите внутреннюю свободу, простор для новых планов и реализации возможностей, став автором своей собственной поэмы. Объект комфорт-класса великолепно расположен в центре Симферополя на улице Трубаченко. Два монолитно-каркасных дома возводятся в сдержанном, изысканном стиле, сочетая в себе эстетику и надёжность. Большие площади остекления подчёркивают современную архитектуру здания. Собственная крышная котельная и актуальные технические решения обеспечат будущим собственникам исключительный комфорт. Территория дома благоустроена по самым актуальным стандартам: закрытый двор видеодомофоны с функцией распознавания лиц помещение для размещения консьерж-сервиса, который позаботится о комфорте, безопасности проживающих, уюте и чистоте ландшафтное озеленение с редкими видами растений и системой автополива детская площадка с инновационным оборудованием современный воркаут и зона для занятий йогой lounge - зона с гамаками холлы с ремонтом по индивидуальному дизайнерскому проекту места для стоянки велосипедов и колясок (во дворе) система видеонаблюдения выделенная зона для парковки транспортных средств площадью более 2200 кв. м. с возможностью выезда на ул. Трубаченко и ул. Крымских Партизан. В жилом комплексе Поэма Вы сможете наслаждаться потрясающими видами на город, живописными рассветами и незабываемыми закатами прямо из окна своей квартиры. Локация объекта привлекает также и развитой инфраструктурой. Это район с транспортной доступностью по всем направлениям. Поблизости расположены супермаркеты, торговые центры, банки, детские сады и школы, спортивный клуб, аптеки, химчистка, кафе и рестораны. В нескольких минутах ходьбы парк им. Шевченко - один из старейших в Симферополе. Это любимое место отдыха для многих поколений, где приятно проводить время в гармонии с природой. Жилой комплекс Поэма - свободный ритм, достижимая высота.

О квартире

Тип жилья

Новостройка

Общая площадь

45,2 м²

Высота потолков

2,74 м

Отделка

Предчистовая

О доме

Тип дома

Монолитно-кирпичный

Пандус

Есть

Понравилась квартира — узнайте о ней больше

Застройщик ответит на все вопросы

Отделка квартиры

Предчистовая — остаётся установить сантехнику, розетки, двери и навести красоту: поклеить обои и уложить на пол покрытие

О ЖК «Поэма»

  • Сдача комплекса
    Сдача в 2 кв. 2026
  • Застройщик
    ИнтерСтрой
  • Класс
    Комфорт
  • Тип дома
    Монолитно-кирпичный
  • Парковка
    Гостевая
  • Отделка
    Предчистовая
  • Тип комплекса
    Жилой комплекс
Похоже на то, что вы ищете?

Особенности жилого комплекса

  • Парковка

  • Внутренний двор

  • Архитектура

Подробнее о жилом комплексе

Акции в ЖК «Поэма»

Узнайте про персональные условия и дополнительные скидки при покупке квартиры у застройщика

Материнский капитал

Ипотечный калькулятор
  • Базовая
  • Семейная
  • ИТ-ипотека
  • 20%
  • 30%
  • 40%
  • 50%
лет
  • 10 лет
  • 20 лет
  • 30 лет
Загружаем предложения от застройщика и банков
Корпус проверен наш.дом.рф
Обновлено 28 апреля 2026
  • Нет в реестре проблемных объектов
  • Застройщик не банкрот
  • Есть эскроу счёт
  • Актуальные фото стройки

Ещё квартиры в жилом комплексе

54 квартиры в продаже · Сдача в 2 кв. 2026
Автор объявления

Застройщик «ИнтерСтрой»

Надежный застройщик
За 21 год активной деятельности «ИнтерСтрой» сумела изменить представление о современном уровне жизни в многоквартирных домах и стала безоговорочным лидером по объему строительства в Крыму и в Севастополе. «ИнтерСтрой» завоевала репутацию надежного застро...
9 356 400 ₽
Цена за метр
207 000 ₽/м²
Условия сделки
долевое участие (214-ФЗ)