Мы используем куки-файлы. Соглашение об использовании
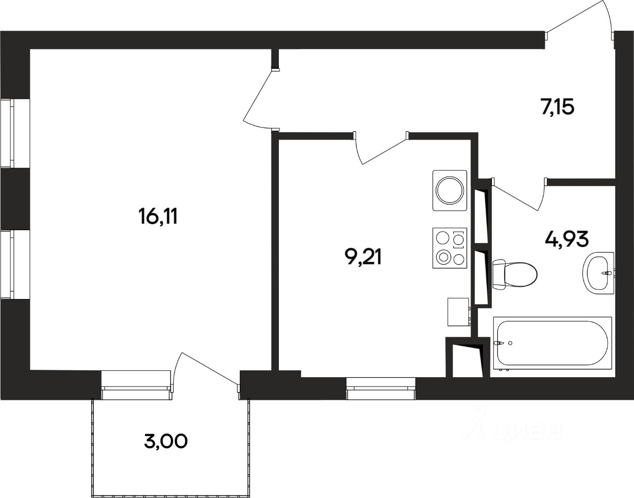
Общая площадь40,4 м²
Этаж2 из 4
Год сдачи2025
ДомСдан
ОтделкаНет информации
Продаётся 1-комнатная квартира в сданном доме (Корпус 3), срок сдачи: III-кв. 2025, общей площадью 40.4 кв.м., на 2 этаже. Новый жилой комплекс "Кубики" от застройщика "ИнтерСтрой" расположен по адресу: Россия, Республика Крым, городской округ Евпатория, посёлок городского типа Заозёрное, Олимпийская улица, 2

О квартире

Тип жилья

Новостройка

Общая площадь

40,4 м²

Высота потолков

3,3 м

Отделка

Нет информации

О доме

Тип дома

Монолитный

Пандус

Есть

Понравилась квартира — узнайте о ней больше

Застройщик ответит на все вопросы

3D-тур

Посмотрите 3D-тур, чтобы оценить объект

О ЖК «Кубики»

  • Сдача комплекса
    Сдан
  • Застройщик
    ИнтерСтрой
  • Класс
    Комфорт
  • Тип дома
    Монолитный
  • Парковка
    Гостевая
  • Отделка
    -
  • Тип комплекса
    Жилой комплекс
Похоже на то, что вы ищете?

Особенности жилого комплекса

  • Парковка

  • Внутренний двор

  • Архитектура

Подробнее о жилом комплексе

Акции в ЖК «Кубики»

Узнайте про персональные условия и дополнительные скидки при покупке квартиры у застройщика
logo

Скидка 3%

Ипотечный калькулятор
  • Базовая
  • Семейная
  • ИТ-ипотека
  • 20%
  • 30%
  • 40%
  • 50%
лет
  • 10 лет
  • 20 лет
  • 30 лет
Загружаем предложения от застройщика и банков
Корпус проверен наш.дом.рф
Обновлено 2 октября 2025
  • Нет в реестре проблемных объектов
  • Застройщик не банкрот

Ещё квартиры в жилом комплексе

45 квартир в продаже · Сдан
ЗастройщикИнтерСтрой
Год основания: 2004
Строится: 64 дома в 23 ЖК
12 160 400 ₽
Цена за метр
301 000 ₽/м²
Условия сделки
свободная продажа