Мы используем куки-файлы. Соглашение об использовании
Только на Циан
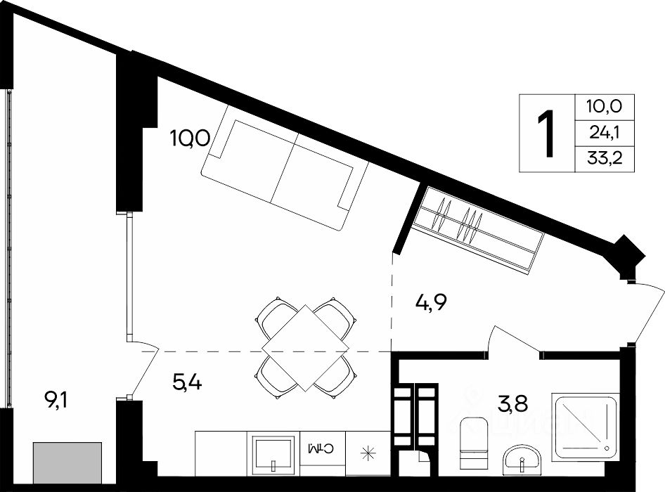
Общая площадь33,2 м²
Этаж1 из 5
Год сдачи2028
ДомНе сдан
ОтделкаНет информации
Продаётся 1-комнатная квартира в строящемся доме (Корпус 2), срок сдачи: III-кв. 2028, общей площадью 33.2 кв.м., на 1 этаже.

О квартире

Тип жилья

Новостройка

Общая площадь

33,2 м²

Отделка

Нет информации

О доме

Тип дома

Монолитно-кирпичный

Пандус

Есть

Понравилась квартира — узнайте о ней больше

Застройщик ответит на все вопросы

Похоже на то, что вы ищете?

Акции в ЖК «АЛЬМОРЕ»

Узнайте про персональные условия и дополнительные скидки при покупке квартиры у застройщика
Ипотечный калькулятор
  • Базовая
  • Семейная
  • ИТ-ипотека
  • 20%
  • 30%
  • 40%
  • 50%
лет
  • 10 лет
  • 20 лет
  • 30 лет
Загружаем предложения от застройщика и банков
Корпус проверен наш.дом.рф
Обновлено 31 марта 2026
  • Нет в реестре проблемных объектов
  • Застройщик не банкрот
  • Есть эскроу счёт
  • Актуальные фото стройки

Ещё квартиры в жилом комплексе

172 квартиры в продаже · Сдача в 3 кв. 2028
ЗастройщикИнтерСтрой
Год основания: 2004
Строится: 61 дом в 22 ЖК
5 976 000 ₽
Цена за метр
180 000 ₽/м²
Условия сделки
долевое участие (214-ФЗ)