Мы используем куки-файлы. Соглашение об использовании

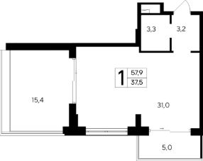
Продаются 1-комн. апартаменты, 57,9 м²

Общая площадь57,9 м²
Этаж9 из 12
Год сдачи2028
ДомНе сдан
ОтделкаБез отделки
Продаются 1-комнатные апартаменты в строящемся доме (Дом 35 (Этап 1)), срок сдачи: IV-кв. 2028, общей площадью 57.9 кв.м., на 9 этаже. Новый апарт-комплекс "Ривьера Евпатория" от застройщика "ИнтерСтрой" расположен по адресу: Республика Крым, г. Евпатория, ул. Кирова, 35

О квартире

Тип жилья

Новостройка / Апартаменты

Общая площадь

57,9 м²

Высота потолков

3 м

Отделка

Без отделки

О доме

Количество лифтов

9 пассажирских

Тип дома

Монолитно-кирпичный

Пандус

Есть

Понравилась квартира — узнайте о ней больше

Застройщик ответит на все вопросы

Отделка в ЖК

  • Без отделки
Похоже на то, что вы ищете?

Акции в ЖК «Ривьера Евпатория»

Узнайте про персональные условия и дополнительные скидки при покупке квартиры у застройщика
Ипотечный калькулятор
  • Базовая
  • Семейная
  • ИТ-ипотека
  • 20%
  • 30%
  • 40%
  • 50%
лет
  • 10 лет
  • 20 лет
  • 30 лет
Загружаем предложения от застройщика и банков
Корпус проверен наш.дом.рф
Обновлено 30 апреля 2026
  • Нет в реестре проблемных объектов
  • Застройщик не банкрот
  • Есть эскроу счёт
  • Актуальные фото стройки

Ещё квартиры в жилом комплексе

307 квартир в продаже · Сдача в 4 кв. 2028
ЗастройщикИнтерСтрой
Год основания: 2004
Строится: 68 домов в 23 ЖК
20 844 000 ₽
Цена за метр
360 000 ₽/м²
Условия сделки
долевое участие (214-ФЗ)