Мы используем куки-файлы. Соглашение об использовании
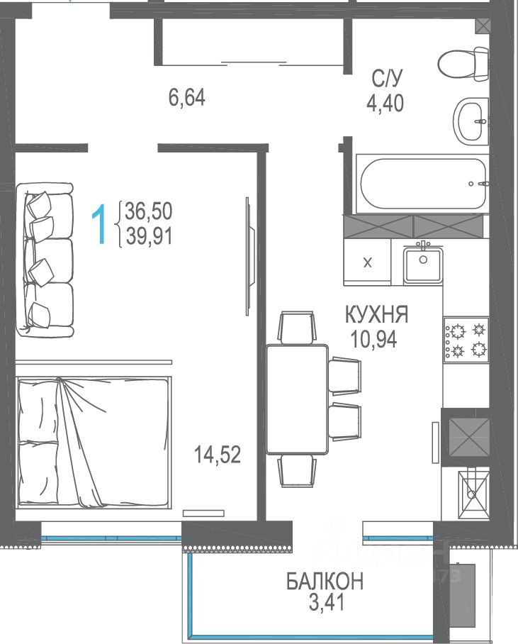
Общая площадь40,73 м²
Этаж3 из 8
Год сдачи2026
ДомНе сдан
ОтделкаПредчистовая
Продаётся 1-комнатная квартира в строящемся доме (Дом 3), срок сдачи: III-кв. 2026, общей площадью 39.09 кв.м., на 3 этаже. Жилой комплекс от застройщика "Интерстрой" в п.г.т. Гвардейское Симферопольского района на улице Курганная.

О квартире

Тип жилья

Новостройка

Общая площадь

40,73 м²

Высота потолков

2,7 м

Отделка

Предчистовая

О доме

Количество лифтов

1 пассажирский

Пандус

Есть

Понравилась квартира — узнайте о ней больше

Застройщик ответит на все вопросы

Отделка квартиры

Предчистовая — остаётся установить сантехнику, розетки, двери и навести красоту: поклеить обои и уложить на пол покрытие

3D-тур

Посмотрите 3D-тур, чтобы оценить объект
Похоже на то, что вы ищете?

Акции в ЖК «Республика»

Узнайте про персональные условия и дополнительные скидки при покупке квартиры у застройщика

Рассрочка от застройщика от 10 %

Рассрочка от застройщика от 20 %

Материнский капитал

Ипотечный калькулятор
  • Базовая
  • Семейная
  • ИТ-ипотека
  • 20%
  • 30%
  • 40%
  • 50%
лет
  • 10 лет
  • 20 лет
  • 30 лет
Загружаем предложения от застройщика и банков
Корпус проверен наш.дом.рф
Обновлено 19 мая 2026
  • Нет в реестре проблемных объектов
  • Застройщик не банкрот
  • Есть эскроу счёт
  • Актуальные фото стройки

Ещё квартиры в жилом комплексе

93 квартиры в продаже · Сдача в 3 кв. 2026, есть сданные
ЗастройщикИнтерСтрой
Год основания: 2004
Строится: 68 домов в 23 ЖК
4 969 060 ₽
Цена за метр
122 000 ₽/м²
Условия сделки
долевое участие (214-ФЗ)