Мы используем куки-файлы. Соглашение об использовании
Помещение свободного назначения, 500 м²

Сдается помещение свободного назначения, 500 м²

Площадь500 м²
Этаж1 из 11
ПомещениеСвободно
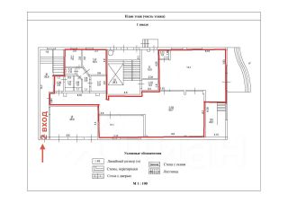
Аренда коммерческого помещения (500 м²) | Центр Ялты | Высокий трафик Адрес: г. Ялта, ул. Яна Булевского, 1А Локация: * Центр города * Пушкинский рынок — 2 минуты пешком * Остановка Кинотеатр Спартак — 2 минуты пешком * Высокий пешеходный и автомобильный трафик * Развитая коммерческая инфраструктура Помещение: * Общая площадь: 500 м² * Занимает полностью 1-й и 2-й этаж * Возможна частичная аренда * Отличная видимость с улицы * Возможность размещения вывески и рекламы Входы: * Центральный вход с улицы (стеклянные двери, витринный формат) * Второй вход — с боковой/задней стороны (для разгрузки, персонала) Планировка и цены: 1 этаж: * Торговая зона (с торца) — 136 м² 3000 ₽/м² * Кабинеты 2000 ₽/м² * 2 мокрые точки 2 этаж: * Торговая зона (с балконом, с торца) — 187 м² 2000 ₽/м² * Кабинеты 1700 ₽/м² * 1 мокрая точка * На 2 этаж ведёт: * центральная лестница * лестница со стороны заднего входа Возможности: * Подходит под: * магазин / шоурум * офис * банк * общепит * услуги * Возможна перепланировка и ремонт под арендатора * Можно переоборудовать оба этажа полностью под торговлю * Открыты к любым предложениям История: * Ранее размещались магазины * Несколько лет работали 3 банка Преимущества: * Высокая проходимость * Витринный формат * Гибкая планировка * Два входа (удобная логистика) Дополнительно: * В объявлении представлены фото помещения * Есть планировка * Доступно видео с детальным обзором - пишите, вышлю Контакты: * Звоните по телефону * Пишите в мессенджеры * Сообщения в циане могу не увидеть Показ в любое время по договорённости
lock

Войдите или зарегистрируйтесь
для просмотра информации

Просматривайте условия сделки и всю информацию об объекте
Сохраняйте фильтры в поиске и не вводите заново
Доступ к избранному с любого устройства
Неограниченное добавление в избранное
Позвоните автору
Вам ответят на все вопросы
Остались вопросы по объявлению?
Позвоните владельцу объявления и уточните необходимую информацию.
  • Инфраструктура
  • Похожие рядом
  • Общая площадь500 м²
Центральное отопление
Помощь надёжных риелторов
Риелтор партнёр Циан поможет купить или продать любую недвижимость
СобственникID 88714453
    850 000 ₽/мес.

    Прямая аренда (от года), минимальный срок аренды 12 месяцев, доступны арендные каникулы, предоплата за 1 месяц

    11 176 $/мес.
    9 484 /мес.
    Цена за метр
    20 400 ₽ в год
    Налог
    УСН
    Комиссия
    нет
    Коммунальные платежи
    не включены
    Эксплуатационные расходы
    не включены
    СобственникID 88714453