


290 000 ₽/м²
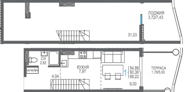
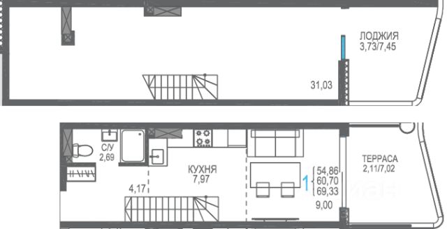
Продаётся студия-апартаменты в строящемся доме (Корпус 1), срок сдачи: I-кв. 2026, общей площадью 72 кв.м., на 2 этаже. Компания "Регион-Инвест Недвижимость" представляет новый комплекс апартаментов "Царский берег" в Крыму. Апарт-отель находится в нескольких десятках метров от знаменитой Царской тропы (Солнечная тропа), по которой император регулярно совершал пешие прогулки. Неподалёку, в Ливадии, располагалась императорская резиденция Романовых, а шикарные дачи российской элиты строились вдоль всего южного берега Крыма. Приобретая апартаменты комплекса "Царский берег", Вы становитесь не только обладателем элитной недвижимости, в Крыму, на берегу Черного моря, но и имеете возможность приобщится к части российской истории. Горы, море, солнце, мягкий климат делают это место идеальным, чтобы связать с ним свою жизнь. Близость ухоженных и оборудованных мелкогалечных пляжей, чистота приветливого моря, сочетание горного воздуха и морских бризов создают великолепные условия для отдыха и укрепления здоровья. В шаговой доступности от комплекса "Царский берег" расположен уникальный Золотой пляж, заслуженно считающийся самым чистым в регионе. Находящиеся всего в 100 метрах от комплекса санаторий "Горный" и санаторий "Курпаты", также порадуют широким спектром услуг и помогут разнообразить досуг жителей. Здесь есть ресторан, кафе, теннисные корты, танцплощадки, бильярд, медицинские кабинеты, фитнес-зал и многое другое. Территория же самого апарт-отеля "Царский берег" сможет похвастаться открытым кафе с потрясающим видом на море и СПА-салоном с оздоровительными процедурами. Немалое удобство для жителей и гостей доставит и вместительный трехуровневый паркинг на нижних этажах комплекса. Панорамный вид (около 270 градусов) на море и отличный вид на горно-лесной заповедник будут радовать Вас постоянно. Комплекс "Царский берег" - это апартаменты различной площади: от 63 до 140 кв.м. Высота потолков - 3 метра. На Ваш выбор мы представляем 91 апартамент (со 2 по 14 этажи). На каждом этаже запроектировано всего 7 типовых планировок, которые смогут удовлетворить самый взыскательный вкус. Свободная планировка этих апартаментов позволит Вам организовать пространство в любом стиле. Можно спланировать будуар, итальянскую гостиную, японскую спальню и даже тренажерный зал. Открытые террасы, застекленные лоджии, панорамные окна, остекленные от пола до потолка, - всё это даёт отличную возможность жителям комплекса наслаждаться потрясающими панорамами крымских гор и Чёрного моря даже с нижних этажей дома. Продается квартира-студия 70 м2 в республике Крым.







































































































