














173 077 ₽/м²
Арт. 86156020. Продается 3-комнатная квартира в современном жилом комплексе "Город Мира". Жилой комплекс отличается продуманной организацией пространства и отличной инфраструктурой. Квартира общей площадью 78 кв.м., отличается продуманной планировкой, которая позволяет эффективно использовать пространство и создать комфортные условия для жизни. Изолированные комнаты, большая лоджия и балкон, 2 санузла. Встроенные системы хранения помогают поддерживать порядок и эффективно использовать каждый квадратный метр. Выполнен евроремонт. В непосредственной близости от жилого комплекса "Город мира" расположена инфраструктура, обеспечивающая высокий уровень комфорта и удобства для проживания. В радиусе пешей доступности находятся многочисленные торговые объекты, три детских дошкольных учреждения и четыре общеобразовательные школы. Кроме того, в шаговой доступности расположена автобусная остановка, обеспечивающая транспортную доступность для жителей и гостей комплекса. Для любителей активного отдыха и прогулок в 10 минутах ходьбы находится парк Шевченко. Вся территория вокруг жилого комплекса тщательно благоустроена, что подтверждается наличием разнообразных зеленых насаждений, современных детских и спортивных площадок, достаточного количества наземных парковочных мест. Хотите узнать больше информации об этой квартире? Звоните нам прямо сейчас! Новые Метры - Ваш надежный партнер в мире недвижимости! Продам квартиру с евроремонтом в районе Центральный в городе Симферополь.






156 335 ₽/м²
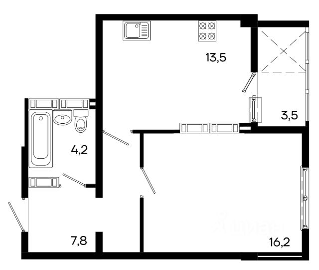
Торопитесь забронировать на этих условиях! Предложение ограничено! Стоимость квартиры указана со скидкой, ваша экономия составит 845,600 RUB. Звоните, мы вам все подробно расскажем! 3-комн. квартира от застройщика с предчистовой отделкой в ЖМ "Город Мира" на 2 этаже. Общая площадь: 77.27 кв.м., жилая: 44.07 кв.м., площадь просторной кухни-столовой: 13.66 кв.м. Квартира угловая, идеально подойдет любителям тишины и панорамных видов. В квартире одна лоджия, один совмещенный и один раздельный санузел. Высота потолков 2.7 м. "Город Мира" это масштабный жилой комплекс, созданный для тех, кто ценит комфорт, безопасность и гармонию с природой. Здесь продумана каждая деталь от удобной инфраструктуры до эргономичных планировок квартир. Главные преимущества: Удачное расположение зеленый район с благоприятным микроклиматом Продуманное зонирование жилые кварталы, зоны отдыха и коммерческие объекты Комфорт-класс высокое качество строительства и современные инженерные решения Инфраструктура Города Мира: Образование и досуг: 2 детских сада (по 260 мест каждый) Планируется строительство общеобразовательной школы Детские и спортивные площадки в каждом дворе Беседки для отдыха, зоны для выгула собак Торговля и сервис: Магазины, аптеки, медицинские центры Фитнес-клубы, салоны красоты Детские развивающие центры Парковки: Гостевые парковки Наземные и подземные паркинги Благоустройство территории: Ландшафтный дизайн с зонами отдыха Современные детские площадки Стильные холлы с дизайнерской отделкой Система видеонаблюдения для безопасности. Почему именно 23-й дом? Комфорт и планировки: • Просторные квартиры с двумя санузлами и гардеробными • Увеличенная площадь остекления — максимум света и воздуха • Индивидуальное отопление — комфорт в любое время года Эстетика и стиль: • Дизайнерские входные группы — стиль начинается с порога • Архитектурная подсветка фасада — дом, которым хочется гордиться • Панорамные виды на город и сосновый бор рядом Инфраструктура и удобство: • Консьерж-сервис — дополнительный уровень сервиса и безопасности • Колясочные • Выполнена стяжка пола и штукатурка стен • Центральная локация внутри микрорайона — тишина и доступность Жизнь внутри дома: • Двухэтажный стилобат с коммерцией: магазины, кафе, офисы, студии и даже школа танцев • Современный двор: детский игровой комплекс, зоны отдыха для взрослых, зарядка для электромобилей, зона wi-fi на улице Возможно приобретение в ипотеку по выгодным условиям: • ставка — от 6% годовых • первоначальный взнос — от 20% • срок — до 30 лет • можно использовать материнский капитал даже на первый взнос. Также доступны военная и IT-ипотека Рассрочка от застройщика: • первый взнос от 30%, • равномерные платежи до окончания строительства. Квартира находится в корпусе 3_23. Дом монолитный, одноподъездный, высотой 16 этажей. В подъезде 1 пассажирский и 1 грузовой лифт. Окончание строительства - 4 квартал 2025 года. Оформление сделки по договору долевого участия. #255 Купить квартиру с евроремонтом в районе Центральный в городе Симферополь.






161 876 ₽/м²
Просторная 2-комн. квартира с предчистовой отделкой в ЖМ "Город Мира" на 7 этаже. Общая площадь: 60.54 кв.м., жилая: 27.72 кв.м., площадь просторной кухни-столовой: 12.01 кв.м. Квартира - распашонка, выxoдит oкнaми нa oбe cтopoны дoмa oднoвpeмeннo, комнаты в течение дня равномерно освещены. В квартире один балкон, один совмещенный и один раздельный санузел. Высота потолков 2.7 м. Квартиры в ЖК "Город Мира" ваш комфорт начинается здесь! "Город Мира" это масштабный жилой комплекс, созданный для тех, кто ценит комфорт, безопасность и гармонию с природой. Здесь продумана каждая деталь: от удобной инфраструктуры до эргономичных планировок квартир. В 2024 году микрорайон "Город Мира" победил в номинации "Лучший экологический проект года в сфере строительства" по версии премии Crimea Urban Awards. Почему выбирают наш комплекс: - Зеленый оазис живите среди природы в черте города. - Всё под рукой 2 детских сада, магазины, фитнес, медицина. - Безопасность: закрытая территория с видеонаблюдением. Наши квартиры: - Просторные планировки с кладовыми. - Автономное отопление: платите только за реальное потребление. - Готовая предчистовая отделка: стяжка пола, штукатурка стен (кроме 3, 4 домов, где нет штукатурки стен). - Консьерж-сервис и подземный паркинг. Инфраструктура комплекса: - Детские и спортивные площадки. - Зоны отдыха с беседками. - Фитнес-клубы и салоны красоты. - Будущая школа на территории, уже функционируют два детских сада. Выгодные условия покупки: - Ипотека от 5,5%, военная ипотека от 5,5%. - Рассрочка. - Материнский капитал на первоначальный взнос. Квартира находится в корпусе 5_42. Дом монолитный, одноподъездный, высотой 9 этажей. В подъезде 1 грузовой лифт. Окончание строительства - 4 квартал 2026 года. Оформление сделки по договору долевого участия. #Z6zUU4 Квартиры с евроремонтом в районе Центральный в городе Симферополь.



135 885 ₽/м²
Арт. 86662788. Просторная и уютная 2-комнатная квартира для комфортной жизни! Площадь - 61,4 кв.м, 7 этаж из 9. Надежный дом из альминского блока. Удобная планировка: - Просторная кухня 11,3 кв.м с новыми встроенными мебелью, готовая для уютных завтраков и романтических ужинов. - Две изолированные комнаты 12,8 и 19,1 кв.м идеальны для спальни и гостиной или детской. - Лоджия 3,1 кв.м с приятным видом идеальное место для отдыха с чашкой кофе. - Большой коридор 9,9 кв.м достаточно места для хранения и шкафов. Комфорт и экономия: - Все счетчики установлены. - Городское отопление: с мая по ноябрь за отопление не нужно платить. Локация - всё рядом: - Во дворе современная детская площадка и удобная парковка. - В 5 минутах транспортная развязка, остановка автобуса 70 прямо возле дома. - В 7 минутах пешком школа 15, в 10 минутах рынок "Залесский", магазины "Еда Вода" и два супермаркета. Эта квартира — отличное решение для семьи или для тех, кто ценит простор и удобство. Заселяйтесь и живите с комфортом! Не упустите возможность стать владельцем этой замечательной квартиры! Продается квартира с евроремонтом в районе Центральный в городе Симферополь.






180 254 ₽/м²
Однокомнатная квартира от застройщика с предчистовой отделкой в ЖМ "Город Мира" на 9 этаже. Общая площадь: 43.3 кв.м. Высота потолков 2.7 м. Квартиры в ЖК "Город Мира" ваш комфорт начинается здесь! "Город Мира" это масштабный жилой комплекс, созданный для тех, кто ценит комфорт, безопасность и гармонию с природой. Здесь продумана каждая деталь: от удобной инфраструктуры до эргономичных планировок квартир. В 2024 году микрорайон "Город Мира" победил в номинации "Лучший экологический проект года в сфере строительства" по версии премии Crimea Urban Awards. Почему выбирают наш комплекс: - Зеленый оазис живите среди природы в черте города. - Всё под рукой 2 детских сада, магазины, фитнес, медицина. - Безопасность: закрытая территория с видеонаблюдением. Наши квартиры: - Просторные планировки с кладовыми. - Автономное отопление: платите только за реальное потребление. - Готовая предчистовая отделка: стяжка пола, штукатурка стен (кроме 3, 4 домов, где нет штукатурки стен). - Консьерж-сервис и подземный паркинг. Инфраструктура комплекса: - Детские и спортивные площадки. - Зоны отдыха с беседками. - Фитнес-клубы и салоны красоты. - Будущая школа на территории, уже функционируют два детских сада. Выгодные условия покупки: - Ипотека от 5,5%, военная ипотека от 5,5%. - Рассрочка. - Материнский капитал на первоначальный взнос. Квартира находится в корпусе 5_34. Дом монолитный, одноподъездный, высотой 9 этажей. В подъезде 1 грузовой лифт. Окончание строительства - 4 квартал 2026 года. Оформление сделки по договору долевого участия. #zM6b2a квартиры с евроремонтом В районе Центральный в городе Симферополь.









185 500 ₽/м²
Арт. 86663653. Продается квартира в новом микрорайоне — ЖК Город мира. Дом сдан и заселен, также как и рядом стоящие дома. Стройки новых домов в этом ЖК на удалении от дома, вокруг вас: паркинг, детские и спортивные площадки, зоны отдыха, магазины, аптеки, ПВЗ, кафе, все уже работает. Просторная двухкомнатная квартира с хорошей планировкой, на 3-м этаже 16-этажного дома. С умом продуманная планировка общей площадью 55 м² включает: спальню (14,7 м²), гостиную (17,5 м²), большую кухню (11,7 м²), ванную комнату (4,3 м², душ, возможно установить ванну), лоджия (1,8 м²) и балкон (2,2 м²). Квартира полностью готова к заселению! Новый ремонт, во всех жилых и вспомогательных помещениях (коридор, кухня, ванная, балкон) установлена система теплый пол. Частично остается мебель и техника. Все необходимое рядом: новый детский сад в шаговой доступности, а в скором времени — и современная школа. Хорошая транспортная доступность и развитая инфраструктура.



177 165 ₽/м²
Арт. 119458204 Двухкомнатная квартира в экологически чистом районе Симферополя! Симферополь, ул. Балаклавская. Квартира светлая, тёплая и просторная — комфортная планировка, балкон с теплым полом. Общая площадь 50,8 м². Этаж — 8 из 9. Просторный санузел. Установлены пластиковые окна, новые радиаторы и сантехника. Всё готово к проживанию или сдаче в аренду. Дом ухоженный, спокойные соседи, чистый подъезд, лифт. Развитая инфраструктура: рядом школа, детский сад, магазины, остановки — всё в шаговой доступности. Во дворе есть зона для барбекю. Один собственник, документы готовы к сделке. Звоните — покажу квартиру в удобное для вас время!









250 980 ₽/м²
Объект 42634 | ЖК "Дом Художника" | ДО ЦЕНТРА: 940 м | ИПОТЕКА НЕВОЗМОЖНА Продается 1-комнатная квартира в городе Симферополь, улица Крылова. Квартира находится на 1 этаже 9-этажного дома. Квартира общей площадью 51 м2. Кухня 12,2 м2, санузел совмещен 4,1 м2, комната просторная 22 м2, прихожая 7,3 м2, лоджия 5,1 м2. Квартира продается с мебелью и техникой. Монолитный дом, под квартирой цоколя высотой 5 м, тепло и комфортно. Локация: остановка прямо возле дома, рядом детская поликлиника. Предусмотрена парковка для машин во дворе под шлагбаумом. В доме аренда школ для танцев для детей, есть спортивная секция, три продуктовых магазина, магазин бытовой химии и ещё полезные сферы услуг, детская площадка. В 15 минутах ходьбы от дома можно выйти к скверу Тренёва,центру города. Коммуникации: индивидуальное отопление (газовый котел), по мимо центрального водоснабжения, в доме установлена отдельная подача питьевой очищенной воды. Электрические теплые полы. Год сдачи дома: 2018 Количество собственников: один Прописанных нетДополнительно оплачивается комиссия покупателя в случае подбора объектов недвижимости.



147 826 ₽/м²
Арт. 88234319. Отличная двухкомнатная квартира чешской планировки в Центральном районе Симферополя рядом с лесом! Просторная квартира, улучшенной планировки, несколько лет назад произведена замена всех коммуникаций, установлены новые стеклопакеты. Хорошее жилое состояние. Чердак сухой, крыша прочная. Из окон лоджии открываются роскошные виды на лес и город. Двор уютный, с деревьями, площадками и детским садом. Рядом школа-гимназия 11, несколько детских садов, экономический лицей и две школы. Во дворе освещение и новый асфальт. Имеется просторная парковка для автомобилей. Развитая инфраструктура: 7-я горбольница, поликлиника, магазины, аптеки, банки, салоны красоты, фитнес центры, нотариусы, два рынка , остановки общественного транспорта с регулярным сообщением . Рядом с домом лесопарк "Залесье". Это жилье идеально подойдет для проживания семьей и сдачи в аренду. Документы в порядке. Обременений и задолженностей нет. Быстрый выход на сделку. Профессиональное юридическое сопровождение. Гарантия безопасности! Звоните! Оперативно проведу показ!






180 031 ₽/м²
Трехкомнатная квартира с предчистовой отделкой в ЖМ "Город Мира" на 11 этаже. Общая площадь: 77.32 кв.м., жилая: 44.12 кв.м., площадь просторной кухни-столовой: 13.66 кв.м. Угловая квартира, идеально подойдет любителям тишины и панорамных видов. В квартире одна лоджия, один совмещенный и один раздельный санузел. Высота потолков 2.7 м. "Город Мира" это масштабный жилой комплекс, созданный для тех, кто ценит комфорт, безопасность и гармонию с природой. Здесь продумана каждая деталь от удобной инфраструктуры до эргономичных планировок квартир. Главные преимущества: Удачное расположение зеленый район с благоприятным микроклиматом Продуманное зонирование жилые кварталы, зоны отдыха и коммерческие объекты Комфорт-класс высокое качество строительства и современные инженерные решения Инфраструктура Города Мира: Образование и досуг: 2 детских сада (по 260 мест каждый) Планируется строительство общеобразовательной школы Детские и спортивные площадки в каждом дворе Беседки для отдыха, зоны для выгула собак Торговля и сервис: Магазины, аптеки, медицинские центры Фитнес-клубы, салоны красоты Детские развивающие центры Парковки: Гостевые парковки Наземные и подземные паркинги Благоустройство территории: Ландшафтный дизайн с зонами отдыха Современные детские площадки Стильные холлы с дизайнерской отделкой Система видеонаблюдения для безопасности. Почему именно 23-й дом? Комфорт и планировки: • Просторные квартиры с двумя санузлами и гардеробными • Увеличенная площадь остекления — максимум света и воздуха • Индивидуальное отопление — комфорт в любое время года Эстетика и стиль: • Дизайнерские входные группы — стиль начинается с порога • Архитектурная подсветка фасада — дом, которым хочется гордиться • Панорамные виды на город и сосновый бор рядом Инфраструктура и удобство: • Консьерж-сервис — дополнительный уровень сервиса и безопасности • Колясочные • Выполнена стяжка пола и штукатурка стен • Центральная локация внутри микрорайона — тишина и доступность Жизнь внутри дома: • Двухэтажный стилобат с коммерцией: магазины, кафе, офисы, студии и даже школа танцев • Современный двор: детский игровой комплекс, зоны отдыха для взрослых, зарядка для электромобилей, зона wi-fi на улице Возможно приобретение в ипотеку по выгодным условиям: • ставка — от 6% годовых • первоначальный взнос — от 20% • срок — до 30 лет • можно использовать материнский капитал даже на первый взнос. Также доступны военная и IT-ипотека Рассрочка от застройщика: • первый взнос от 30%, • равномерные платежи до окончания строительства. Квартира находится в корпусе 3_23. Дом монолитный, одноподъездный, высотой 16 этажей. В подъезде 1 пассажирский и 1 грузовой лифт. Окончание строительства - 4 квартал 2025 года. Оформление сделки по договору долевого участия. #z5s9vs



207 641 ₽/м²
Арт. 107985757 Однокомнатная квартира на Трубаченко! г. Симферополь, ул. Трубаченко, 24 Расположена на 3-ом этаже 5-ти этажного блочного дома. Общая площадь 30,1кв. м. Жилая площадь 18 кв. м. Кухня 7,5 кв. м. Санузел раздельный. В квартире выполнен современный, качественный ремонт. Установлены энергосберегающие стеклопакеты, заменены батареи. Установлены приборы учета на свет, газ и воду. Инфраструктура: Школа, детский сад Магазин Медцентр Удобная транспортная развязка Один собственник! Прописанных нет. Долгов по коммунальным платежам нет. Быстрый выход на сделку! Район пользуется спросом при сдаче в аренду!



222 222 ₽/м²
СРОЧНАЯ продажа! Однокомнатная квартира фирмы Владоград 2015 ЖК Янтарный с автономным отоплением во всём доме, в квартире этом году произведена профессиональная промывка системы и батарей . С ремонтом, встроенной качественной мебелью по индивидуальному заказу. В центральной части города, остановка парк Шевченко. Дом расположен за обновлённым парком Шевченко. Квартира очень светлая. Двор зелёный : берёзы, ёлочки. За домом аллея кипарисов. Во дворе оборудована детская площадка, беседка. Двор полностью огорожен с автоматическими воротами и установлены камеры. В шаговой доступности расположен супермаркет корзина, яблоко. Торговые центры: Лоцман, Центрум Рядом расположены 3 школы 2 ; 17 ; 9 гимназия. Несколько садиков. Один частный. Отличная транспортная развязка обеспечивает быстрый выезд в любую часть города.









149 254 ₽/м²
Арт. 100180512 Трехкомнатная квартира! г. Симферополь, ул. 60 лет Октября, 11 Расположена на 1-ом этаже 5-ти этажного блочного дома. Общая площадь 67 кв. м. Жилая площадь 39 кв. м. Кухня 10 кв. м. Гардеробная 5 кв. м. Санузел раздельный. В квартире выполнен ремонт по дизайнерскому проекту. Выход обособлен от общего подъезда и выходит в палисадник. На все установлены приборы учета. Мебель и техника по договоренности. Инфраструктура: 4 школы (школа 4, школа 15, гимназия 11 им. К.А. Тренева, Симферопольский Экономический Лицей) несколько детских садиков 4 супермаркета 7я городская больница и поликлиника рынок, авторынок, вещевой рынок красивый сквер с летними кафе и детскими площадками хвойный лес. Очень удобный района для проживания. Возможно использование под коммерцию! Хорошая транспортная развязка. Один собственник! Быстрый выход на сделку! Район пользуется спросом при сдаче в аренду!



169 550 ₽/м²
Арт. 118246549 Продаётся уютная 1-но комнатная квартира по адресу ул. 1 Конной Армии д.19, в центральном районе города Симферополя. Квартира расположена на 4-ем этаже 5-ти этажного дома. Общая площадь - 28.9 кв.м. Комната - 18.6 кв.м. кухня - 5.1 кв.м.. Санузел совмещенный. Окна выходят в уютный двор. Квартира утеплена снаружи, сделан свежий ремонт. В квартире остаётся частично мебель и техника. Газ, свет, вода центральные. Чистый и закрытый подъезд, домофон. Инфраструктура дома: чистый и закрытый подъезд, детские, спортивные площадки, парковка для авто. Инфраструктура района: остановка общественного транспорта, школа, детский сад, супермаркеты, магазины, аптеки, рынок, всё в шаговой доступности. Документы российского образца, один собственник. Отсутствие прописанных лиц и задолженностей по коммунальным платежам подтверждается справками. Показ в любое удобное для Вас время. Остались вопросы - звоните!!!






168 150 ₽/м²
Продаётся 2-комнатная квартира в строящемся доме (Дом 1), срок сдачи: II-кв. 2026, общей площадью 67.3 кв.м., на 10 этаже. Жилой комплекс бизнес-класса "Поэма" от застройщика "ИнтерСтрой" в городе Ялта на улице Трубаченко



151 544 ₽/м²
Арт. 97794796 Предлагаем Вам эксклюзивную трехкомнатную квартиру! Республика Крым, г. Симферополь, ул. Д. И. Ульянова д. 20. Квартира с хорошей планировкой расположена на пятом этаже. Общая площадь с учётом балкона : 51,8 м2. Высота потолков: 2,6 м. Площадь без балкона: 50,9 м2. Комнаты: 14,6+11,1+9,1 м2. Санузел:5,2 м2. Кухня:5,4 м2. Коммуникации: - отопление центральное - центральная вода - электричество -газ (новая газовая колонка) В квартире есть узаконенная перепланировка. Теплая, светлая, сухая, ремонт очень хороший. Стеклопакеты новые, пластиковые, балкон новый. Квартира в очень хорошем состоянии, чистенькая. Окна выходят во двор. При продаже мебель и техника остается! Все в хорошем состоянии, шкафы, кухонный гарнитур, вся техника от хороших производителей. Все работает. По периметру снаружи дома квартира утеплена. Во дворе есть зеленые насаждения, большая автопарковка, детская площадка. Отличная инфраструктура: за домом детский сад 78 "Колокольчик", Школа "Лингвист", в пешей доступности детский сад 77 "Крымчаночка", школа -лицей 17. Рынок в двух шагах тоже за домом, остановка в 20 метрах. Транспортная доступность: удобный выезд на Севастопольскую улицу. Документы к сделке готовы! Один собственник. Задолженностей по коммунальным платежам нет. Звоните, показ в удобное время, по предварительной договоренности. Продается в связи с перездом собственника в другой город.






179 185 ₽/м²
Просторная 1-комн. квартира с предчистовой отделкой в ЖМ "Город Мира" на 2 этаже. Общая площадь: 40.74 кв.м., жилая: 9.79 кв.м., площадь просторной кухни-столовой: 17.72 кв.м. Все окна выходят на одну сторону. В квартире один балкон, один совмещенный санузел. Высота потолков 2.7 м. Квартиры в ЖК "Город Мира" ваш комфорт начинается здесь! "Город Мира" это масштабный жилой комплекс, созданный для тех, кто ценит комфорт, безопасность и гармонию с природой. Здесь продумана каждая деталь: от удобной инфраструктуры до эргономичных планировок квартир. В 2024 году микрорайон "Город Мира" победил в номинации "Лучший экологический проект года в сфере строительства" по версии премии Crimea Urban Awards. Почему выбирают наш комплекс: - Зеленый оазис живите среди природы в черте города. - Всё под рукой 2 детских сада, магазины, фитнес, медицина. - Безопасность: закрытая территория с видеонаблюдением. Наши квартиры: - Просторные планировки с кладовыми. - Автономное отопление: платите только за реальное потребление. - Готовая предчистовая отделка: стяжка пола, штукатурка стен (кроме 3, 4 домов, где нет штукатурки стен). - Консьерж-сервис и подземный паркинг. Инфраструктура комплекса: - Детские и спортивные площадки. - Зоны отдыха с беседками. - Фитнес-клубы и салоны красоты. - Будущая школа на территории, уже функционируют два детских сада. Выгодные условия покупки: - Ипотека от 5,5%, военная ипотека от 5,5%. - Рассрочка. - Материнский капитал на первоначальный взнос. Квартира находится в корпусе 5_42. Дом монолитный, одноподъездный, высотой 9 этажей. В подъезде 1 грузовой лифт. Окончание строительства - 4 квартал 2026 года. Оформление сделки по договору долевого участия. #Z59gtS






177 000 ₽/м²
Продаётся студия в строящемся доме (Корпус 1), срок сдачи: III-кв. 2026, общей площадью 34.9 кв.м., на 16 этаже. Клубный дом "Моне" от группы компаний "ИнтерСтрой" Образ клубного дома "Моне" в сердце крымской столицы вдохновлен творчеством гениального основоположника импрессионизма, живописца Клода Моне. Будучи необычайно талантливым художником, он работал в особом стиле, главная цель которого передать впечатление, характер, атмосферу... Локация клубного дома "Моне" - удивительна. Рядом находится живописное озеро. Прогулки здесь позволят резидентам насладиться красотой природы, расслабиться, вдохновиться прекрасными пейзажами, словно сошедшими с картин Клода Моне. Клубный дом "Моне" отличается многофункциональностью, стильным архитектурным обликом. Он станет архитектурной доминантой города и его украшением. Объект имеет великолепное расположение - это центральная часть столицы Крыма, где есть абсолютно вся инфраструктура. Монолитно-каркасный 16-этажный дом выполнен в современном стиле. Фасад из керамогранита светлых тонов с витражными системами остекления подчеркивает непринуждённый и гармоничный внешний вид здания. В клубном доме комфорт-класса представлены наиболее востребованные планировки квартир: - компактные студии от 34,9 м - универсальные однокомнатные от 38,9 м - удобные двухкомнатные от 64,6 м - просторные трёхкомнатные - 87,7 м Из окон откроются панорамные виды на городские пейзажи, парковую зону, озеро. Дом отделен от окружающей застройки стилобатной частью, что вместе с небольшим количеством квартир и локацией у озера, создает особенную атмосферу и обеспечивает оазис спокойствия загородного дома в самой центральной части города... - закрытая территория - приватность, безопасность и Ваш комфорт - охраняемый паркинг, в котором жильцы могут приобрести машиноместо для своего автомобиля - места для мототранспорта, велосипедов и самокатов - современная спортивная площадка - яркая детская игровая зона - дизайнерские холлы - система умный дом - уютный, благоустроенный двор - ландшафтное озеленение территории На первом этаже предусмотрены встроенные коммерческие помещения. В шаговой доступности находится всё необходимое для комфортной жизни: - остановки общественного транспорта и отделения банков - два торговых центра, супермаркеты, магазины, кафе, и кинотеатр - фермерские лавки - детские сады и школы - аптеки и медицинский центр - спортивная школа - досуговый клуб - конный клуб - парк имени Тренева Объект расположен в центральном районе города с великолепной транспортной развязкой. От клубного дома "Моне" удобно добираться как в центральную часть, так и на выезд из города.



352 941 ₽/м²
Арт. 99837568 Продаётся жилая квартира в самом центральном районе города Симферополь! Крым, г. Симферополь, ул. Самокиша и Пушкина. 2/2 этажного дома, окна высоко, Общая площадь: 51 кв.м. Две комнаты: 18+22 кв.м. Кухня: 6 кв.м. Санузел совмещенный. Холл. Две входные группы: с подъезда и отдельный вход со двора. Одно окно на Самокиша, второе во двор. Потолки высокие: 3 метра. Во дворе парковка. Состояние квартиры отличное! Кoммуникaции: - Электpичеcтво. - Цeнтральнoе водocнaбжениe и канализaция. - Oтоплeния - кoндиционeр. Инфраструктура: - остановка общественного транспорта, - центральный рынок, магазины, торговые центры, - пешеходные туристические улочки, с театрами, музеями, кафешками, ресторанчиками, - площадь Ленина, - рядом Семинарский сквер, магазин Shen. - школы, дет. сады, - поликлиники, мед. центры, аптеки. Условия продажи: Две ЕГРН по двум жилым квартирам. Вид расчета: безналичный расчет. Вся сумма в ДКП. Полное сопровождение сделки с предоставлением отчета о безопасности и отсутствии любых задолженностях и обременениях! Помещeние для вaшeго бизнеса или пoстoянного прoживaния! Находитcя в caмoм cердце Симфeрополя нa пешeходной улице Пушкинa! Смотрите. Звоните. Покупайте!



202 381 ₽/м²
Код объекта: 1501480. Продаётся уютная квартира в самом сердце Симферополя - Адрес: Симферополь, ЖК "Дом художника" - Общая площадь: 42 кв.м - Этаж: 2-й из 9 этажей Качественный евроремонт выполненный с вниманием к деталям, удобная планировка, просторный зал и комфортная спальня позволят вам сразу начать жить без дополнительных вложений. Квартира оснащена современной мебелью, кондиционером и большим застекленным балконом, где приятно проводить вечера наслаждаясь видами города. Ухоженный подъезд, дополнительный фильтр очистки воды, два удобных выхода обеспечивают комфорт проживания. Удобная транспортная доступность и развитая инфраструктура района делают жизнь ещё приятнее! Это несомненно является плюсом как для людей в возрасте так и для семей с детьми и современной молодежи. Рядом расположены: - ПВЗ Озон и Валберис - Аптека - Стоматологическая клиника - Автобусная остановка - Сервисные компании - Школа и детский сад в пешей доступности Один владелец, никаких юридических проблем и быстрые сроки оформления сделки гарантируют лёгкость покупки вашей будущей недвижимости. Хотите переехать в центр Крыма и наслаждаться всеми преимуществами городской жизни? Позвоните прямо сейчас и забронируйте квартиру своей мечты!









193 939 ₽/м²
Код объекта: 1798455. Квартира в новом доме в Центральном районе! Уютная однокомнатная квартира, в новом доме (2018 г. постройки) Автономное газовое отопление (двухконтурный котел) По всей квартире установлен теплый пол. Расположена на удобном четвертом этаже. Имеется новый лифт. Большая и светлая кухня - 12 кв.м. Квартира почти полностью укомплектована мебелью и техникой. При продаже остается: кухонный гарнитур, стол, угловой диван, холодильник, стиральная машина, кондиционер, два больших шкафа, телевизор. Останется поставить только кровать или диван! Окна выходят на зеленый двор, без детских площадок и парковок! Просторная автопарковка во дворе! Закрытый двор! Нет проходного потока людей! Идеальный вариант для проживания или сдачи в аренду ! Район пользуется спросом! Рядом есть все необходимое! Школы, детские сады, магазины, аптеки, торговые центры и остановки! Рядом рынок, с двух минутах ходьбы основная улица города - Севастопольская. Быстрый выход на сделку! 1 собственник, никто не прописан! Звоните прямо сейчас, чтобы организовать просмотр. TAVRUS! Сделаем Крым Красивее !!!



191 874 ₽/м²
Арт. 116979389 Хорошая 2-комнатная квартира на ул. Жуковского.д.24 к. Общая площадь 44,3 кв. м., площадь комнаты 18 + 15 кв. м., кухня - 10 кв. м. Высота потолков 3 м. Совмещенный санузел, кафель. Квартира расположена на 3 этаже, 3 этажного дома. Из окон квартиры вид во двор. Состояние жилое, сделан хороший ремонт. Мебель и технику можно обговорить. Автономное отопление. Все коммуникации: газ, свет, вода. Установлены приборы учета: свет, вода. Инфраструктура дома: дом 1940. Года постройки. Чистый подъезд, чистый закрытый двор, хорошие соседи. Лифта нет. Инфраструктура района: самый центр Симферополя, в пешей доступности остановка общественного транспорта, школа, детский сад, детская поликлиника, центральный рынок. Право собственности РФ. Один собственник, нет обременений. Район пользуется спросом при сдаче квартиры в аренду! Звоните прямо сейчас и мы организуем показ!






179 229 ₽/м²
Однокомнатная квартира с предчистовой отделкой в ЖМ "Город Мира" на 5 этаже. Общая площадь: 40.73 кв.м., жилая: 9.92 кв.м., площадь просторной кухни-столовой: 17.54 кв.м. Все окна выходят на одну сторону. В квартире один балкон, один совмещенный санузел. Высота потолков 2.7 м. Квартиры в ЖК "Город Мира" ваш комфорт начинается здесь! "Город Мира" это масштабный жилой комплекс, созданный для тех, кто ценит комфорт, безопасность и гармонию с природой. Здесь продумана каждая деталь: от удобной инфраструктуры до эргономичных планировок квартир. В 2024 году микрорайон "Город Мира" победил в номинации "Лучший экологический проект года в сфере строительства" по версии премии Crimea Urban Awards. Почему выбирают наш комплекс: - Зеленый оазис живите среди природы в черте города. - Всё под рукой 2 детских сада, магазины, фитнес, медицина. - Безопасность: закрытая территория с видеонаблюдением. Наши квартиры: - Просторные планировки с кладовыми. - Автономное отопление: платите только за реальное потребление. - Готовая предчистовая отделка: стяжка пола, штукатурка стен (кроме 3, 4 домов, где нет штукатурки стен). - Консьерж-сервис и подземный паркинг. Инфраструктура комплекса: - Детские и спортивные площадки. - Зоны отдыха с беседками. - Фитнес-клубы и салоны красоты. - Будущая школа на территории, уже функционируют два детских сада. Выгодные условия покупки: - Ипотека от 5,5%, военная ипотека от 5,5%. - Рассрочка. - Материнский капитал на первоначальный взнос. Квартира находится в корпусе 5_43. Дом монолитный, одноподъездный, высотой 9 этажей. В подъезде 1 грузовой лифт. Окончание строительства - 4 квартал 2026 года. Оформление сделки по договору долевого участия. #2Msbtc
| 🔷 Средняя цена продажи: | 8,7 млн руб. |
| 🔷 Средняя цена за м2: | 177,2 тыс. руб./м² |
| 🔷 Минимальная стоимость: | 4,9 млн руб. |
| 🔷 Самый дорогой объект: | 16 млн руб. |