498 795 ₽/м²
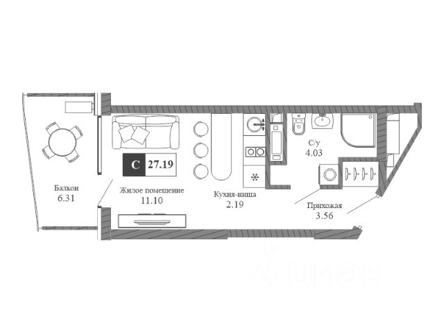
Паруса мечты больше не снятся, а встречают вас каждое утро! Есть места, где живут не просто мечты, а целые легенды. Апартаменты "Паруса мечты" в исторической Алуште — одно из них. Здесь вы не будете ждать свой корабль у моря. Вы будете смотреть на море из его "капитанской рубки" — из элегантных апартаментов площадью 39,62 м² с панорамой, в которой сказка об Алых парусах становится вашей повседневной реальностью! Ваше окно — это картина, написанная морем, горами и лесами! Каждое утро вы будете встречать три вечные стихии: безмятежную лазурь моря, величественный силуэт горы Кастель и изумрудный шепот вечнозеленого заповедника. Это не просто вид — это ваше личное пространство вдохновения. Почему это не просто дом, а ваша личная пристань: Всего 500 метров до моря и элегантной набережной Профессорского уголка; Очарование исторического района Алушты у вас за порогом; Ваш собственный пляж, до которого вас домчит тихий электрокар — ваш персональный "челнок счастья"; Здесь все создано для жизни, где не нужно мечтать о лучшем — оно уже есть: Для ваших детей — целый мир радости: Большая детская площадка с безопасным покрытием станет местом долгих и счастливых часов игры. А в светлой комнате творчества круглый год кипит жизнь: мастер-классы, развивающие игры, арт-кружки. Здесь растут не только дети, но и таланты. Для вас — баланс тела и души: Современный тренажерный зал с новейшим оборудованием подарит заряд энергии, а гладь открытых бассейнов и тишина SPA — долгожданную релаксацию. Вечером вас ждут летний кинотеатр под звёздами и уют ресторана. Для вашего комфорта — продуманная каждая деталь: Насладитесь атмосферой просторного лобби площадью 550 м² с высокими потолками (4,7 м), где вас встретит лобби-бар и зона ресепшн. Вам больше не придется думать о бытовых мелочах: подземный паркинг на 78 мест, келлеры и колясочные для хранения освободят ваше личное пространство. Панорамные окна и бесшумные скоростные лифты дополнят картину безупречного сервиса. Три пути к вашей просторной гавани в комплексе апартаментов "Паруса Мечты": 100% оплата — прямой курс к владению; Беспроцентная рассрочка — плавный ветер к цели; Ипотека от ведущих банков — надёжный навигатор. SERVICE All Inclusive: Мы заботимся, чтобы вы дышали полной грудью. Забудьте о хлопотах. Наш сервис — это ваш безупречный экипаж. От трансфера и подготовки апартаментов до организации детского праздника или проката яхты. Мы исполним любой запрос, потому что ваше время для отдыха бесценно. Комплекс реализуется по 214-ФЗ — ваша гарантия надёжности и спокойствия. Ваш корабль мечты ждет у причала! Не ждите, пока алые паруса появятся на горизонте. Станьте капитаном своей судьбы уже сегодня. Для записи на приватный просмотр и обсуждение всех деталей просто позвоните нам. Давайте вместе откроем дверь в вашу новую жизнь у моря.










































































